Снять производство, г. Минск, ул. Красная, 7

от 38 430 р.

от 13 100 $

от 18 р. от 6 $ за м²

Аренда
Следить за ценой
Производство

Тип

2135 м²

Площадь

3 из 5

Этаж

23.09.2025ID 3893589
pdf
Обзор по коммерческой недвижимости
Данные формируются на базе сделок за 2024 год

Описание

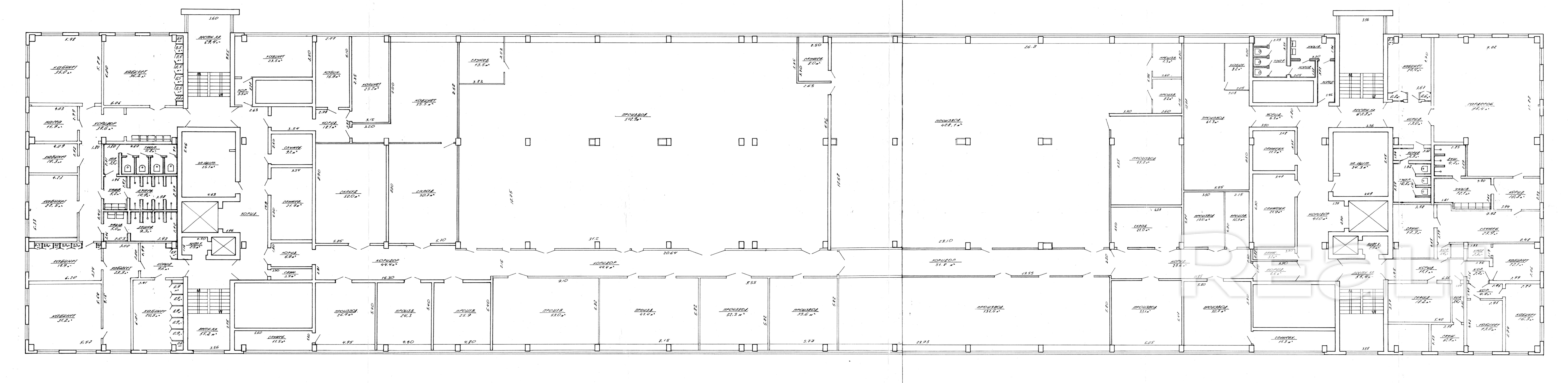
Аренда "Производственный корпус" подходит под офис, склад, производство. Нагрузка пола 900 кг/м2. Грузовые лифты. Требуется ремонт.

Параметры объекта

  • Тип объекта

    Производство

  • Площадь общая

    2135 м²

  • Этаж / этажность

    3 / 5

  • Материал стен

    Кирпичный

  • Высота потолков

    4 м

  • Ремонт

    Плохое состояние

  • Отопление

    Есть

  • Электроснабжение

    Есть

  • Электрическая мощность

    600 кВт

  • Естественное освещение

    Есть

  • Вода

    Есть

  • Санузел

    Есть

  • Оборудование

    Есть

  • Парковка

    Есть

  • Принадлежность объекта

    Частная

  • НДС

    НДС включен

  • Номер договора

    11/1а от 24.03.2025

Примечание

Аренда "Производственный корпус" подходит под офис, склад, производство. Нагрузка пола 900 кг/м2. Грузовые лифты. Требуется ремонт.

Местоположение