Любите, мечтаете и выбираете минимализм? Вы нашли то, что искали
5 720 520 р.
Тип
Участок
Общая
Жилая
Описание
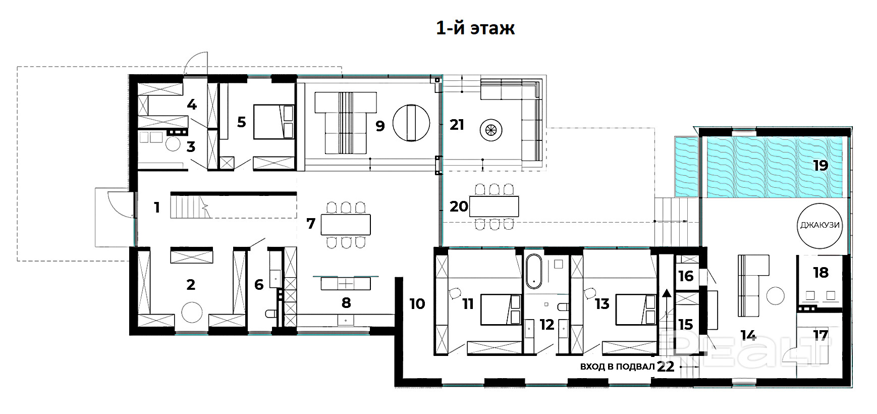
Дом в Дроздах — 482 м2 для жизни и бизнеса.
Просторный дом в престижном районе Дрозды.
Площадь 482 м2, участок 12 соток (10 соток в пожизненное и 2 сотки ЛПХ), SPA-зона, бассейн, терраса, гараж, инженерные системы, натуральные материалы.
Инженерные системы выполнены: Газовый котел Buderus и автоматика Bosc, РО, ТП, ХВ, ГВ, канализация и ливневка. ПВВ VTS, мощностью 1200м3/час, решетки “Invisible”, климат LG, увлажнение Carel, умягчение воды, в зоне СПА ПВВ Frivent, с осушение воздуха, оборудование для фонтана, джакузи и бассейна.
Подходит для проживания, представительства, резиденции или инвестиций.
C 14.09 по 29.09 связь в мессенджерах
Мессенджеры для связи
Телеграм @Petrov_Illarion
Instagram
WhatsApp
Параметры объекта
- Тип объекта
Дом
- Площадь участка
12 соток
- Площадь общая
545.5 м²
- Площадь жилая
220 м²
- Площадь кухни
82.2 м²
- Уровней в доме
2
- Год постройки
2023
- Процент готовности
100
- Новостройка
Да
- Материал стен
Монолитно-каркасный
- Материал крыши
Гидроизоляция
- Отопление
На газу
- Газ
Есть
- Канализация
Центральная
- Электроснабжение
Есть
- Вода
Центральный водопровод
- Баня
Есть
- Камин
Да
- Статус земли
Пожизненно наследуемое владение
- Условия продажи
Чистая продажа
Инфраструктура
Бассейн
Ландшафтный дизайн
Водоем
Рядом лес
Продавец
Собственник
Контактное лицо
Примечание
Местоположение
- Область
- Населенный пункт
- Улица
- Номер дома
13
- Район города
- Микрорайон
- Координаты
53.942737946, 27.47621205

