Полностью готова к проживанию 2-х комнатная квартира в ШИКАРНОЙ ЛОКАЦИИ!

279 885 р.

94 000 $

4 832 р. 1 623 $ за м²

Чистая продажа
Следить за ценой
57.9 м²

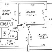
Общая

27.6 м²

Жилая

8.9 м²

Кухня

3 из 12

Этаж

10.10.2025ID 3897483
pdf
Обзор по новостройкам Минска и пригорода
Цены и наличие квартир, условия покупки и оплаты

Описание

Площадь по СНБ – 57,9 м2.

Квартира просторная, 2 изолированные комнаты, большая кухня 8,9 м2, раздельный санузел, застеклённая лоджия, комфортный 3-й этаж!, пассажирский и грузовой лифты.
В квартире остаётся вся мебель и бытовая техника!
Дом в тихом районе с высокоразвитой инфраструктурой: гимназии, школы, детские сады, торгово-развлекательный центр "Green", строительный гипермаркет "Материк", кафе, рестораны, банки и фитнес-центры.
До метро всего 10 минут пешком!
Превосходный вид из окон, дом утопает в зелени дворов, доброжелательные соседи, квартиры в этом доме продаются крайне редко!
Благоустроенная придомовая территория: детская площадка, всегда имеются парковочные места, множество мест для прогулок и отдыха: парк «Дививёлка», сквер «Семейный», лесопарк «Медвежино».
Квартира полностью готова к проживанию, подходит для проживания или для сдачи в аренду.
Локация квартиры, планировка и окружение работают на Вас!
Покупатель НЕ ПЛАТИТ за услуги агентства, но приобретет юридически проверенную недвижимость!
Звоните и приходите на просмотр в удобное для Вас время!

Параметры объекта

  • Количество комнат

    2

  • Раздельных комнат

    2

  • Площадь общая

    57.9 м²

  • Площадь жилая

    27.6 м²

  • Площадь кухни

    8.9 м²

  • Год постройки

    1999

  • Этаж / этажность

    3 / 12

  • Тип дома

    Панельный

  • Балкон

    Лоджия

  • Ремонт

    Отличный

  • Высота потолков

    2.5 м

  • Мебель

    Есть

  • Санузел

    Раздельный

  • Стоянка автомобиля

    Есть

  • Собственность

    Частная

  • Условия продажи

    Чистая продажа

  • Номер договора

    334/3 от 23.09.2025

Удобства

Телефонная сеть

Интернет

Лифт

Примечание

Квартира просторная, 2 изолированные комнаты, большая кухня 8,9 м2, раздельный санузел, застеклённая лоджия, комфортный 3-й этаж!, пассажирский и грузовой лифты.

Местоположение