Продаётся уютная евродвушка по ул. Белградская, 8

334 373 р.

112 300 $

7 777 р. 2 612 $ за м²

Чистая продажа
Следить за ценой
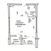
43 м²

Общая

34.7 м²

Жилая

11 из 25

Этаж

13.10.2025ID 3904750
pdf
Обзор по новостройкам Минска и пригорода
Цены и наличие квартир, условия покупки и оплаты

Описание

Великолепная квартира с дизайнерским ремонтом в котором использовались только качественные материалы, отличная кухня, квартира полностью укомплектована мебелью и бытовой техникой, есть вместительная гардеробная, из окон открывается невероятный вид на Международный финансовый центр, в доме давно все закончили ремонты, что позволит отдыхать и наслаждаться уютом и спокойствием.

Очень удачная локация в Минск-мире, в шаговой доступности новый ТЦ «Авиа молл» и метро Аэродромная, счётчики воды, бойлер, стеклопакеты,современный домофон, металлическая дверь, много детских и спортивных площадок. Во дворе детский сад №580, через дорогу средняя школа №226 с бассейном.

Рядом множество кафе и ресторанов, очень развитая инфраструктура.

Параметры объекта

  • Количество комнат

    2

  • Раздельных комнат

    1

  • Площадь общая

    43 м²

  • Площадь жилая

    34.7 м²

  • Год постройки

    2022

  • Этаж / этажность

    11 / 25

  • Тип дома

    Монолитный

  • Балкон

    Лоджия

  • Ремонт

    Отличный

  • Санузел

    Совмещенный

  • Собственность

    Частная

  • Условия продажи

    Чистая продажа

  • Номер договора

    218/4 от 05.10.2025

Примечание

Великолепная квартира с дизайнерским ремонтом в котором использовались только качественныематериалы, отличная кухня, квартира полностью укомплектована мебелью и бытовой техникой, есть вместительная гардеробная.

Местоположение