Продается квартира по ул.Пилотная, 30

333 050 р.

113 700 $

7 745 р. 2 644 $ за м²

Чистая продажа
Следить за ценой
43 м²

Общая

24.1 м²

Жилая

3 из 8

Этаж

11.12.2025ID 3951004
pdf
Обзор по новостройкам Минска и пригорода
Цены и наличие квартир, условия покупки и оплаты

Описание

Продается квартира по ул.Пилотная, 30

Дом 2024 г.п.

Дом комфорт-класса с повышенной тепло и звукоизоляцией. Малоэтажная застройка. Закрытый двор. Рядом с домом высажен  парк.

В квартире почти завершен ремонт. Полы – водостойкий ламинат, стены - выровнены и оклеены (обои Германия), межкомнатные двери – Эмаль, входная дверь – «Медверев и К». В ванной современная плитка, встроенный полотенцесушитель, пол с подогревом. На Лоджию выведен теплый пол.

Просторная кухня-гостиная с выходом на лоджию и отдельная спальня с местом для гардеробной. Раздельный санузел.

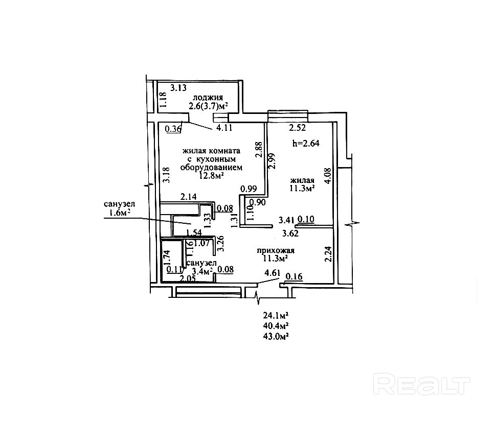
Потолки в квартире 2,64. Общая площадь по СНБ – 43 кв.м.

В подъезде оборудованы колясочная и лапомойка. Безбарьерная среда. Бесшумный грузопассажирский лифт Kleemann (Греция). Велобокс. Во дворе отличная детская площадка без доступа посторонних. Зона барбекю и беседка. Вся придомовая территория и подъезд оборудованы видеонаблюдением. Школа и детский сад в радиусе 300 м, магазины, кафе, фитнес клуб.

Рядом лесопарковая зона. Удобный выезд на МКАД. До станции метро 10 мин на автобусе.

Свежая современная квартира для себя или хорошая инвестиция.

Чистая продажа. Ключи в день сделки!

Лицензия: №02240/362 от 31.07.2018, Министерство юстиции РБ

Параметры объекта

  • Количество комнат

    2

  • Раздельных комнат

    2

  • Площадь общая

    43 м²

  • Площадь жилая

    24.1 м²

  • Год постройки

    2024

  • Этаж / этажность

    3 / 8

  • Тип дома

    Панельный

  • Балкон

    Лоджия

  • Ремонт

    Отличный

  • Санузел

    Раздельный

  • Стоянка автомобиля

    Есть

  • Собственность

    Частная

  • Условия продажи

    Чистая продажа

  • Номер договора

    1663/1 от 19.11.2025

Примечание

Продается квартира по ул.Пилотная, 30 Дом 2024 г.п. Дом комфорт-класса с повышенной тепло и звукоизоляцией. Малоэтажная застройка. Закрытый двор. Рядом с домом высажен парк.

Местоположение