Купить 3-комнатную квартиру, г. Солигорск, просп. Мира, 19

122 896 р.

42 000 $

2 001 р. 684 $ за м²

Чистая продажа
Следить за ценой
61.4 м²

Общая

40.6 м²

Жилая

2 из 9

Этаж

08.03.2026ID 4029537
pdf
Обзор по новостройкам Минска и пригорода
Цены и наличие квартир, условия покупки и оплаты

Описание

Продается уютная трехкомнатная квартира в центре Солигорска. Отличная планировка для большой семьи и самый востребованный этаж!

Основные параметры:
• Адрес: проспект Мира, д. 19
• Этаж: 2 из 9
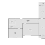
• Площадь: общая — 61.4 кв.м., жилая — 40.6 кв.м., кухня — 8.4 кв.м.
• Год постройки: 1972

В коридоре установлен вместительный встроенный шкаф, что позволяет сэкономить пространство в жилых комнатах.

Дом расположен в районе с отлично развитой инфраструктурой. В шаговой доступности школы, детские сады, магазины, аптеки и остановки общественного транспорта. Чистый подъезд, хорошие соседи.

Вам понравилась эта квартира, но не продана своя недвижимость? Не проблема! Поможем Вам осуществить продажу Вашего объекта, для приобретения данного варианта.
Звоните, записывайтесь на просмотр, будем рады встрече!
ООО «Недвижимость сити»
Лицензия №02240/392 от 10.10.2020
УНП 791207246

Параметры объекта

  • Количество комнат

    3

  • Раздельных комнат

    2

  • Площадь общая

    61.4 м²

  • Площадь жилая

    40.6 м²

  • Год постройки

    1975

  • Этаж / этажность

    2 / 9

  • Балкон

    Балкон и лоджия

  • Собственность

    Частная

  • Условия продажи

    Чистая продажа

  • Номер договора

    5/5 от 02.02.2026

Примечание

Продается уютная трехкомнатная квартира в центре Солигорска. Отличная планировка для большой семьи и самый востребованный этаж!

Местоположение