Уютный таунхаус с баней и машино-местом в ЖК «Зелёная Гавань».
1 113 760 р.
9 918 р.≈ 3 580 $ за м²
Общая
Жилая
Кухня
Этаж
Описание
В продаже современный 4-комнатный таунхаус, состоящий из трех изолированных комнат: спальня, детская, кабинет и кухни-гостиной, трех коридоров, двух санузлов, мини-котельной, балкона. Общая площадь по СНБ – 112,3 кв.м.
Интерьер таунхауса выглядит стильно, современно и очень уютно, при этом он отличается удобством и продуманной организацией пространства. Зонирование выполнено с максимальной эффективностью, а для ремонта использовались только качественные и экологически чистые материалы.
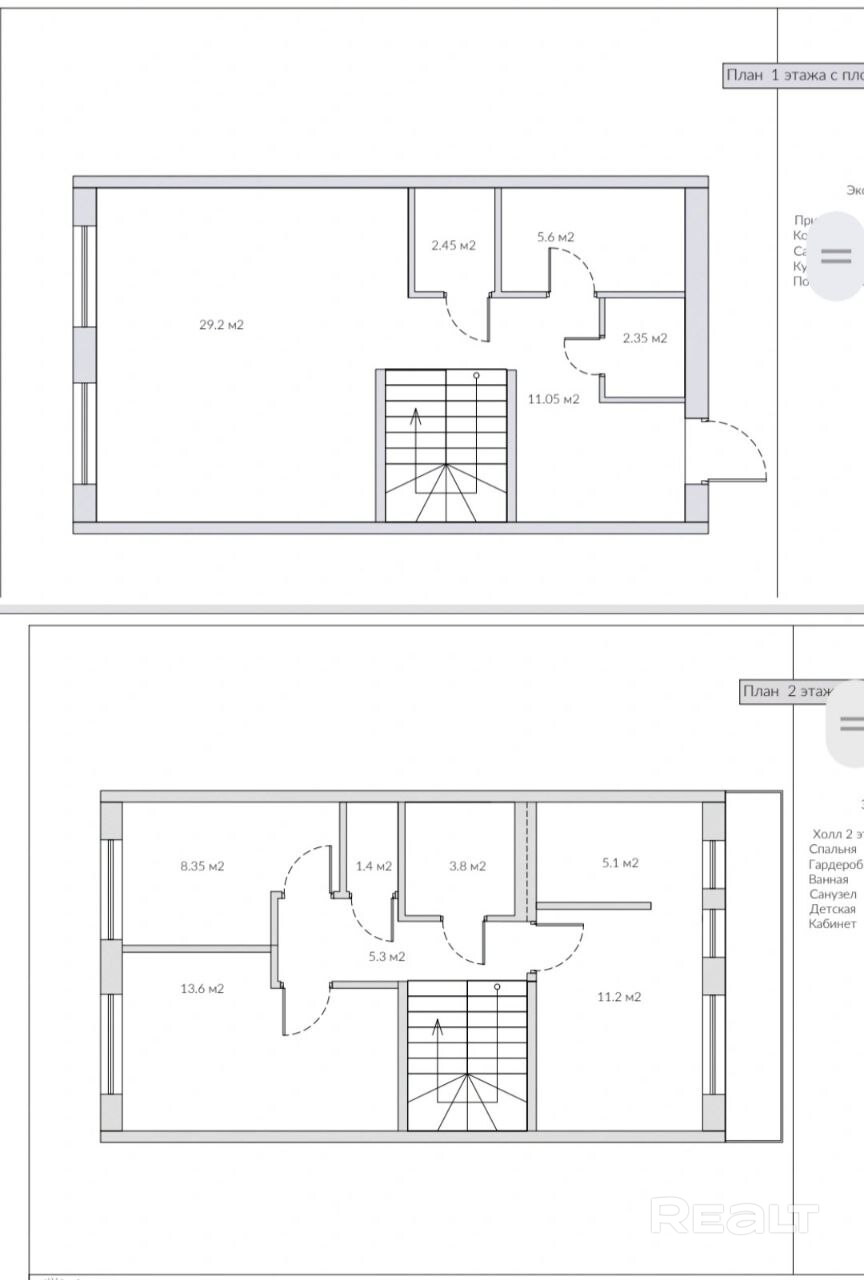
Первый этаж:
Винтажные итальянские бра и зеркало у входа. Консоль из массива дуба. Большой встроенный шкаф с подсветкой и зонами для взрослых и детей, а также антресолью. Постирочная выполнена из газосиликатных блоков и оборудована окошками. Здесь установлены стиральная и сушильная машины, а также встроенная компактная гладильная доска. Светлая и уютная кухня-гостиная оборудована навесной и встроенной мебелью с бытовой техникой: варочная панель, духовой шкаф, посудомоечная машина, холодильник. В умывальник встроен измельчитель пищевых отходов. Из гостиной есть выход на террасу.
Котельная: лапомойка и полноценный душ.
Санузел первого этажа - винтажный свет и дизайнерское подстолье со столешницей из натурального дерева. Смесители – производство Италия.
Под лестницей оборудована вместительная и удобная кладовая. Полы первого этажа - плитка и паркет. Есть теплые полы. В гостиной — авторский барельеф от белорусского декоратора и диван, созданный по индивидуальному заказу. Винтажный свет и буфет. Лестница выполнена из бетона, ступени отделаны шпоном.
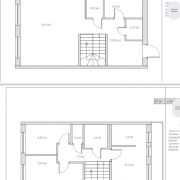
Второй этаж:
Три полноценные комнаты + ванная и санузел.
Испанская плитка в ванне и санузле. Бесшовные и экологичные обои в спальне и детской. Встроенная гардеробная с окном во взрослой спальне.
На участке:
Терраса 15 метров из натурального дерева.
Баня с электрической печью.
Угловой участок — всего один сосед, больше личного пространства для вас и вашей семьи.
В стоимость включено машино-место на парковке под шлагбаумом.
В доме обеспечена безопасность: установлены тревожная кнопка и охранная сигнализация от Департамента охраны.
Технические характеристики:
Количество этажей: 2
Количество жилых комнат: 3
Кухня-гостиная
Жилая площадь квартиры: 73.0 кв.м.
Общая площадь жилого помещения: 110.4 кв.м.
Общая площадь по СНБ: 112.4 кв.м.
Новый собственник получает в пользование всю мебель и технику.
Зеленая гавань — это место, где каждый найдет свое идеальное пространство для вдохновения и комфорта.
Полное юридическое сопровождение и безопасность сделки гарантируем!
Приглашаем к просмотру и покупке!
Лицензия: 02240/446 от 11.07.2022, Министерство юстиции РБ
Параметры объекта
- Количество комнат
4
- Раздельных комнат
3
- Площадь общая
112.3 м²
- Площадь жилая
73 м²
- Площадь кухни
28.9 м²
- Год постройки
2023
- Этаж / этажность
1 / 2
- Тип дома
Панельный
- Планировка
Таунхаус
- Балкон
Балкон
- Ремонт
Отличный
- Высота потолков
3 м
- Санузел
2 и более
- Стоянка автомобиля
Есть
- Собственность
Частная
- Условия продажи
Подбираются варианты
- Номер договора
318/1 от 09.04.2026
Примечание
Местоположение
- Область
- Район
- Населенный пункт
- Улица
- Номер дома
38
- Сельсовет
Колодищанский с/с
- Направление
Московское, 8.2 км от МКАД
- Координаты
53.8928, 27.7378
