Производственный комплекс / база со всеми коммуникациями + отдельно стоящий гараж.

3 729 429 р.

1 299 000 $
Продажа
Следить за ценой
Производство

Тип

1631.10 м²

Площадь

1 из 1

Этаж

08.01.2026ID 3788561
pdf
Обзор по коммерческой недвижимости
Данные формируются на базе сделок за 2024 год

Описание

Производственный комплекс / база со всеми коммуникациями 1631,1 м + отдельно стоящий гараж 146,9 м.


Продажа + рассматривается долгосрочная аренда с правом выкупа.


ОПИСАНИЕ:
Острошицкий городок (в 13 км от МКАД).
Огороженная территория, площадью более 1 гектара с асфальтированным подъездом и видеонаблюдением.
Имеется возможность подключения к газоснабжению, а само здание оборудовано собственной котельной, электроснабжением 380В, центральным водоснабжением, центральной канализацией и подключением к высокоскоростному интернету. Есть места для установки кондиционеров.
Данный производственный комплекс был рассчитан на 200 рабочих мест и готов к немедленной эксплуатации.
Здание не требует дополнительных вложений и полностью подготовлено для запуска производства.
Конструкция здания – ж/б панели, блоки, кирпич. Реконструкция произведена в 2008г. 2 въездных высоких ворот 4 х 4. Высота потолков 5.92м. Полы полимерные. Освещение LED.
Гараж с четырьмя воротами и возможностью размещения до 5 автомобилей.

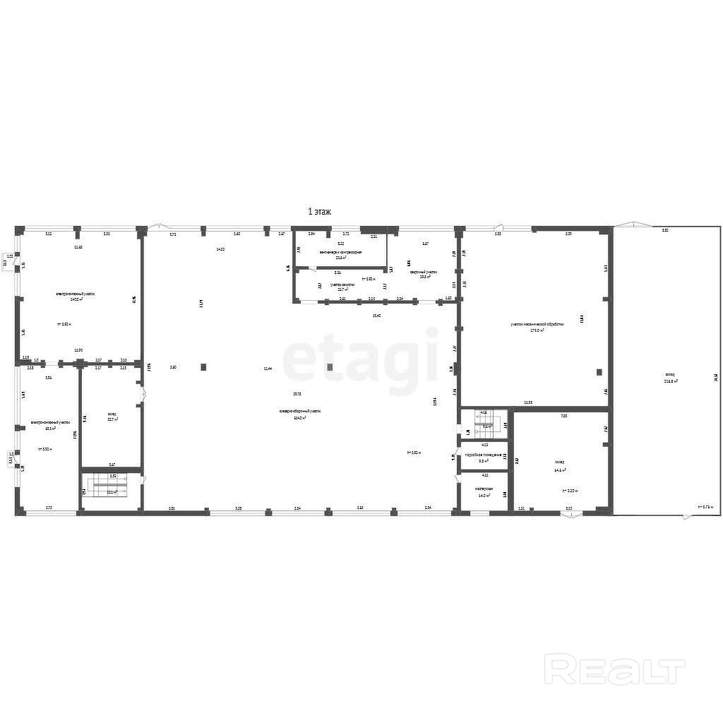
Планировка:
Помимо производственных помещений, в здании оборудованы:
- складские помещения
- комнаты отдыха
- раздевалки
- 4 офисных помещения
- своя котельная (на пеллетах)

Производственные мощности включают в себя:
- сборочный цех электроники
- цех для крупногабаритной сборки
- сварочный цех
- цех чистки
- линии для штамповки, пробивки металла

Об объекте:
Данное предложение представляет большой интерес для инвесторов и предпринимателей, планирующих организацию производства.
Производственные мощности, инфраструктура и укомплектованность оборудованием позволяют запустить производство практически сразу после приобретения объекта.

Цена указана с НДС.

Звоните! Покажем в удобное для вас время.
Покупая этот объект недвижимости, вы будете уверены в безопасности и надежности сделки.
Возможна покупка в кредит!

ООО «ЭТАЖИ юнайтед»
УНП: 193673318
Договор 976/1 от 20.06.2025
Лицензия на оказание риэлтерских услуг №02240/460 МЮ РБ от 03.04.2023

Параметры объекта

  • Тип объекта

    Производство

  • Площадь участка

    200 соток

  • Площадь общая

    1631.10 м²

  • Этаж / этажность

    1 / 1

  • Раздельных помещений

    11

  • Высота потолков

    4 м

  • Ремонт

    Хороший

  • Отопление

    Есть

  • Электроснабжение

    380В

  • Электрическая мощность

    250 кВт

  • Естественное освещение

    Есть

  • Вода

    Есть

  • Газ

    Есть

  • Санузел

    Есть

  • Количество телефонов

    3 телефона

  • Парковка

    Есть

  • Принадлежность объекта

    Частная

  • НДС

    НДС включен

  • Расположение

    Частный сектор

  • Юридический адрес

    Да

  • Номер договора

    976/1 от 19.06.2025

Оснащение

Видеонаблюдение

Компьютерная сеть

Интернет

Рампа

Отдельный вход

Примечание

- основной корпус 1631,1 м - гараж 146,9 м - высота потолков 5.92м - площадь всего участка 1 га - асфальт - своя котельная - остановка общественного транспорта - цена с НДС

Местоположение