В модном квартале на окраине города. Рассказываем о самой дорогой квартире, проданной на Брестчине
3509В таунхаусе на улице Вересковой в Бресте в сентябре продали* квартиру за 165 тысяч долларов. Она оказалась самой дорогой из купленных в прошлом месяце во всей Брестской области. Рассказываем подробности.
Квартал модных таунхаусов под названием «Скандинавское предместье» начали возводить в 2020 году. Застройщиком комплекса выступила компания «БрестКАДпроект». Жилой массив занял участок общей площадью 4 га на улице Вересковой (микрорайон Плоска). Вокруг — частный сектор с престижной коттеджной застройкой. До ближайшей инфраструктуры придется подъехать.
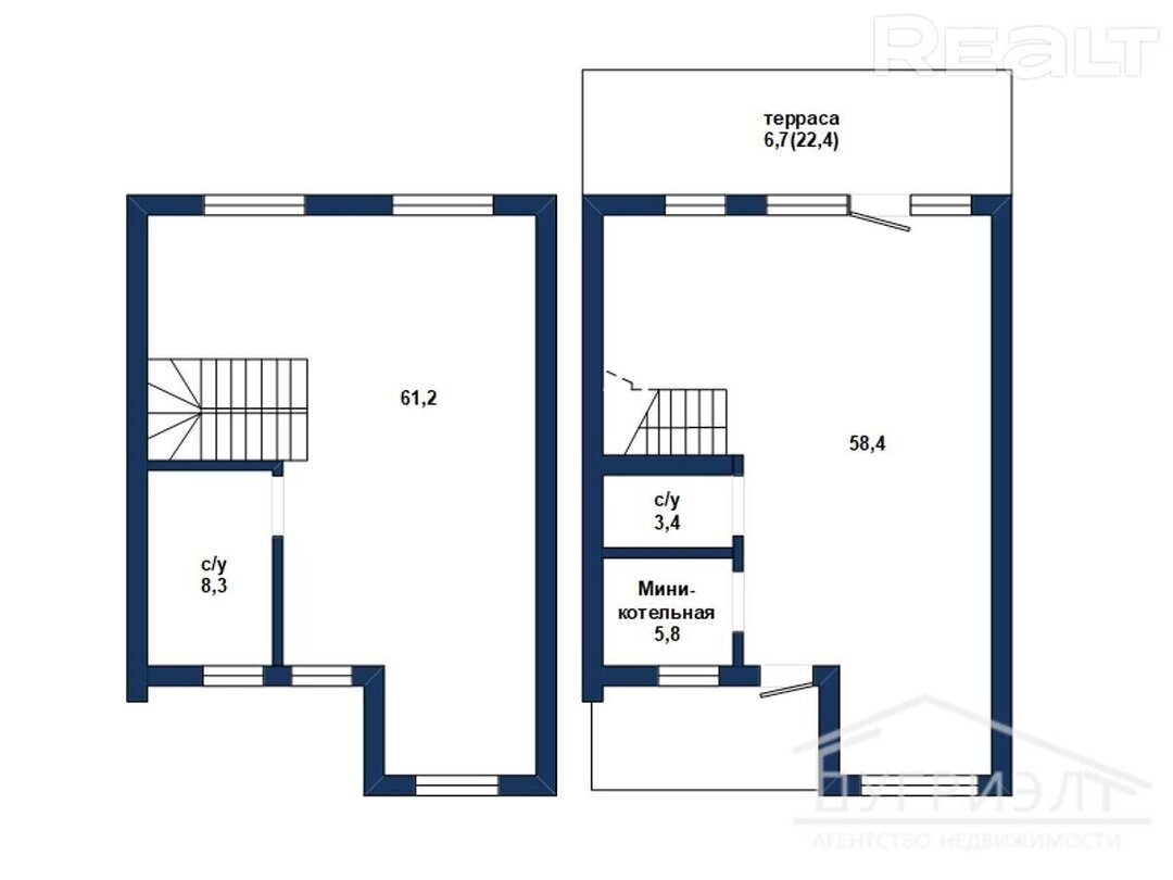
Общая площадь одного блочного таунхауса в комплексе составляет 110−150 квадратных метров. На первом этаже обычно располагается кухня-гостиная, мини-котельная, гостевой санузел и одна жилая комната, на втором этаже — еще несколько жилых комнат. Как раз в одном из таунхаусов 2022 года постройки и продали самую дорогую квартиру сентября. Жилье площадью 125 квадратов обошлось покупателю в 165 тысяч долларов, то есть метр в нем оценили в 1318 долларов.
Сейчас в «Скандинавском предместье» в Бресте продается еще несколько квартир стоимостью от 176 до 205 тысяч долларов. К примеру, таунхаус на Вересковой без отделки площадью 143 квадратных метра обойдется покупателю в 180 тысяч долларов.
А вообще на Realt продается и много других интересных квартир в Бресте и области. А еще на Realt легко и просто продавать свое жилье.
*Подготовлено на основании информации, полученной из Реестра цен на земельные участки pr.nca.by/.
Читайте также:
В новостройке, но на улице 19 века. Рассказываем о самой дорогой квартире, проданной на Брестчине
Это наша новая стабильность. Что происходит с продажей квартир в Минске и что нас ждет летом
87311
Застройщики переоценили спрос на студии. Что будет с ценами на новостройки этим летом
53692
10 самых интересных минских строек жилья в 2026 году. Панельные, монолитные, элитные и эконом
37392
«Фиксируем завышенные цены». Что происходит с квартирами в Минске прямо сейчас
8711
Включить стиральную машину — это тоже работа. Как делить домашние обязанности и не ссориться из-за быта
9060
Нашли пять классных квартир, в которые уже можно заезжать. Вот как купить их, если на руках — только 10% от стоимости
10946
«Дом с потенциалом». Семья построила умный A-frame под Минском, а сейчас продает по цене однушки
16166
Бизнес там, где есть спрос: на аукцион выставили 10 коммерческих помещений в свежих новостройках
6373
Видео этих агентов по недвижимости набирают по 50 тысяч просмотров. Что они делают?
15309
«Переезжать сюда насовсем желания нет». Узнали, как живется в брежневках в Чижовке
77681
Кредит, использование семейного капитала, уплата налогов. В каких случаях нужно вызывать профессионального оценщика недвижимости?
5891
Что такое альтернативные сделки или как переехать в квартиру побольше, не доплатив ни копейки?
9920
Минчане построили дом из двойного утепленного бруса с "подземной" баней. Съездили посмотреть, что у них получилось
64027
Нашли самую маленькую однушку в Минске с ремонтом и мебелью. И что по цене?
63440
За два участка боролись по 74 и 72 человека - и это новый рекорд! Рассказываем об итогах земельного аукциона в Минском районе
29973
Многие здесь работают в «Газпроме». Побывали в тихом поселке под Минском, о котором мало кто знает
52401
Не хватает на жилье в Минске? Собрали недорогие квартиры в городах-спутниках, где сразу можно жить
31706
Есть и за 7 тысяч. Нашли крепкие хаты до 20 тысяч долларов возле озер и леса
92290
"Когда переехали - мама заплакала". Как жили раньше и как живут сейчас в Шабанах - криминальном районе Минска 90-х
80457
До 50 тысяч долларов. Как выглядят и сколько стоят недорогие двушки в Минске, где сразу можно жить
84124- Бизнес центры
- Торговые центры
- Продажа гаражи, машиноместа
- Продажа офисы, нежилые помещения
- Продажа магазины, торговые помещения
- Продажа рестораны, бары, кафе
- Продажа склады, производства
- Продажа бизнес, сфера услуг
- Аренда офиса, помещений
- Аренда магазины, торговые помещения
- Аренда рестораны, бары, кафе
- Аренда склады, производства
- Аренда сфера услуг, игровой бизнес
- Аренда гаража, машиномест















