До $ 67 тысяч. Как выглядят и сколько стоят недорогие «трешки» в Минске, где сразу можно жить
28155На Realt можно найти жилье на любой вкус и бюджет. Недавно мы показали, какие продаются недорогие «однушки» и «двушки» с хорошим ремонтом в различных районах Минска. Сегодня в нашей подборке столичные трехкомнатные квартиры, которые не требуют вложений в обустройство. Их стоимость стартует от $ 59 тысяч.
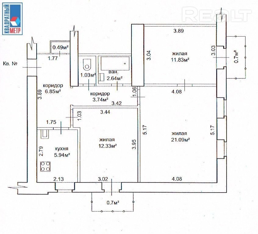
На ул. Волгоградская (р-н Зеленый луг)
В доме по адресу улица Волгоградская, 61 продается «трешка» площадью 45 квадратных метров (жилая — 32, кухня — 6). Дом пятиэтажный из силикатных блоков, построен в 1962 году. Капитальный ремонт проведен в 2021 году. Квартира на пятом этаже. Над ней чердак и скатная крыша.
— В квартире просторная кухня-гостиная и две отдельные комнаты. Установлены стеклопакеты, во всей квартире натяжные потолки, заменена вся электрика. Совмещенный санузел, в котором был произведен полный ремонт: современная плитка, заменены все трубы, установлена новая сантехника, инсталляция и смесители Grohe, — пишут в объявлении.
Новым владельцам при покупке квартиры остаются два вместительных шкафа-купе, встроенная кухня и техника, посудомоечная машина.
Возле дома есть детские сады, школа, магазины, кафе, парк. В шаговой доступности несколько остановок общественного транспорта.
Цена: $ 59 800.
На ул. Надеждинская (р-н Маяковская)
Трехкомнатная квартира площадью 50 «квадратов» (жилая — 34, кухня — 6) продается в доме по адресу улица Надеждинская, 11/2. Она находится на пятом этаже панельной пятиэтажки, построенной в 1969 году. Год капремотна — 2016. Все коммуникации были заменены.
Квартира полностью готова к проживанию. При продаже остается встроенная кухня, оснащенная бытовой техникой, частично мебель. Есть застекленный балкон. Санузел совмещенный. Полы из ламината, установлены стеклопакеты, счетчики на воду.
Двор возле дома благоустроен, много зелени. Хороша развита инфраструктура района: торговый центр, магазины, почта, аптеки, тренажерный зал, отделения банков и другое. Поблизости расположена набережная реки Свислочь и Лошицкий парк.
Дом находится почти в центре города. Ж/д вокзал в 15 минутах на общественном транспорте. Остановка в пешей остановка.
Цена: $ 65 000.
На ул. Уборевича (Чижовка)
«Трешка» продается в доме по адресу улица Уборевича, 122. Площадь квартиры составляет 50 м² (жилая — 34, кухня — 6). Она на втором этаже. Дом пятиэтажный, панельный, построен в 1969 году.
— В квартире три светлые жилые комнаты, эргономичный коридор, раздельный санузел, застекленный балкон, удобная планировка, все окна выходят во двор, — говорится в объявлении.
Здесь выполнен качественный ремонт — в жилых комнатах полы из ламината, в коридоре и кухне — плитка, полы теплые, все стены выровнены, подвесные потолки с точечным и общим светом, заменена вся электропроводка.
На кухне установлен кухонный гарнитур с надежной фурнитурой, большим количеством различных секций и всей необходимой встроенной техникой. В окнах жилых комнат и кухни двухкамерные стеклопакеты. Также установлена входная металлическая дверь.
Рядом с домом расположены детские сады, школы, аптеки, продуктовые и хозяйственные магазины, несколько банков, почта, детская площадка во дворе. В шаговой доступности водохранилище, парк, экотропа. Возле дома удобный выезд на МКАД, а также остановки общественного транспорта.
Цена: $ 61 500 с торгом.
На ул. Ангарская (р-н м. Могилевская)
Трехкомнатная квартира площадью 55 м² (жилая — 35, кухня — 9) продается в кирпичной пятиэтажке по адресу улица Ангарская, 13/2 на первом этаже. Дом построен в 1969 году. Недавно проведен капремонт.
Как пишут в объявлении, в квартире выполнен аккуратный ремонт. Есть встроенная кухня, укомплектованная необходимой бытовой техникой — плита с духовым шкафом, СВЧ-печь, напольное покрытие — ламинат и плитка. На всех окнах установлены качественные стеклопакеты. Окна выходят во двор. Установлены металлическая двойная дверь, счетчики воды, газа и электроэнергии. Есть сухой и удобный подвал.
Во дворе много парковочных мест, детские площадки. В пяти минутах ходьбы станция метро «Могилевская» и остановка общественного транспорта. Рядом торговый центр, школа, детские сады. Недалеко находится детская и взрослая поликлиники.
Цена: $ 62 900.
На ул. Карвата (Степянка)
Трехкомнатная квартира продается в четырехэтажной «сталинке» по адресу улица Карвата, 34 на четвертом этаже. Общая площадь квартиры — 66 квадратных метров (жилая — 45, кухня — 6). Дом кирпичный, построен в 1951 году. Капитальный ремонт проведен 20 лет назад.
Одно из преимуществ квартиры в высоких потолках — почти три метра. В квартире два застекленных балкона обиты вагонкой, санузел раздельный, во всех комнатах уложен ламинат, выровнены стены и заменены трубы на полипропиленовые, установлены двухкамерные стеклопакеты. В ванной новый смеситель и полотенцесушитель, в туалете новый унитаз.
В объявлении отмечается, что при продаже на кухне остается кухонный гарнитур с техникой и встроенная мебель в спальне и коридоре.
Возле дома детский сад, школа, стадион, магазины почта, аптека, лесопарк, водоем с беседками, и так далее. Расположение с точки зрения экологии удачное — Степянка окружена зелеными зонами. Также рядом остановка общественного транспорта и удобный выезд на МКАД.
Цена: $ 64 800.
На ул. Волоха (р-н Грушевка)
В пятиэтажке по адресу улица Волоха, 59 продается «трешка» площадью 57 квадратных метра (жилая — 42, кухня — 6). Она находится на второй этаже. Дом построен в 1970 году. Сделан капитальный ремонт.
В квартире хороший ремонт — полы из ламината, двери из массива, установлены стеклопакеты и входная металлическая дверь. Также здесь новая душевая кабина, есть два встроенных шкафа, холодильник, телевизор, стиральная машина. Все при продаже остается новом владельцу. Есть застекленный балкон. Санузел совмещенный.
Дом расположен в районе с развитой инфраструктурой — множество детских садов, школа, поликлиника, больница, магазины, отделения банков. Возле дома благоустроенный двор, скверы. До станции метро «Грушевка» 15 минут пешком. Рядом остановка наземного общественного транспорта.
Цена: $ 66 800.
Это наша новая стабильность. Что происходит с продажей квартир в Минске и что нас ждет летом
68478
Застройщики переоценили спрос на студии. Что будет с ценами на новостройки этим летом
43087
10 самых интересных минских строек жилья в 2026 году. Панельные, монолитные, элитные и эконом
17904
Ремонт за 21 месяц и 41 тысячу долларов. Посмотрите, как преобразилась хрущевка после перепланировки
10657
Новая Боровая или Зеленая гавань? Ищем квартиру для семьи, которая любит природу и комфорт
9373
В 2026 году «Жилищный баланс» планирует купить до 3000 квартир. Интервью с руководителем — о результатах и планах
10519
«Лучше по 300 рублей, но каждый месяц». Как правильно откладывать на свое жилье и копить на первый взнос?
13003
Минчанин показал, как устроен его стеклянный дом у леса: «Теплее, чем кажется»
116484
Видео этих агентов по недвижимости набирают по 50 тысяч просмотров. Что они делают?
13987
«Переезжать сюда насовсем желания нет». Узнали, как живется в брежневках в Чижовке
75790
Кредит, использование семейного капитала, уплата налогов. В каких случаях нужно вызывать профессионального оценщика недвижимости?
4768
Что такое альтернативные сделки или как переехать в квартиру побольше, не доплатив ни копейки?
8161
Минчане построили дом из двойного утепленного бруса с "подземной" баней. Съездили посмотреть, что у них получилось
64027
Нашли самую маленькую однушку в Минске с ремонтом и мебелью. И что по цене?
63440
За два участка боролись по 74 и 72 человека - и это новый рекорд! Рассказываем об итогах земельного аукциона в Минском районе
29973
Многие здесь работают в «Газпроме». Побывали в тихом поселке под Минском, о котором мало кто знает
52401
Не хватает на жилье в Минске? Собрали недорогие квартиры в городах-спутниках, где сразу можно жить
31706
Есть и за 7 тысяч. Нашли крепкие хаты до 20 тысяч долларов возле озер и леса
92290
"Когда переехали - мама заплакала". Как жили раньше и как живут сейчас в Шабанах - криминальном районе Минска 90-х
80457
До 50 тысяч долларов. Как выглядят и сколько стоят недорогие двушки в Минске, где сразу можно жить
84124- Бизнес центры
- Торговые центры
- Продажа гаражи, машиноместа
- Продажа офисы, нежилые помещения
- Продажа магазины, торговые помещения
- Продажа рестораны, бары, кафе
- Продажа склады, производства
- Продажа бизнес, сфера услуг
- Аренда офиса, помещений
- Аренда магазины, торговые помещения
- Аренда рестораны, бары, кафе
- Аренда склады, производства
- Аренда сфера услуг, игровой бизнес
- Аренда гаража, машиномест









































































































































