На берегу большого озера Браславщины. Продается дом с террасами, коммуникациями и отличным видом
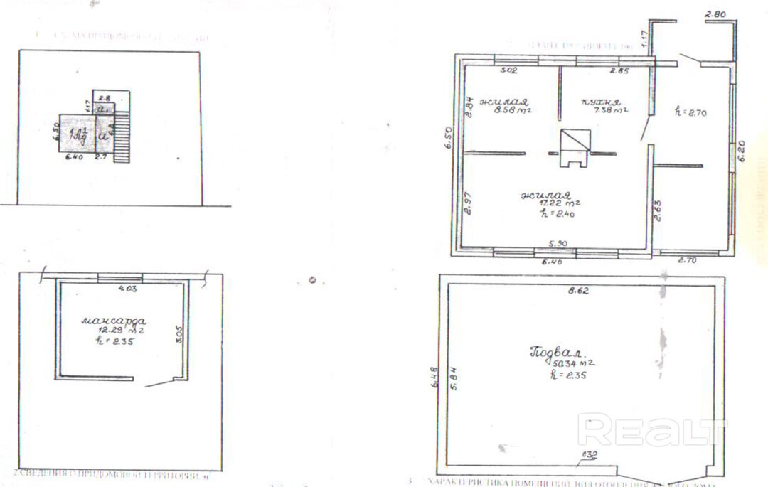
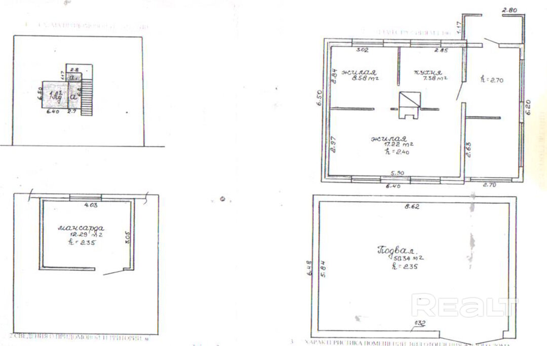
29230Озеро Струсто — третье по размерам в Браславской группе. Оно находится недалеко от города и по большей части окружено лесом. Именно такие соседи у дома, что нашли в базе Realt. Сруб с двумя жилыми этажами хорошо выглядит внутри и снаружи, несмотря на то, что ему больше 40 лет. Он с хорошим ремонтом, коммуникациями и живописными видами на участок и озеро. Сколько стоит?
На мансарду можно попасть только с улицы, поднявшись по лестнице. Первым делом, попадаешь на еще одну террасу, а потом уже — в дом. На втором этаже три помещения, два из них обустроены под спальни.
Отапливается дом с помощью печки и каминов (один есть и на мансарде), а также конвекторов. В совмещенный санузел введена вода из колодца и местная канализация. Получается, что в доме можно оставаться и зимой.
Оценили дом в 255 тысяч долларов.
Это наша новая стабильность. Что происходит с продажей квартир в Минске и что нас ждет летом
91151
Застройщики переоценили спрос на студии. Что будет с ценами на новостройки этим летом
55681
10 самых интересных минских строек жилья в 2026 году. Панельные, монолитные, элитные и эконом
41971
«Фиксируем завышенные цены». Что происходит с квартирами в Минске прямо сейчас
11200
«У меня уникальная спальня». Минчанка сделала классный ремонт в сталинке над аркой
27224
«Заселились 40 лет назад, уезжать не хотим». Как живется в панельках возле парка Павлова в Малиновке
19855
Телефон в рассрочку будет выгоднее, чем при оплате сразу? Смотрим обновленный салон Life в центре Минска
1185
Видео этих агентов по недвижимости набирают по 50 тысяч просмотров. Что они делают?
15309
«Переезжать сюда насовсем желания нет». Узнали, как живется в брежневках в Чижовке
77681
Кредит, использование семейного капитала, уплата налогов. В каких случаях нужно вызывать профессионального оценщика недвижимости?
5891
Что такое альтернативные сделки или как переехать в квартиру побольше, не доплатив ни копейки?
9920
Минчане построили дом из двойного утепленного бруса с "подземной" баней. Съездили посмотреть, что у них получилось
64027
Нашли самую маленькую однушку в Минске с ремонтом и мебелью. И что по цене?
63440
За два участка боролись по 74 и 72 человека - и это новый рекорд! Рассказываем об итогах земельного аукциона в Минском районе
29973
Многие здесь работают в «Газпроме». Побывали в тихом поселке под Минском, о котором мало кто знает
52401
Не хватает на жилье в Минске? Собрали недорогие квартиры в городах-спутниках, где сразу можно жить
31706
Есть и за 7 тысяч. Нашли крепкие хаты до 20 тысяч долларов возле озер и леса
92290
"Когда переехали - мама заплакала". Как жили раньше и как живут сейчас в Шабанах - криминальном районе Минска 90-х
80457
До 50 тысяч долларов. Как выглядят и сколько стоят недорогие двушки в Минске, где сразу можно жить
84124
"На нашей детской площадке собиралась вся Малиновка". Как живется в тех самых "английских" домах от МАПИДа в Минске
35883- Бизнес центры
- Торговые центры
- Продажа гаражи, машиноместа
- Продажа офисы, нежилые помещения
- Продажа магазины, торговые помещения
- Продажа рестораны, бары, кафе
- Продажа склады, производства
- Продажа бизнес, сфера услуг
- Аренда офиса, помещений
- Аренда магазины, торговые помещения
- Аренда рестораны, бары, кафе
- Аренда склады, производства
- Аренда сфера услуг, игровой бизнес
- Аренда гаража, машиномест











