Акция в ЖК «У Троицкого»! Самая недорогая квартира с видом на Свислочь до конца февраля!
4347ЖК «У Троицкого» — самый статусный и популярный в столице среди элитного жилья. Это новостройка премиум класса в историческом, культурном, деловом центре Минска.

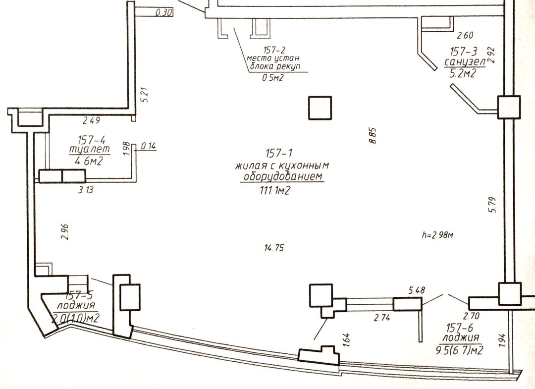
Продается квартира с шикарным панорамным видом на Свислочь. Все окна на одну сторону. 130 квадратных метров свободной планировки позволят воплотить в жизнь самые смелые интерьерные решения. Впечатляющая высота потолков 3 метра.

Дом оборудован новейшими системами охраны и безопасности — видеонаблюдение периметра дома и мест общего пользования с возможностью вывода информации на видеодомофон, консьерж, профессиональная служба безопасности, сигнализация, осуществление учёта и пропуска автотранспорта на стоянках, система предотвращения протечки воды.

Вместительный 3-уровневый подземный паркинг, охраняемый и отапливаемый, оборудован лифтами в подъезд.

Качественная отделка подъездов камнем, зеркалами, кафелем, безшумные лифты.

Система «Умный дом», включающая в себя возможность управления освещением и электроснабжением, климат-контроль (отопительное оборудование, вентиляция и кондиционирование, отображение метеоинформации).

Расположение дома в самом центре Минска позволит ощущать себя в эпицентре столичной активности, а живописный вид на Свислочь из окон вашей квартиры с умиротворяющим воздействием будет располагать к неспешным прогулкам по свежему воздуху вдоль набережной, а так же по уютным мощеным улочкам Троицкого предместья.

Именно по этим причинам этот дом столь популярен и привлекателен.
Спешите приобрести вашу лучшую видовую квартиру по беспрецедентно низкой цене 2500 $ за квадратный метр! Предложение актуально до конца февраля!
+37 529−6 646 814 Анастасия
http://realt.by/sale/flats/object/542 503/
www.domina.by

Это наша новая стабильность. Что происходит с продажей квартир в Минске и что нас ждет летом
65778
Застройщики переоценили спрос на студии. Что будет с ценами на новостройки этим летом
41442
Такая хата вам не нужна. На что смотреть дилетанту при покупке дома под дачу в деревне
22965
10 самых интересных минских строек жилья в 2026 году. Панельные, монолитные, элитные и эконом
15200
Pinterest, в который можно прийти вживую. Рядом с Северным берегом появилось пространство интерьерного вдохновения
4717
В Минске продают спорткомплекс с теннисными кортами профессионального уровня. Где он находится?
10310
Загадали в 2026-м переехать в свое жилье? Знаем, как вам помочь
9582
«Местность небанальная, поэтому привлекательная». Как живется на улице Беды в Минске
8021
Видео этих агентов по недвижимости набирают по 50 тысяч просмотров. Что они делают?
13743
«Переезжать сюда насовсем желания нет». Узнали, как живется в брежневках в Чижовке
75486
Кредит, использование семейного капитала, уплата налогов. В каких случаях нужно вызывать профессионального оценщика недвижимости?
4666
Что такое альтернативные сделки или как переехать в квартиру побольше, не доплатив ни копейки?
7893
Минчане построили дом из двойного утепленного бруса с "подземной" баней. Съездили посмотреть, что у них получилось
64027
Нашли самую маленькую однушку в Минске с ремонтом и мебелью. И что по цене?
63440
За два участка боролись по 74 и 72 человека - и это новый рекорд! Рассказываем об итогах земельного аукциона в Минском районе
29973
Многие здесь работают в «Газпроме». Побывали в тихом поселке под Минском, о котором мало кто знает
52401
Не хватает на жилье в Минске? Собрали недорогие квартиры в городах-спутниках, где сразу можно жить
31706
Есть и за 7 тысяч. Нашли крепкие хаты до 20 тысяч долларов возле озер и леса
92290
"Когда переехали - мама заплакала". Как жили раньше и как живут сейчас в Шабанах - криминальном районе Минска 90-х
80457
До 50 тысяч долларов. Как выглядят и сколько стоят недорогие двушки в Минске, где сразу можно жить
84124- Бизнес центры
- Торговые центры
- Продажа гаражи, машиноместа
- Продажа офисы, нежилые помещения
- Продажа магазины, торговые помещения
- Продажа рестораны, бары, кафе
- Продажа склады, производства
- Продажа бизнес, сфера услуг
- Аренда офиса, помещений
- Аренда магазины, торговые помещения
- Аренда рестораны, бары, кафе
- Аренда склады, производства
- Аренда сфера услуг, игровой бизнес
- Аренда гаража, машиномест