Уютная и функциональная квартира в Минске
31122 минуты ходьбы до ст.м. Каменная горка, хорошее транспортное сообщение, недалеко выезд на МКАД, развитая инфраструктура, благоустроенная дворовая территория.
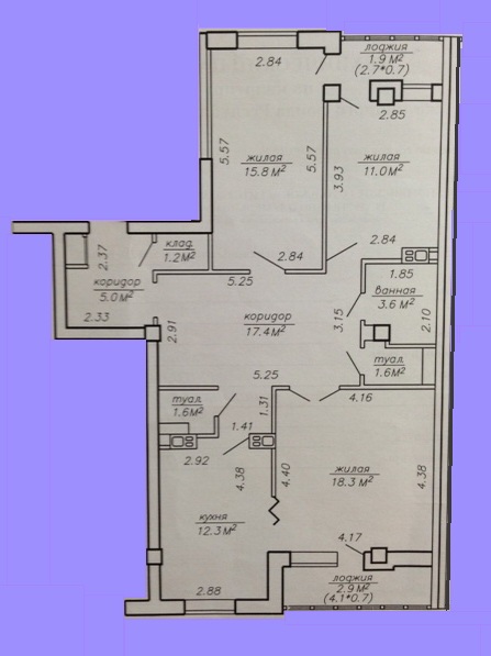
В квартире сделан отличный качественный ремонт — импортные материалы, сантехника GROHE, TEKA, бойлер ariston, немецкие обои, встроенная кухня с бытовой техникой, встроенная электрическая варочная панель, посудомоечная машина, фильтр воды, пол — паркет (гостиная, коридор), пробка (комнаты), плитка (прихожая, кухня, санузлы), двери и шкафы по индивидуальному заказу — все для комфортной жизни!
ОЧЕНЬ УЮТНАЯ, ТЁПЛАЯ И СВЕТЛАЯ КВАРТИРА
ЦЕНА — 187 000 у.е. ТОРГ
Тел. +375 29 957 48 12, +375 29 755 49 63, +375 17 283 24 01
Это наша новая стабильность. Что происходит с продажей квартир в Минске и что нас ждет летом
65778
Застройщики переоценили спрос на студии. Что будет с ценами на новостройки этим летом
41442
Такая хата вам не нужна. На что смотреть дилетанту при покупке дома под дачу в деревне
22965
10 самых интересных минских строек жилья в 2026 году. Панельные, монолитные, элитные и эконом
15200
Pinterest, в который можно прийти вживую. Рядом с Северным берегом появилось пространство интерьерного вдохновения
4717
В Минске продают спорткомплекс с теннисными кортами профессионального уровня. Где он находится?
10310
Загадали в 2026-м переехать в свое жилье? Знаем, как вам помочь
9582
«Местность небанальная, поэтому привлекательная». Как живется на улице Беды в Минске
8021
Видео этих агентов по недвижимости набирают по 50 тысяч просмотров. Что они делают?
13743
«Переезжать сюда насовсем желания нет». Узнали, как живется в брежневках в Чижовке
75486
Кредит, использование семейного капитала, уплата налогов. В каких случаях нужно вызывать профессионального оценщика недвижимости?
4666
Что такое альтернативные сделки или как переехать в квартиру побольше, не доплатив ни копейки?
7893
Минчане построили дом из двойного утепленного бруса с "подземной" баней. Съездили посмотреть, что у них получилось
64027
Нашли самую маленькую однушку в Минске с ремонтом и мебелью. И что по цене?
63440
За два участка боролись по 74 и 72 человека - и это новый рекорд! Рассказываем об итогах земельного аукциона в Минском районе
29973
Многие здесь работают в «Газпроме». Побывали в тихом поселке под Минском, о котором мало кто знает
52401
Не хватает на жилье в Минске? Собрали недорогие квартиры в городах-спутниках, где сразу можно жить
31706
Есть и за 7 тысяч. Нашли крепкие хаты до 20 тысяч долларов возле озер и леса
92290
"Когда переехали - мама заплакала". Как жили раньше и как живут сейчас в Шабанах - криминальном районе Минска 90-х
80457
До 50 тысяч долларов. Как выглядят и сколько стоят недорогие двушки в Минске, где сразу можно жить
84124- Бизнес центры
- Торговые центры
- Продажа гаражи, машиноместа
- Продажа офисы, нежилые помещения
- Продажа магазины, торговые помещения
- Продажа рестораны, бары, кафе
- Продажа склады, производства
- Продажа бизнес, сфера услуг
- Аренда офиса, помещений
- Аренда магазины, торговые помещения
- Аренда рестораны, бары, кафе
- Аренда склады, производства
- Аренда сфера услуг, игровой бизнес
- Аренда гаража, машиномест











