До 43 тысяч долларов. Как выглядят и сколько стоят самые дешевые квартиры в Минске
25886В пригороде Минска еще можно найти квартиры дешевле 40 тысяч долларов, а вот в черте города таких уже не осталось. Подобрали 5 бюджетных вариантов до 43 тысяч долларов. Это однушки в трех районах Минска. Показываем, как они выглядят.
Дом стоит во дворах. Между ним и дорогой располагается одно здание. По другую сторону улицы находится Чижовское водохранилище.
Стоимость квартиры — 40 тысяч долларов. Метр — 1 667 долларов.
Станция метро «Грушевка» находится в 10 минутах ходьбы.
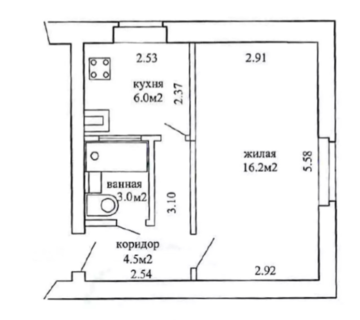
Цена однушки — 40 тысяч долларов. Один квадратный метр обойдется в 1 493 доллара.
До станций метро «Площадь Победы» и «Тракторный завод» всего несколько остановок на трамвае.
Стоимость квартиры — 41 500 долларов. Метр — 1 354 доллара.
До станции метро «Партизанская» около 10 минут ходьбы. Рядом есть магазины, детский сад и кинотеатр.
Квартира стоит 42 800 долларов. Метр — 1 441 доллар.
В шаговой доступности расположены детский сад, школа. В трех остановках находится станция метро «Могилевская».
Квартира обойдется в 42 тысячи долларов. Метр — 1 243 доллара.
Читайте также:
В том самом доме-кукурузе продается квартира с панорамным видом на Комаровку. Что по цене?
Это наша новая стабильность. Что происходит с продажей квартир в Минске и что нас ждет летом
77036
Застройщики переоценили спрос на студии. Что будет с ценами на новостройки этим летом
48009
10 самых интересных минских строек жилья в 2026 году. Панельные, монолитные, элитные и эконом
26054
Первыми провели онлайн-сделку и за пару недель купили квартиру для нового участника. Как кооператив из Минска стал известен всей Беларуси
6038
Ищете офис недалеко от метро? Посмотрите, какой вариант класса В+ предлагают в районе Михалово
2756
Этот город построили женщины? Вспоминаем самых ярких жительниц Минска — и смотрим места, связанные с ними
4098
В Островце начали продавать квартиры по цене 2700 рублей за м². Кто и зачем их строит?
9606
Минск или пригород? Что выбрать, если бюджет ограничен: реальные истории
2248
Видео этих агентов по недвижимости набирают по 50 тысяч просмотров. Что они делают?
14652
«Переезжать сюда насовсем желания нет». Узнали, как живется в брежневках в Чижовке
76822
Кредит, использование семейного капитала, уплата налогов. В каких случаях нужно вызывать профессионального оценщика недвижимости?
5204
Что такое альтернативные сделки или как переехать в квартиру побольше, не доплатив ни копейки?
8958
Минчане построили дом из двойного утепленного бруса с "подземной" баней. Съездили посмотреть, что у них получилось
64027
Нашли самую маленькую однушку в Минске с ремонтом и мебелью. И что по цене?
63440
За два участка боролись по 74 и 72 человека - и это новый рекорд! Рассказываем об итогах земельного аукциона в Минском районе
29973
Многие здесь работают в «Газпроме». Побывали в тихом поселке под Минском, о котором мало кто знает
52401
Не хватает на жилье в Минске? Собрали недорогие квартиры в городах-спутниках, где сразу можно жить
31706
Есть и за 7 тысяч. Нашли крепкие хаты до 20 тысяч долларов возле озер и леса
92290
"Когда переехали - мама заплакала". Как жили раньше и как живут сейчас в Шабанах - криминальном районе Минска 90-х
80457
До 50 тысяч долларов. Как выглядят и сколько стоят недорогие двушки в Минске, где сразу можно жить
84124- Бизнес центры
- Торговые центры
- Продажа гаражи, машиноместа
- Продажа офисы, нежилые помещения
- Продажа магазины, торговые помещения
- Продажа рестораны, бары, кафе
- Продажа склады, производства
- Продажа бизнес, сфера услуг
- Аренда офиса, помещений
- Аренда магазины, торговые помещения
- Аренда рестораны, бары, кафе
- Аренда склады, производства
- Аренда сфера услуг, игровой бизнес
- Аренда гаража, машиномест










































































