Нашли бюджетные двушки (не студии) с нормальным ремонтом в Минске. Вот они
51544Подобрали пять полноценных двухкомнатных квартир из четырех районов Минска. Они продаются с нормальным ремонтом. Посмотрите, как они выглядят и сколько стоят.
Дом располагается во дворе. До Слепянской водной системы около трех минут ходьбы. Недалеко находятся остановки общественного транспорта, продуктовые магазины и поликлиника.
Стоимость квартиры — 73 тысячи долларов. Метр обойдется в 1 547 долларов.
Дом располагается недалеко от цента. До станции метро «Площадь Победы» около 5 минут езды.
Стоимость двушки — 67 тысяч долларов. Квадратный метр — 1 530 долларов.
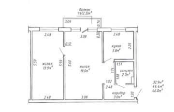
В квартире сделан хороший ремонт, заменены все коммуникации, сделана электрика. На полу лежит ламинат и плитка. Гостиная тут проходная. Кухня оборудована необходимой техникой: газовой поверхностью, духовым шкафом и посудомоечной машиной Maunfeld, вытяжкой Smeg.
В 15 минутах располагается станция метро «Тракторный завод». Рядом с домом сквер имени Клумова, Антоновский парк.
Цена квартиры — 70 тысяч долларов. Метр — 1 522 долларов.
В 2022 году был проведен капремонт. Тогда же в квартире сделали ремонт. В комнатах потолок выполнен из гипсокартона с точечными светильниками и подсветкой, в коридоре и на кухне сделаны натяжные потолки.
Одна из комнат тут является проходной. Кухня оборудована газовой плитой и вытяжкой.
До станции метро «Пушкинская» идти около 10 минут.
Цена квартиры — 64 900 долларов. Метр — 1 462 доллара.
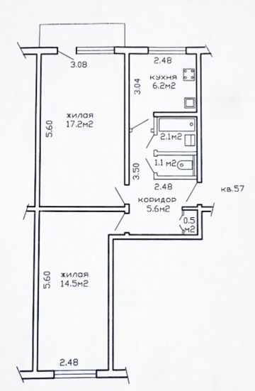
Дом на Уборевича, 44 построили в пять этажей в 1970 году. Тут на четвертом продается квартира площадью 48,1 м². Кухня занимает 6,6 м².
В квартире две раздельные комнаты. Она полностью готова к проживаю. На поул тут лежат плитка и ламинат.
Квартира обойдется в 67 900 долларов. Метр стоит 1 412 долларов.
Это наша новая стабильность. Что происходит с продажей квартир в Минске и что нас ждет летом
59304
Застройщики переоценили спрос на студии. Что будет с ценами на новостройки этим летом
37451
Что за дом начинают строить в тихом местечке недалеко от Логойского тракта? Узнали подробности
13774
«Слышим даже как сосед за стенкой кашляет». Как живется в панельках на краю Каменной Горки
10208
Рост цен на квартиры на 70%, первый гипермаркет и рождение Realt. Каким был 2005 год в Беларуси
8705
Не дайте себя обмануть при покупке дома. Как правильно выбирать коттедж, если вы дилетант
6442
«Желающих купить жилье тут больше, чем квартир». Как живется в квартале у Свислочи, который ждут перемены
14896
В Минске достраивают уникальный ЖК с бизнес-центром класса Prime. Что тут можно купить для жизни и работы?
6168
Как страховка сэкономит вам 70 тысяч долларов?
6625
Видео этих агентов по недвижимости набирают по 50 тысяч просмотров. Что они делают?
12762
«Переезжать сюда насовсем желания нет». Узнали, как живется в брежневках в Чижовке
74482
Кредит, использование семейного капитала, уплата налогов. В каких случаях нужно вызывать профессионального оценщика недвижимости?
4109
Что такое альтернативные сделки или как переехать в квартиру побольше, не доплатив ни копейки?
7025
Минчане построили дом из двойного утепленного бруса с "подземной" баней. Съездили посмотреть, что у них получилось
64027
Нашли самую маленькую однушку в Минске с ремонтом и мебелью. И что по цене?
63440
За два участка боролись по 74 и 72 человека - и это новый рекорд! Рассказываем об итогах земельного аукциона в Минском районе
29973
Многие здесь работают в «Газпроме». Побывали в тихом поселке под Минском, о котором мало кто знает
52401
Не хватает на жилье в Минске? Собрали недорогие квартиры в городах-спутниках, где сразу можно жить
31706
Есть и за 7 тысяч. Нашли крепкие хаты до 20 тысяч долларов возле озер и леса
92290
"Когда переехали - мама заплакала". Как жили раньше и как живут сейчас в Шабанах - криминальном районе Минска 90-х
80457- Бизнес центры
- Торговые центры
- Продажа гаражи, машиноместа
- Продажа офисы, нежилые помещения
- Продажа магазины, торговые помещения
- Продажа рестораны, бары, кафе
- Продажа склады, производства
- Продажа бизнес, сфера услуг
- Аренда офиса, помещений
- Аренда магазины, торговые помещения
- Аренда рестораны, бары, кафе
- Аренда склады, производства
- Аренда сфера услуг, игровой бизнес
- Аренда гаража, машиномест








































































