До 55 тысяч долларов. Как выглядят и сколько стоят самые дешевые двушки в Минске
32055Нашли пять самых дешевых двухкомнатных квартир в Минске. Некоторые из них нуждаются в капитальном ремонте, часть — пригодны для жизни сразу после покупки. Показываем их интерьер и пишем про стоимость.
В нескольких остановках находится Цнянское водохранилище. Рядом — поликлиники, детские сады и остановки транспорта, который доезжает до метро.
Квадратный метр обойдется в 1 290 долларов. Вся квартира стоит 49 950 долларов.
Поблизости располагаются детские сады, школа и продуктовые магазины. За десять минут на транспорте можно добраться до станции метро «Могилевская».
Цена квадратного метра — 1 301 доллар. Двушка стоит 53 тысячи долларов.
Рядом находятся кинотеатр «Салют», Чижовское водохранилище и магазины.
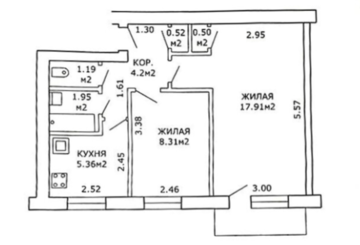
Квадратный метр стоит 1 432 доллара. Цена квартиры — 55 тысяч долларов.
За 15 минут можно добраться до станции метро «Автозаводская».
Метр стоит 1 501 доллар. Квартира обойдется в 54 900 долларов.
За 10 минут на общественном транспорте можно добраться до станции метро «Автозаводская». Рядом и Чижовское водохранилище.
Квадрат обойдется в 1 231 доллар. Квартира стоит 54 900 долларов.
Читайте также:
В Осмоловке продается стильная квартира с оригинальными элементами. А сколько стоит?
Сейчас так уже не строят. Как живется в самом известном доме на площади Якуба Коласа
В Минске появилась новая улица. В честь кого назвали?
Это наша новая стабильность. Что происходит с продажей квартир в Минске и что нас ждет летом
77436
Застройщики переоценили спрос на студии. Что будет с ценами на новостройки этим летом
48229
10 самых интересных минских строек жилья в 2026 году. Панельные, монолитные, элитные и эконом
26321
Первыми провели онлайн-сделку и за пару недель купили квартиру для нового участника. Как кооператив из Минска стал известен всей Беларуси
6143
Ищете офис недалеко от метро? Посмотрите, какой вариант класса В+ предлагают в районе Михалово
2881
Этот город построили женщины? Вспоминаем самых ярких жительниц Минска — и смотрим места, связанные с ними
4859
В Островце начали продавать квартиры по цене 2700 рублей за м². Кто и зачем их строит?
10841
Минск или пригород? Что выбрать, если бюджет ограничен: реальные истории
3515
Видео этих агентов по недвижимости набирают по 50 тысяч просмотров. Что они делают?
14670
«Переезжать сюда насовсем желания нет». Узнали, как живется в брежневках в Чижовке
76873
Кредит, использование семейного капитала, уплата налогов. В каких случаях нужно вызывать профессионального оценщика недвижимости?
5221
Что такое альтернативные сделки или как переехать в квартиру побольше, не доплатив ни копейки?
8994
Минчане построили дом из двойного утепленного бруса с "подземной" баней. Съездили посмотреть, что у них получилось
64027
Нашли самую маленькую однушку в Минске с ремонтом и мебелью. И что по цене?
63440
За два участка боролись по 74 и 72 человека - и это новый рекорд! Рассказываем об итогах земельного аукциона в Минском районе
29973
Многие здесь работают в «Газпроме». Побывали в тихом поселке под Минском, о котором мало кто знает
52401
Не хватает на жилье в Минске? Собрали недорогие квартиры в городах-спутниках, где сразу можно жить
31706
Есть и за 7 тысяч. Нашли крепкие хаты до 20 тысяч долларов возле озер и леса
92290
"Когда переехали - мама заплакала". Как жили раньше и как живут сейчас в Шабанах - криминальном районе Минска 90-х
80457
До 50 тысяч долларов. Как выглядят и сколько стоят недорогие двушки в Минске, где сразу можно жить
84124- Бизнес центры
- Торговые центры
- Продажа гаражи, машиноместа
- Продажа офисы, нежилые помещения
- Продажа магазины, торговые помещения
- Продажа рестораны, бары, кафе
- Продажа склады, производства
- Продажа бизнес, сфера услуг
- Аренда офиса, помещений
- Аренда магазины, торговые помещения
- Аренда рестораны, бары, кафе
- Аренда склады, производства
- Аренда сфера услуг, игровой бизнес
- Аренда гаража, машиномест






















































