От 69 от 77 тысяч долларов. Как выглядят самые дешевые трешки в Минске
20164Сегодня мы рассказали, что лидером роста цен на квартиры в Минске по итогам полугодия стали трешки. За 6 месяцев квадрат в таких квартирах вырос на 12%. Нам удалось найти пять трехкомнатных квартир по самой бюджетной в городе цене — от 69 до 77 тысяч долларов. Они находятся в трех районах города: Первомайском, Фрунзенском и Заводском. Показываем, как выглядит такое жилье.
Дом стоит рядом с МКАД. Поблизости есть детские сады, школа и остановки транспорта.
Квадратный метр обойдется в 1350 долларов. Трешка стоит 69 тысяч долларов.
Рядом находятся бульвар и парк. До станций метро «Спортивная» и «Пушкинская» около 10 минут ходьбы.
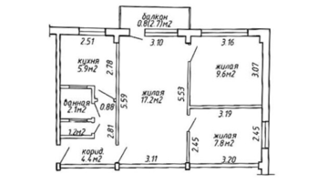
Цена квадратного метра — 1 450 долларов. Квартира стоит 69 900 долларов.
Квартира под ремонт. Одна из комнат тут проходная. В окнах стоят стеклопакеты, на полу лежат линолеум и деревянные доски.
Напротив дома — зоопарк, в шаговой доступности — «Чижовка-Арена», Чижовское водохранилище и парк имени 900-летия города.
Цена метра — 1 353 доллара. Трешка стоит 71 700 долларов.
Недалеко от дома находится остановка общественного транспорта. Быстро можно добраться до станция метро «Уручье» и ЖД станции «Колодищи».
За один квадратный метр придется отдать 1 287 долларов. Стоимость квартиры составляет 74 тысячи долларов.
Через дорогу находятся парк и Слепянская водная система. В трех остановках — станция метро «Восток».
Стоимость метра — 1 531 доллар. Трехкомнатная квартира обойдется в 77 тысяч долларов.
Кстати, почти все квартиры на Realt, можно купить в кредит или лизинг. Получить индивидуальную консультацию от специалистов можно вот здесь.
Это наша новая стабильность. Что происходит с продажей квартир в Минске и что нас ждет летом
60541
Застройщики переоценили спрос на студии. Что будет с ценами на новостройки этим летом
38201
Что за дом начинают строить в тихом местечке недалеко от Логойского тракта? Узнали подробности
14377
«Слышим даже как сосед за стенкой кашляет». Как живется в панельках на краю Каменной Горки
10613
Рост цен на квартиры на 70%, первый гипермаркет и рождение Realt. Каким был 2005 год в Беларуси
8961
«Очень шумно от детей во дворах». Как живется в Брилевичах возле метро «Малиновка»
6382
В центре Бреста достроили эксклюзивный ЖК: почем здесь предлагают готовые квартиры для жизни и инвестиций?
3004
«Ни доставку заказать, ни такси». Рассказываем, как решить вопрос с плохим интернетом в новостройках
7755
Такая хата вам не нужна. На что смотреть дилетанту при покупке дома под дачу в деревне
11038
Видео этих агентов по недвижимости набирают по 50 тысяч просмотров. Что они делают?
13004
«Переезжать сюда насовсем желания нет». Узнали, как живется в брежневках в Чижовке
74717
Кредит, использование семейного капитала, уплата налогов. В каких случаях нужно вызывать профессионального оценщика недвижимости?
4266
Что такое альтернативные сделки или как переехать в квартиру побольше, не доплатив ни копейки?
7236
Минчане построили дом из двойного утепленного бруса с "подземной" баней. Съездили посмотреть, что у них получилось
64027
Нашли самую маленькую однушку в Минске с ремонтом и мебелью. И что по цене?
63440
За два участка боролись по 74 и 72 человека - и это новый рекорд! Рассказываем об итогах земельного аукциона в Минском районе
29973
Многие здесь работают в «Газпроме». Побывали в тихом поселке под Минском, о котором мало кто знает
52401
Не хватает на жилье в Минске? Собрали недорогие квартиры в городах-спутниках, где сразу можно жить
31706
Есть и за 7 тысяч. Нашли крепкие хаты до 20 тысяч долларов возле озер и леса
92290
"Когда переехали - мама заплакала". Как жили раньше и как живут сейчас в Шабанах - криминальном районе Минска 90-х
80457- Бизнес центры
- Торговые центры
- Продажа гаражи, машиноместа
- Продажа офисы, нежилые помещения
- Продажа магазины, торговые помещения
- Продажа рестораны, бары, кафе
- Продажа склады, производства
- Продажа бизнес, сфера услуг
- Аренда офиса, помещений
- Аренда магазины, торговые помещения
- Аренда рестораны, бары, кафе
- Аренда склады, производства
- Аренда сфера услуг, игровой бизнес
- Аренда гаража, машиномест
















































































