Евродвушка в 50 квадратов. Показываем, как выглядит самая дешевая готовая квартира в ЖК «Олимпик парк»
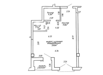
33986В премиальном «Олимпик парке», что построен около заказника Лебяжий, продается евродвушка с ремонтом. Это — самая дешевая готовая квартира в этом ЖК на данный момент. Посмотрите как она выглядит. Напоминаем, что ее можно купить в лизинг (бесплатная консультация вот тут).
Стоит самая недорогая квартира в ЖК около биологического заказника 126 тысяч долларов. Получается, квадратный метр в ней оценили в 2 571 доллар.
Кстати, это жилье, как и остальные квартиры на Realt, можно купить в лизинг. Получить индивидуальную консультацию от специалистов можно вот здесь.
                        Это наша новая стабильность. Что происходит с продажей квартир в Минске и что нас ждет летом
50402
                        Застройщики переоценили спрос на студии. Что будет с ценами на новостройки этим летом
31952
                        Просторные квартиры с видом на город и площади для бизнеса на первых этажах. Что сейчас предлагают в «Гулливере» — одном из самых ожидаемых ЖК Минска
13979
                        За лето помогли 400+ семьям. Как белорусы покупают квартиры через «Жилищный баланс»
13383
                        Что за дом начинают строить в тихом местечке недалеко от Логойского тракта? Узнали подробности
9380
                        «Рынок перешел от эмоций к рациональности». Что происходит с загородкой прямо сейчас
20199
                        Важнее не то, что на виду, а то, что в стенах. Дизайнер показала свою квартиру в Новой Боровой
7504
                        Прогрев с 40−45 градусов, травяные ароматы, качели с сеном. Как семья построила баню и превратила это в бизнес
11790
                        «В старых домах есть душа». Минчанка сделала стильный ремонт в сталинке за 15 тысяч долларов
1580
                        Как страховка сэкономит вам 70 тысяч долларов?
4964
                        Видео этих агентов по недвижимости набирают по 50 тысяч просмотров. Что они делают?
11007
                        «Переезжать сюда насовсем желания нет». Узнали, как живется в брежневках в Чижовке
72706
                        Кредит, использование семейного капитала, уплата налогов. В каких случаях нужно вызывать профессионального оценщика недвижимости?
3086
                        Что такое альтернативные сделки или как переехать в квартиру побольше, не доплатив ни копейки?
5475
                        Минчане построили дом из двойного утепленного бруса с "подземной" баней. Съездили посмотреть, что у них получилось
64027
                        Нашли самую маленькую однушку в Минске с ремонтом и мебелью. И что по цене?
63440
                        За два участка боролись по 74 и 72 человека - и это новый рекорд! Рассказываем об итогах земельного аукциона в Минском районе
29973
                        Многие здесь работают в «Газпроме». Побывали в тихом поселке под Минском, о котором мало кто знает
52401
                        Не хватает на жилье в Минске? Собрали недорогие квартиры в городах-спутниках, где сразу можно жить
31706
                        Есть и за 7 тысяч. Нашли крепкие хаты до 20 тысяч долларов возле озер и леса
92290- Бизнес центры
 - Торговые центры
 - Продажа гаражи, машиноместа
 - Продажа офисы, нежилые помещения
 - Продажа магазины, торговые помещения
 - Продажа рестораны, бары, кафе
 - Продажа склады, производства
 - Продажа бизнес, сфера услуг
 - Аренда офиса, помещений
 - Аренда магазины, торговые помещения
 - Аренда рестораны, бары, кафе
 - Аренда склады, производства
 - Аренда сфера услуг, игровой бизнес
 - Аренда гаража, машиномест
 






