До 80 тысяч долларов. Показываем, как выглядят самые дешевые трешки Минска
9596Собрали в подборку пять бюджетных трехкомнатных квартир. Все они находятся в старом жилом фонде, нуждаются в ремонте. Среди них есть варианты рядом с метро. Поблизости также много детских учреждений образования и парков. Все эти квартиры можно купить в лизинг — бесплатная консультация вот тут. Смотрим и выбираем.
Возле дома есть детский сад, школа. Напротив — парк и Чижовское водохранилище.
Квартира обойдется в 75 700 долларов. Метр стоит 1 499 долларов.
В шаговой доступности находятся детские учреждения образования. Рядом — магазины ТРЦ Prizma, а также станция метро «Партизанская».
Трешка стоит 76 900 долларов. Квадрат обойдется в 1 317 долларов.
Около дома располагается остановка. Напротив — парк и «Чижовка-Арена».
Стоит трешка 77 900 долларов, а один квадратный метр — 1 412 долларов.
Трешка в хорошем состоянии. Покупателю частично достанется и мебель. В квартире одна проходная комната с выходом на открытый балкон. Можно сказать, что он здесь изюминка. Он с уникальным рельефным ограждением. Площадь позволяет сделать тут террасу.
На полу лежит линолеум, в окнах стоят стеклопакеты.
Дом недалеко от Партизанского проспекта, между двумя станциями метро — «Автозаводская» и «Могилевская».
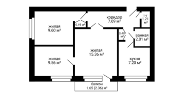
Трешку отдают за 80 тысяч долларов. Получается, квадратный метр стоит 1 538 долларов.
Около дома расположились гимназия, детский сад, ясли. Через дорогу находится Полоцкий парк с водоканалом.
Стоимость квартиры — 79 900 долларов. Квадратный метр обойдется в 1 380 долларов.
Все квартиры на Realt, можно купить в лизинг. Получить индивидуальную консультацию от специалистов можно вот здесь.
Это наша новая стабильность. Что происходит с продажей квартир в Минске и что нас ждет летом
76123
Застройщики переоценили спрос на студии. Что будет с ценами на новостройки этим летом
47461
10 самых интересных минских строек жилья в 2026 году. Панельные, монолитные, элитные и эконом
25176
Белорус сделал ремонт в 178-летней квартире. Посмотрите, как необычно получилось
32924
Первыми провели онлайн-сделку и за пару недель купили квартиру для нового участника. Как кооператив из Минска стал известен всей Беларуси
5540
Северный Берег, Лебяжий или Сухарево? Ищем идеальный ЖК для молодой пары
13740
Ищете офис недалеко от метро? Посмотрите, какой вариант класса В+ предлагают в районе Михалово
2322
Этот город построили женщины? Вспоминаем самых ярких жительниц Минска — и смотрим места, связанные с ними
1162
Видео этих агентов по недвижимости набирают по 50 тысяч просмотров. Что они делают?
14554
«Переезжать сюда насовсем желания нет». Узнали, как живется в брежневках в Чижовке
76714
Кредит, использование семейного капитала, уплата налогов. В каких случаях нужно вызывать профессионального оценщика недвижимости?
5126
Что такое альтернативные сделки или как переехать в квартиру побольше, не доплатив ни копейки?
8836
Минчане построили дом из двойного утепленного бруса с "подземной" баней. Съездили посмотреть, что у них получилось
64027
Нашли самую маленькую однушку в Минске с ремонтом и мебелью. И что по цене?
63440
За два участка боролись по 74 и 72 человека - и это новый рекорд! Рассказываем об итогах земельного аукциона в Минском районе
29973
Многие здесь работают в «Газпроме». Побывали в тихом поселке под Минском, о котором мало кто знает
52401
Не хватает на жилье в Минске? Собрали недорогие квартиры в городах-спутниках, где сразу можно жить
31706
Есть и за 7 тысяч. Нашли крепкие хаты до 20 тысяч долларов возле озер и леса
92290
"Когда переехали - мама заплакала". Как жили раньше и как живут сейчас в Шабанах - криминальном районе Минска 90-х
80457
До 50 тысяч долларов. Как выглядят и сколько стоят недорогие двушки в Минске, где сразу можно жить
84124- Бизнес центры
- Торговые центры
- Продажа гаражи, машиноместа
- Продажа офисы, нежилые помещения
- Продажа магазины, торговые помещения
- Продажа рестораны, бары, кафе
- Продажа склады, производства
- Продажа бизнес, сфера услуг
- Аренда офиса, помещений
- Аренда магазины, торговые помещения
- Аренда рестораны, бары, кафе
- Аренда склады, производства
- Аренда сфера услуг, игровой бизнес
- Аренда гаража, машиномест











































































































