Снесут офисы и автостоянку. Возле парка Дружбы Народов построят новое здание, жителей зовут на обсуждение
20454В Советском районе Минска скоро начнется общественное обсуждение строительства нового здания. Рядом с парком Дружбы Народов и рестораном «Друзья» хотят возвести диспетчерскую станцию. Связано это с необходимостью продления дороги в Северный Берег и переездом сюда действующей станции. Запланирован тут и точечный снос, который коснется автостоянки и коммерческих объектов. Рассказываем подробности.
Принять участие в общественном обсуждении проекта «Возведение здания специализированного транспорта в районе улиц Кульман, Кропоткина и Карастояновой в Минске» минчан приглашает Администрация Советского района. Заказчиком проекта выступает государственное предприятие «Гордорстрой».
Речь идет о небольшом участке рядом с парком Дружбы Народов — напротив бассейна «Орленок». По планам градостроителей в будущем, из-за продления улицы Карастояновой в Северный Берег, именно сюда должна переехать диспетчерская станция. Интересно, что конечная остановка автобусов и троллейбусов тут раньше уже была (она просуществовала вплоть до 2000-х), но потом ее перенесли на новое место.
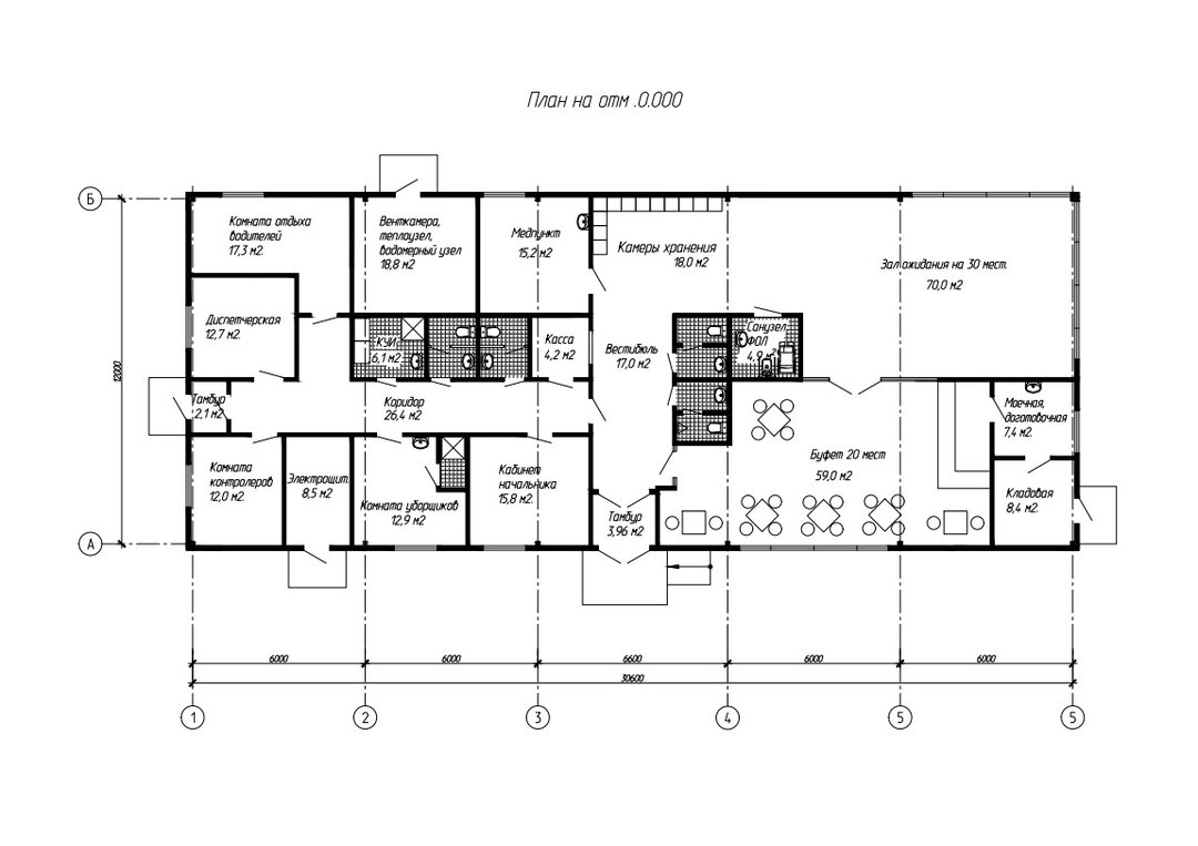
Новое здание автостанции будет прямоугольной формы. Внутри запроектированы зал ожидания, камера хранения, комната отдыха водителей, буфет, медпункт и другие помещения.
Общественное обсуждение проекта будет проходить с 17 ноября по 1 декабря. Внимательно рассмотреть планы можно на сайте администрации Советского района, а также в фойе этого учреждения в период проведения общественного обсуждения. Замечания и предложения с пометкой «общественное обсуждение» принимают по адресу: 220 013, Минск, ул. Дорошевича, 8, (либо на электронный адрес sov.stroi@minsk.gov.by) с 17 ноября по 1 декабря. Итоги общественного обсуждения подведут на заседании архитектурно-градостроительного Совета при главном архитекторе города Минска.
Читайте также:
Уберут склады и автоцентры, построят 800 квартир. Окраины Минска ждут перемены
Рядом с проспектом Независимости, на месте недостроенного ТЦ, будут жилые дома. Рассказываем
Уберут усадьбы и автостоянки, построят высотки и развязку. Чижовку ожидают перемены
Это наша новая стабильность. Что происходит с продажей квартир в Минске и что нас ждет летом
70886
Застройщики переоценили спрос на студии. Что будет с ценами на новостройки этим летом
44449
10 самых интересных минских строек жилья в 2026 году. Панельные, монолитные, элитные и эконом
20437
Ремонт за 21 месяц и 41 тысячу долларов. Посмотрите, как преобразилась хрущевка после перепланировки
11757
Новая Боровая или Зеленая гавань? Ищем квартиру для семьи, которая любит природу и комфорт
13802
В 2026 году «Жилищный баланс» планирует купить до 3000 квартир. Интервью с руководителем — о результатах и планах
13364
«Лучше по 300 рублей, но каждый месяц». Как правильно откладывать на свое жилье и копить на первый взнос?
15559
Минчанин показал, как устроен его стеклянный дом у леса: «Теплее, чем кажется»
119274
Смотрим классный дом возле Минска: с баней, у леса. Для отопления — тепло земли
28784
Сходили в один из последних несетевых универсамов Минска. «Мы в восторге от здешних булочек»
4139
Видео этих агентов по недвижимости набирают по 50 тысяч просмотров. Что они делают?
14161
«Переезжать сюда насовсем желания нет». Узнали, как живется в брежневках в Чижовке
76081
Кредит, использование семейного капитала, уплата налогов. В каких случаях нужно вызывать профессионального оценщика недвижимости?
4873
Что такое альтернативные сделки или как переехать в квартиру побольше, не доплатив ни копейки?
8399
Минчане построили дом из двойного утепленного бруса с "подземной" баней. Съездили посмотреть, что у них получилось
64027
Нашли самую маленькую однушку в Минске с ремонтом и мебелью. И что по цене?
63440
За два участка боролись по 74 и 72 человека - и это новый рекорд! Рассказываем об итогах земельного аукциона в Минском районе
29973
Многие здесь работают в «Газпроме». Побывали в тихом поселке под Минском, о котором мало кто знает
52401
Не хватает на жилье в Минске? Собрали недорогие квартиры в городах-спутниках, где сразу можно жить
31706
Есть и за 7 тысяч. Нашли крепкие хаты до 20 тысяч долларов возле озер и леса
92290- Бизнес центры
- Торговые центры
- Продажа гаражи, машиноместа
- Продажа офисы, нежилые помещения
- Продажа магазины, торговые помещения
- Продажа рестораны, бары, кафе
- Продажа склады, производства
- Продажа бизнес, сфера услуг
- Аренда офиса, помещений
- Аренда магазины, торговые помещения
- Аренда рестораны, бары, кафе
- Аренда склады, производства
- Аренда сфера услуг, игровой бизнес
- Аренда гаража, машиномест












