Заезжай и живи. Показываем современный дом с террасой в 14 км от Минска
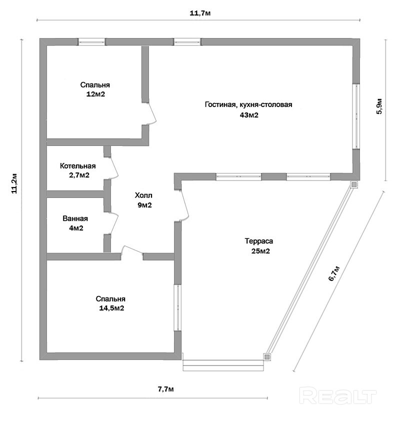
21955В СТ, что находится в Минском районе, продается одноэтажный современный дом для жизни. Место может заменить квартиру. Тут обустроены две спальни, есть просторная кухня-гостиная с мебелью и техникой, а также все необходимые коммуникации. Из дополнительных плюсов: большая терраса, беседка и ухоженный участок. Оцените сами.
Площадь разделена на просторную кухню-гостиную и две спальни. Везде расставлена необходимая мебель и техника. Кухня, например, оборудована холодильником, духовкой, варочной панелью и телевизором.
Отсюда можно выйти на террасу.
Сам участок имеет размер 7,9 сотки. Он огорожен и благоустроен: есть дорожки, высажены деревья, сделана стоянка для четырех автомобилей с электрифицированными воротами. Для отдыха построена беседка с зоной барбекю.
Минск находится в 14 км. Стоит дом 135 тысяч долларов.
Это наша новая стабильность. Что происходит с продажей квартир в Минске и что нас ждет летом
73018
Застройщики переоценили спрос на студии. Что будет с ценами на новостройки этим летом
45651
10 самых интересных минских строек жилья в 2026 году. Панельные, монолитные, элитные и эконом
22289
Ремонт за 21 месяц и 41 тысячу долларов. Посмотрите, как преобразилась хрущевка после перепланировки
12652
Новая Боровая или Зеленая гавань? Ищем квартиру для семьи, которая любит природу и комфорт
16378
В 2026 году «Жилищный баланс» планирует купить до 3000 квартир. Интервью с руководителем — о результатах и планах
15130
«Лучше по 300 рублей, но каждый месяц». Как правильно откладывать на свое жилье и копить на первый взнос?
16342
Минчанин показал, как устроен его стеклянный дом у леса: «Теплее, чем кажется»
120159
Смотрим классный дом возле Минска: с баней, у леса. Для отопления — тепло земли
32783
Сходили в один из последних несетевых универсамов Минска. «Мы в восторге от здешних булочек»
5726
Белорус сделал ремонт в 178-летней квартире. Посмотрите, как необычно получилось
23304
Видео этих агентов по недвижимости набирают по 50 тысяч просмотров. Что они делают?
14282
«Переезжать сюда насовсем желания нет». Узнали, как живется в брежневках в Чижовке
76253
Кредит, использование семейного капитала, уплата налогов. В каких случаях нужно вызывать профессионального оценщика недвижимости?
4955
Что такое альтернативные сделки или как переехать в квартиру побольше, не доплатив ни копейки?
8570
Минчане построили дом из двойного утепленного бруса с "подземной" баней. Съездили посмотреть, что у них получилось
64027
Нашли самую маленькую однушку в Минске с ремонтом и мебелью. И что по цене?
63440
За два участка боролись по 74 и 72 человека - и это новый рекорд! Рассказываем об итогах земельного аукциона в Минском районе
29973
Многие здесь работают в «Газпроме». Побывали в тихом поселке под Минском, о котором мало кто знает
52401
Не хватает на жилье в Минске? Собрали недорогие квартиры в городах-спутниках, где сразу можно жить
31706- Бизнес центры
- Торговые центры
- Продажа гаражи, машиноместа
- Продажа офисы, нежилые помещения
- Продажа магазины, торговые помещения
- Продажа рестораны, бары, кафе
- Продажа склады, производства
- Продажа бизнес, сфера услуг
- Аренда офиса, помещений
- Аренда магазины, торговые помещения
- Аренда рестораны, бары, кафе
- Аренда склады, производства
- Аренда сфера услуг, игровой бизнес
- Аренда гаража, машиномест




































