До 70 тысяч долларов — столько стоят самые бюджетные двушки Минска. Как они выглядят?
782Собрали двухкомнатные квартиры в Минске по самой бюджетной цене: сегодня это до 70 тысяч долларов. Есть варианты в трех районах города, в том числе и Центральном. Да, эти квартиры нуждаются в обновлении, но располагаются в локациях с развитой инфраструктурой. Показываем, как они выглядят.
Около дома находятся остановки и магазины. Напротив — парк Дружбы Народов. Около 10 минут требуется, чтобы добраться до центра города.
Обойдется жилье в 69 900 долларов. Цена метра — 2 255 долларов.
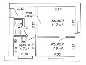
Продается квартира в пятиэтажном доме на Щербакова, 27. Он был построен в 1964-м, там уже провели капремонт. Двушка находится на первом этаже и занимает 44,1 м², на кухню выделено 5,7 метра.
Дом стоит около Антоновского парка. В 15 минутах ходьбы расположена станция метро «Тракторный завод».
Цена квартиры — 67 900 долларов. Один квадрат обойдется в 1 540 долларов.
Недалеко от дома расположены остановки и магазины. В пешей доступности находятся кинотеатр «Киев» и Комсомольское озеро.
Цена квартиры — 70 тысяч долларов. Стоимость метра — 1 695 долларов.
Дом стоит во дворах, в пешей доступности располагаются «Чижовка-Арена» и водохранилище.
Стоит жилье 67 тысяч долларов. Цена метра — 1 667 долларов.
Дом стоит на возвышенности. В шаговой доступности располагаются парковая зона и водный кана, недалеко и Ботанический сад. В нескольких остановках находится станция метро «Академия наук».
Цена квартиры — 70 тысяч долларов. Метр стоит 1 573 долларов.
Это наша новая стабильность. Что происходит с продажей квартир в Минске и что нас ждет летом
74470
Застройщики переоценили спрос на студии. Что будет с ценами на новостройки этим летом
46503
10 самых интересных минских строек жилья в 2026 году. Панельные, монолитные, элитные и эконом
23788
Сходили в один из последних несетевых универсамов Минска. «Мы в восторге от здешних булочек»
6291
Белорус сделал ремонт в 178-летней квартире. Посмотрите, как необычно получилось
31363
Первыми провели онлайн-сделку и за пару недель купили квартиру для нового участника. Как кооператив из Минска стал известен всей Беларуси
4624
«Это оптимизация или переворот? Решит рынок». Собственник известного минского агентства недвижимости предлагает новый формат работы
6325
Северный Берег, Лебяжий или Сухарево? Ищем идеальный ЖК для молодой пары
11090
Видео этих агентов по недвижимости набирают по 50 тысяч просмотров. Что они делают?
14418
«Переезжать сюда насовсем желания нет». Узнали, как живется в брежневках в Чижовке
76505
Кредит, использование семейного капитала, уплата налогов. В каких случаях нужно вызывать профессионального оценщика недвижимости?
5035
Что такое альтернативные сделки или как переехать в квартиру побольше, не доплатив ни копейки?
8707
Минчане построили дом из двойного утепленного бруса с "подземной" баней. Съездили посмотреть, что у них получилось
64027
Нашли самую маленькую однушку в Минске с ремонтом и мебелью. И что по цене?
63440
За два участка боролись по 74 и 72 человека - и это новый рекорд! Рассказываем об итогах земельного аукциона в Минском районе
29973
Многие здесь работают в «Газпроме». Побывали в тихом поселке под Минском, о котором мало кто знает
52401
Не хватает на жилье в Минске? Собрали недорогие квартиры в городах-спутниках, где сразу можно жить
31706
Есть и за 7 тысяч. Нашли крепкие хаты до 20 тысяч долларов возле озер и леса
92290
"Когда переехали - мама заплакала". Как жили раньше и как живут сейчас в Шабанах - криминальном районе Минска 90-х
80457
До 50 тысяч долларов. Как выглядят и сколько стоят недорогие двушки в Минске, где сразу можно жить
84124- Бизнес центры
- Торговые центры
- Продажа гаражи, машиноместа
- Продажа офисы, нежилые помещения
- Продажа магазины, торговые помещения
- Продажа рестораны, бары, кафе
- Продажа склады, производства
- Продажа бизнес, сфера услуг
- Аренда офиса, помещений
- Аренда магазины, торговые помещения
- Аренда рестораны, бары, кафе
- Аренда склады, производства
- Аренда сфера услуг, игровой бизнес
- Аренда гаража, машиномест




















































