Нашли бюджетные двушки в Минске рядом с метро. Показываем, как они выглядят и сколько стоят
678Нашли пять двухкомнатных квартир в Минске по бюджетной цене, которые находятся в пешей доступности от метро. Самое дорогое жилье выставляется за 75 тысяч долларов. Здесь представлены варианты из четырех районов города, есть квартиры с двумя изолированными комнатами, раздельным санузлом, балконом и без него. Оцените их сами.
Первая квартира в подборке находится на первом этаже четырехэтажного дома на Волоха, 21. Хрущевку построили в 1960 году. Площадь двушки — 44,8 м², на кухню отведено 5,8 м².
Кстати, эту квартиру, как и остальные квартиры на Realt, можно купить в лизинг. Получить индивидуальную консультацию от специалистов можно вот здесь.
За 15 минут можно добраться до станций метро трех веток: «Площадь Богушевича», «Молодежная», «Грушевка».
Стоит квартира 71 500 долларов. 1 596 долларов — цена одного метра.
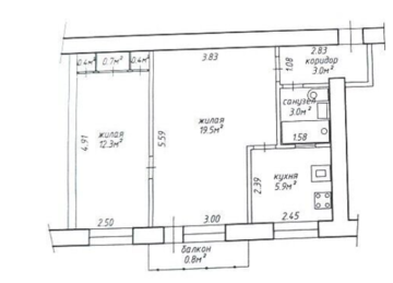
Дом на Щербакова, 27 был построен в 1964 году. Двушка продается на первом этаже и занимает 44,1 м². Площадь кухни — 5,7 метра. В здании прошел капремонт.
Близко к дому расположились Антоновский парк и станция метро «Тракторный завод».
Цена квартиры — 67 900 долларов. Один квадрат обойдется в 1 540 долларов.
Магазины, остановки транспорта и детские учреждения образования находятся в шаговой доступности. До станции метро «Могилевская» — 10 минут ходьбы.
Обойдется квартира в 72 900 долларов. Цена одного квадратного метра составляет 1 664 доллара.
Дом стоит во дворах, рядом — остановки, Национальный футбольный стадион, а в 10 минутах ходьбы располагается станция метро «Тракторный завод».
Стоит квартира 75 тысяч долларов. А цена метра — 1 630 долларов.
В районе много детских учреждений образования. Рядом — два магазина и остановка. В 10 минутах ходьбы располагается станция метро «Московская».
Двушка стоит 72 500 долларов. Цена метра — 1 611 долларов.
Читайте также:
Ищем двушку в Минске для семьи. Уложимся в 100 тысяч долларов?
Это наша новая стабильность. Что происходит с продажей квартир в Минске и что нас ждет летом
77616
Застройщики переоценили спрос на студии. Что будет с ценами на новостройки этим летом
48322
10 самых интересных минских строек жилья в 2026 году. Панельные, монолитные, элитные и эконом
26468
Ищете офис недалеко от метро? Посмотрите, какой вариант класса В+ предлагают в районе Михалово
2929
Этот город построили женщины? Вспоминаем самых ярких жительниц Минска — и смотрим места, связанные с ними
5235
В Островце начали продавать квартиры по цене 2700 рублей за м². Кто и зачем их строит?
11143
Минск или пригород? Что выбрать, если бюджет ограничен: реальные истории
3837
Ищем двушку в Минске для семьи. Уложимся в 100 тысяч долларов?
3501
Видео этих агентов по недвижимости набирают по 50 тысяч просмотров. Что они делают?
14697
«Переезжать сюда насовсем желания нет». Узнали, как живется в брежневках в Чижовке
76895
Кредит, использование семейного капитала, уплата налогов. В каких случаях нужно вызывать профессионального оценщика недвижимости?
5221
Что такое альтернативные сделки или как переехать в квартиру побольше, не доплатив ни копейки?
9002
Минчане построили дом из двойного утепленного бруса с "подземной" баней. Съездили посмотреть, что у них получилось
64027
Нашли самую маленькую однушку в Минске с ремонтом и мебелью. И что по цене?
63440
За два участка боролись по 74 и 72 человека - и это новый рекорд! Рассказываем об итогах земельного аукциона в Минском районе
29973
Многие здесь работают в «Газпроме». Побывали в тихом поселке под Минском, о котором мало кто знает
52401
Не хватает на жилье в Минске? Собрали недорогие квартиры в городах-спутниках, где сразу можно жить
31706
Есть и за 7 тысяч. Нашли крепкие хаты до 20 тысяч долларов возле озер и леса
92290
"Когда переехали - мама заплакала". Как жили раньше и как живут сейчас в Шабанах - криминальном районе Минска 90-х
80457
До 50 тысяч долларов. Как выглядят и сколько стоят недорогие двушки в Минске, где сразу можно жить
84124- Бизнес центры
- Торговые центры
- Продажа гаражи, машиноместа
- Продажа офисы, нежилые помещения
- Продажа магазины, торговые помещения
- Продажа рестораны, бары, кафе
- Продажа склады, производства
- Продажа бизнес, сфера услуг
- Аренда офиса, помещений
- Аренда магазины, торговые помещения
- Аренда рестораны, бары, кафе
- Аренда склады, производства
- Аренда сфера услуг, игровой бизнес
- Аренда гаража, машиномест














































