Почти частный дом. Как выглядят и сколько стоят двухуровневые квартиры в Минске
17236Собственный дом — недешевое удовольствие. Что если хочется просторное жилье, но со всей инфраструктурой в шаге от дома? Тогда наша подборка столичных двухуровневых квартир для вас. Мы нашли несколько интересных вариантов от $ 79 тысяч в различных районах Минска как с готовым ремонтом, так и без отделки. Есть еще с мебелью и техникой.
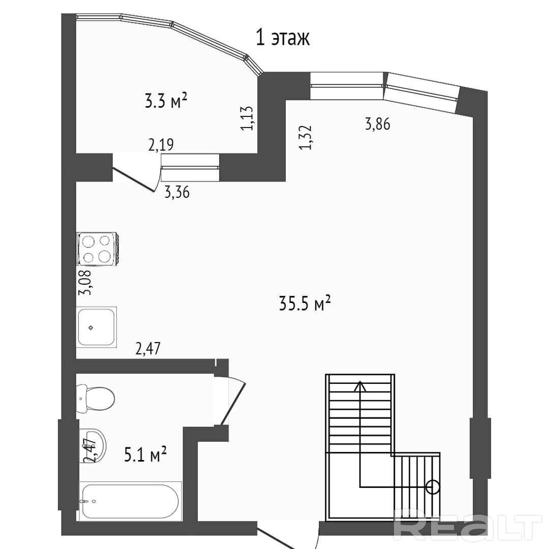
На ул. Харьковская (р-н м. Молодежная)
Трехкомнатная квартира выставлена на продажу в доме на улице Харьковская, 58. Площадь квартиры составляет 97 «квадратов», в том числе жилая — 45, кухня — 12. Девятиэтажный кирпичный дом построен в 2005 году.
На первом этаже кухня, гостиная, санузел. На втором этаже две спальные комнаты и большой санузел с двухместным джакузи. Отделка в квартире: натуральный дубовый паркет, декоративная штукатурка, немецкие обои, испанская плитка. Установлены металлическая входная дверь, стеклопакеты. Высокие потолки — 2,7 метра. Две застекленные лоджии на каждом этаже.
— Ремонт выполнен из материалов премиум-класса. Использовались только самые качественные варианты, так как ремонт делался «для себя» — без экономии на материалах, мебели и технике, — пишет автор объявления. — Таких квартир очень мало: при разумном метраже — грамотная и удобная планировка.
В пешей доступности — сквер с прудом, школа, детский сад, взрослая и детская поликлиники, банк, почта. До станции метро «Молодежная» 15 минут пешком или на общественном транспорте (остановка возле дома).
Цена: $ 140 000.
На ул. Васнецова (р-н м. Партизанская)
В доме на улице Васнецова, 34/3 продается трехкомнатная квартира площадью 110,5 квадратных метров (жилая — 54, кухня — 15). Дом восьмиэтажный, построен в 2002 году.
Придомовая территория охраняется и оборудована системой видеонаблюдения. Автомобильное парковочное место закреплено за квартирой.
В квартире две изолированные спальни. На каждом этаже санузел. Высокие потолки — 3,4 метра. Выполнена качественная отделка. Напольное покрытие — дубовый паркет, кафельная плитка с системой «теплый пол», ковровое покрытие на лестнице.
Межкомнатные двери и порталы, лестница и балясины сделаны из дуба, входная дверь — металлическая. На стенах виниловые обои. Установлены стеклопакеты. Есть две застекленные и обшитые сайдингом лоджии со встроенными шкафами.
На кухне мебель из массива дуба, встроенная техника — посудомоечная машина, варочная поверхность, духовой шкаф, вытяжка, холодильник. В гостиной комнате встроенный шкаф и электрокамин.
Квартира оснащена системой индивидуального отопления — бойлер. Установлены приборы учета воды, газа. Имеется подвал.
Дом расположен рядом с зеленой и водоохраной зоной. В двух остановках на общественном транспорте станция метро «Партизанская». Развитая инфраструктура — рядом детский сад, школа, взрослая и детская больницы, магазин.
Цена: $ 159 000.
На ул. Аэродромная (Минск-Мир)
Этот вариант для тех, кто мечтает сам реализовать интерьерные идеи — двухуровневая квартира со свободной планировкой продается в доме на улице Аэродромная, 32. Общая площадь — 64 квадратных метра. Каркасно-блочный дом построен в 2017 году. Квартира расположена на самом верхнем 17 этаже.
— Квартира легко трансформируется в просторную студию или двухкомнатную. Вы приобретаете абсолютную свободу для дизайнерских и планировочных решений, — говорится в объявлении.
Квартира продается без отделки. Здесь все готово для чистового ремонта. Установлены стеклопакеты, счетчики воды, электроэнергии и тепла. Есть застекленная лоджия. Санузел совмещенный.
В доме видеонаблюдение, придомовая территория охраняется. В подземном и наземном паркинге всегда есть место для авто.
В шаговой доступности станция метро «Ковальская слобода», магазин, поликлиника, детский сад.
Цена: $ 79 625.
На ул. Кнорина (р-н Парк Челюскинцев)
В доме на улице Кнорина, 15 продается четырехкомнатная квартира общей площадью 111 «квадратов» (жилая — 60, кухня — 9). Дом пятиэтажный, построен в 1961 году. Капитальный ремонт проведен в 2008 году.
Квартира полностью готова к проживанию, с авторским ремонтом, продуманной планировкой с разделенными зонами для отдыха, спальными комнатами, зоной для приема гостей и комфортной работы. Есть два санузла, застекленная лоджия. Одно из преимуществ жилья — потолки 3,7 метра.
Установлены металлическая дверь, стеклопакеты, счетчики воды, встроенные шкафы и бытовая техника. Двери и мебель из массива. Проведен высокоскоростной интернет.
Район с развитой инфраструктурой — множество детских садов, школ, поликлиника, магазины, сквер, парк. Развито транспортное сообщение. До станции метро «Парк Челюскинцев» пешком 15 минут, до станции «Московская» — две остановки на общественном транспорте.
Цена: $ 159 000.
На пр-те Рокоссовского (Серебрянка)
Двухуровневая пятикомнатная квартира площадью 160 квадратных метров (жилая — 80, кухня — 12) продается в десятиэтажном доме на проспекте Рокоссовского, 29. Панельный дом построен в 2002 году.
В квартире выполнен отличный ремонт с использованием высококачественных материалов отделки. Установлены стеклопакеты, счетчики воды, металлическая входная дверь, сигнализация.
Очень теплая, светлая квартира, полностью укомплектована мебелью и бытовой техникой. Есть два санузла и две застекленные лоджии.
Придомовая территория с детскими площадками и парковочными местами. Рядом велодорожки, детские сады, школы и гимназии, магазины, почта, банки, поликлиника, торговые центры, парки. Развито транспортное сообщение — без пересадок можно добраться до метро и центра города.
Цена: $ 175 000 с торгом.
Это наша новая стабильность. Что происходит с продажей квартир в Минске и что нас ждет летом
70953
Застройщики переоценили спрос на студии. Что будет с ценами на новостройки этим летом
44502
10 самых интересных минских строек жилья в 2026 году. Панельные, монолитные, элитные и эконом
20532
Ремонт за 21 месяц и 41 тысячу долларов. Посмотрите, как преобразилась хрущевка после перепланировки
11796
Новая Боровая или Зеленая гавань? Ищем квартиру для семьи, которая любит природу и комфорт
13916
В 2026 году «Жилищный баланс» планирует купить до 3000 квартир. Интервью с руководителем — о результатах и планах
13467
«Лучше по 300 рублей, но каждый месяц». Как правильно откладывать на свое жилье и копить на первый взнос?
15607
Минчанин показал, как устроен его стеклянный дом у леса: «Теплее, чем кажется»
119325
Смотрим классный дом возле Минска: с баней, у леса. Для отопления — тепло земли
29609
Сходили в один из последних несетевых универсамов Минска. «Мы в восторге от здешних булочек»
4300
Видео этих агентов по недвижимости набирают по 50 тысяч просмотров. Что они делают?
14166
«Переезжать сюда насовсем желания нет». Узнали, как живется в брежневках в Чижовке
76081
Кредит, использование семейного капитала, уплата налогов. В каких случаях нужно вызывать профессионального оценщика недвижимости?
4882
Что такое альтернативные сделки или как переехать в квартиру побольше, не доплатив ни копейки?
8404
Минчане построили дом из двойного утепленного бруса с "подземной" баней. Съездили посмотреть, что у них получилось
64027
Нашли самую маленькую однушку в Минске с ремонтом и мебелью. И что по цене?
63440
За два участка боролись по 74 и 72 человека - и это новый рекорд! Рассказываем об итогах земельного аукциона в Минском районе
29973
Многие здесь работают в «Газпроме». Побывали в тихом поселке под Минском, о котором мало кто знает
52401
Не хватает на жилье в Минске? Собрали недорогие квартиры в городах-спутниках, где сразу можно жить
31706
Есть и за 7 тысяч. Нашли крепкие хаты до 20 тысяч долларов возле озер и леса
92290- Бизнес центры
- Торговые центры
- Продажа гаражи, машиноместа
- Продажа офисы, нежилые помещения
- Продажа магазины, торговые помещения
- Продажа рестораны, бары, кафе
- Продажа склады, производства
- Продажа бизнес, сфера услуг
- Аренда офиса, помещений
- Аренда магазины, торговые помещения
- Аренда рестораны, бары, кафе
- Аренда склады, производства
- Аренда сфера услуг, игровой бизнес
- Аренда гаража, машиномест









































































































































