Дом как с картинки. Смотрите, какую недорогую дачу в скандинавском стиле продают под Минском
24935Этот компактный дачный домик понравится многим за скандинавский стиль, современный интерьер и уровень комфорта «как в квартире». Он абсолютно новый, с отличной отделкой и разводкой всех коммуникаций — расставляй мебель и живи. При этом стоит он дешевле 30 тысяч долларов. Архитектор Дмитрий Азаров рассказал об его устройстве и технологии строительства.
Владелец этого дома изначально подыскивал место тихое и уединенное, на разумном расстоянии от Минска. Подходящий участок нашелся в СТ «Михалковичи», рядом с одноименной деревней в Логойском районе. Товарищество довольно молодое и перспективное — есть электричество и всесезонный центральный водопровод, наделы по 10 соток, вокруг лес.
Архитектор Дмитрий Азаров из компании «Дамдом» говорит, что такие запросы требовали определенных решений. В первую очередь, дом должен быть не только с отоплением, но и держать тепло.
— Это, конечно, не самый энергэффективный дом из тех, что мы строим для постоянной жизни за городом, но он определенно и не холодный, — объясняет он. — Строили его по каркасной технологии, с утепленными стенами и перекрытиями, по скандинавской технологии.
Теперь подробнее о строительстве. Дом стоит на железобетонном свайно-ростверковом фундаменте, перекрытие пола — деревянная плита с 200 мм утеплителя внутри. Стены и перекрытия собирались в сухом цеху, на площадку они приехали в виде панелей, которые собрали за день. Через неделю от начала монтажа коробка дома была собрана и накрыта крышей.
Каркас деревянный, внутри стен 150 мм минваты. Изнутри все заклеено пароизоляцией. Снаружи утеплитель закрывает слоем ветрозащиты — плитами МДВП толщиной 20 мм. Этот слой можно считать также дополнительной теплоизоляцией. У дома деревянный вентфасад из сухой тонкопиленной доски хвойных пород, покрашенной в два слоя качественным ЛКМ. В перекрытии пола 200 мм утеплителя, на потолке лежит 300 мм минваты.
На крыше каркасного дома лежит черепица. Это продукция белорусского завода «Забудова». Выглядит такая кровля очень круто, она долговечна и при этом стоит сравнительно недорого.
— Для своих объектов мы часто ее используем, — говорит Дмитрий. — Если взять цены на металлические кровли и цену на эту цементно-песчаную черепицу, то увидим разницу в два раза. При этом для таких крыш нужно меньше дерева для обрешетки, она просто монтируется, не нужно большого количества крепежного материала, почти нет отходов.
Для настила террасы использовалась доска, обработанная антисептиком автоклавным способом (под давлением).
Для тех, кто опасается мышей и насекомых в каркасе — по периметру низа стен снаружи установлены специальные металлические сетки. Есть защита от проникновения и в конструкции свесов кровли. Так что за грызунов не стоит переживать, в стены никто не проникнет.
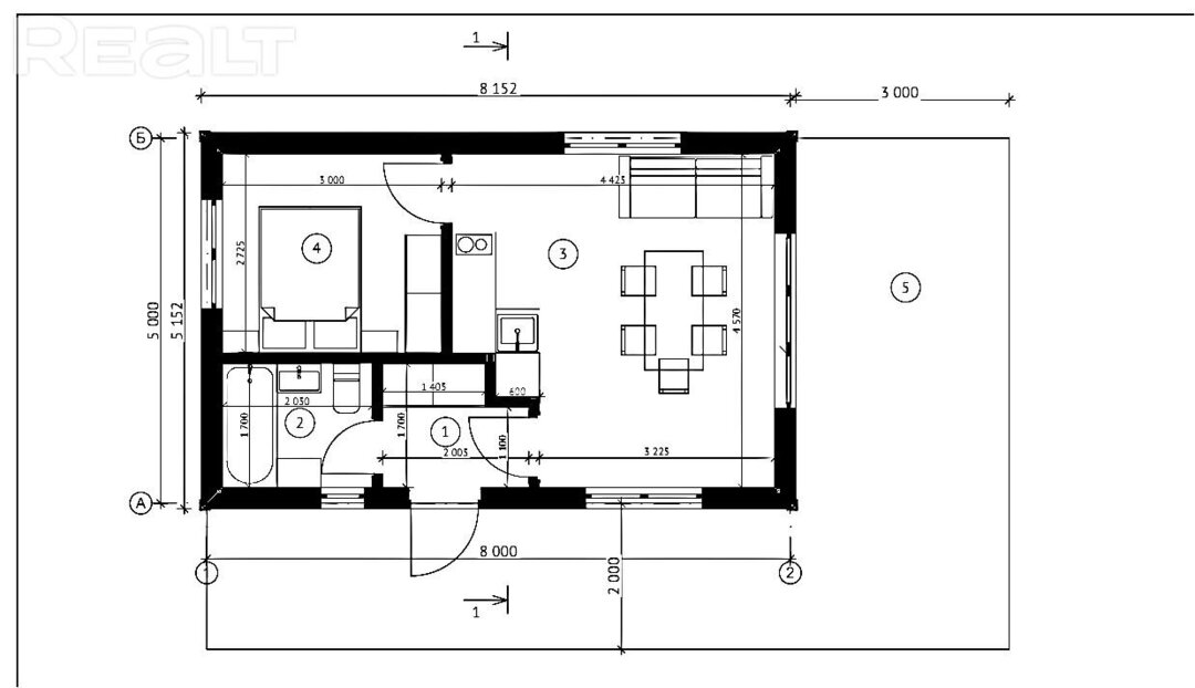
Планировка внутри довольно простая. 35 «квадратов» общей площади поделили на прихожую, гостиную-кухню, спальню и санузел. Из гостиной организован выход на большую открытую террасу.
Фанеру выбирали самую лучшую из той, что была на рынке прошлым летом, толщиной 12 мм. Благодаря такой отделке сейчас нет проблем с монтажом светильников, кухонной мебели.
Архитектор говорит, что использование фанеры и дерева не было попыткой сэкономить — примерная стоимость такой отделки (материал, покраска, монтаж) — около 30 долларов за квадрат. Гипсокартон в два слоя с чистовой отделкой обошелся бы дешевле. Потолки сделали натяжными из соображений практичности, стоимости и потраченного времени. На полах — ламинат.
Так как водопровод в СТ центральный и всесезонный, то не пришлось тратиться на бурение скважины, а это неплохая экономия. Отопление решили сделать без электрокотла — для такой небольшой площади достаточно трех небольших электроконвекторов, запитанных от розеток. Так дешевле — экономия на котле, обвязке, трубах, радиаторах и монтаже.
Сейчас, когда дом пустует, обогреватели запрограммированы на четверть мощности, в комнатах поддерживается температура 14 градусов. Горячая вода готовится в электробойлере. Он будет спрятан в шкафу в нише в прихожей. Там же станет и стиральная машина — сюда выведен кран водопровода и труба канализации.
Канализация местная автономная, представляет собой два переливных колодца из бетонных колец. Их объем еще постараться нужно, чтобы заполнить.
На участке вокруг дома еще предстоит выполнить благоустройтво, но этим будет заниматься покупатель этой дачи — обстоятельства изменились и владелец решил ее продать. За этот дом просят 28 тысяч долларов. И это очень хорошая цена.
Это наша новая стабильность. Что происходит с продажей квартир в Минске и что нас ждет летом
92833
Застройщики переоценили спрос на студии. Что будет с ценами на новостройки этим летом
56629
10 самых интересных минских строек жилья в 2026 году. Панельные, монолитные, элитные и эконом
43907
«Фиксируем завышенные цены». Что происходит с квартирами в Минске прямо сейчас
12313
«Заселились 40 лет назад, уезжать не хотим». Как живется в панельках возле парка Павлова в Малиновке
21385
Телефон в рассрочку будет выгоднее, чем при оплате сразу? Смотрим обновленный салон Life в центре Минска
5416
Ремонт за 80 и 120 тысяч долларов. Смотрим две дизайнерские квартиры, где каждый метр продуман до мелочей
3574
У вас еще нет своего жилья? Считаем, сколько вы будете тратить на аренду и сколько — на платежи за собственную квартиру
4028
Видео этих агентов по недвижимости набирают по 50 тысяч просмотров. Что они делают?
15309
«Переезжать сюда насовсем желания нет». Узнали, как живется в брежневках в Чижовке
77681
Кредит, использование семейного капитала, уплата налогов. В каких случаях нужно вызывать профессионального оценщика недвижимости?
5891
Что такое альтернативные сделки или как переехать в квартиру побольше, не доплатив ни копейки?
9920
Минчане построили дом из двойного утепленного бруса с "подземной" баней. Съездили посмотреть, что у них получилось
64027
Нашли самую маленькую однушку в Минске с ремонтом и мебелью. И что по цене?
63440
За два участка боролись по 74 и 72 человека - и это новый рекорд! Рассказываем об итогах земельного аукциона в Минском районе
29973
Многие здесь работают в «Газпроме». Побывали в тихом поселке под Минском, о котором мало кто знает
52401
Не хватает на жилье в Минске? Собрали недорогие квартиры в городах-спутниках, где сразу можно жить
31706
Есть и за 7 тысяч. Нашли крепкие хаты до 20 тысяч долларов возле озер и леса
92290
"Когда переехали - мама заплакала". Как жили раньше и как живут сейчас в Шабанах - криминальном районе Минска 90-х
80457
До 50 тысяч долларов. Как выглядят и сколько стоят недорогие двушки в Минске, где сразу можно жить
84124- Бизнес центры
- Торговые центры
- Продажа гаражи, машиноместа
- Продажа офисы, нежилые помещения
- Продажа магазины, торговые помещения
- Продажа рестораны, бары, кафе
- Продажа склады, производства
- Продажа бизнес, сфера услуг
- Аренда офиса, помещений
- Аренда магазины, торговые помещения
- Аренда рестораны, бары, кафе
- Аренда склады, производства
- Аренда сфера услуг, игровой бизнес
- Аренда гаража, машиномест















