Бюджетные минские двушки в домах не старше 2000-го года. Сколько стоят и как выглядят?
26697Собрали в подборку бюджетные двухкомнатные квартиры в Минске с изолированными комнатами. Где-то сделан свежий ремонт, какие-то двушки нуждаются в обновлении. Все они располагаются в домах, что были построены в 2000 и позже. Посмотрите, как выглядят эти квартиры и сколько стоят.
У дома располагается автобусная остановка. До станции метро «Кунцевщина» или «Спортивная» около 10-15 минут на общественном транспорте.
Стоимость двушки — 78 500 долларов. Метр — 1 335 долларов.
В квартире две раздельные комнаты. На полу лежат линолеум и плитка, в окнах стоят стеклопакеты. Двушка продается с техникой и мебелью.
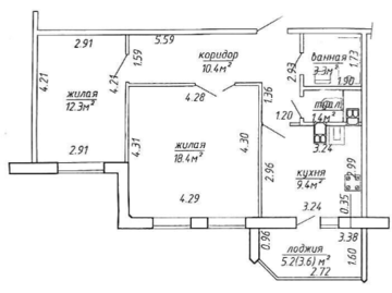
Дом стоит у входа на станцию метро «Ковальская Слобода».
Цена двушки — 78 тысяч долларов. Квадратный метр стоит 1 523 доллара.
В квартире также отдельные жилые комнаты, на полу лежит линолеум.
Дом находится в одном из самых зеленых микрорайонов Минска — в Великом лесу. До станции метро "Уручье" около 20 минут пешком.
Квартира стоит 79 990 долларов. Метр обойдется в 1 356 долларов.
Квартира практически пустая. В окнах здесь установлены стеклопакеты, на полу лежат плитка и ламинат. В прихожей и спальне имеются встроенные шкафы.
Дом располагается рядом с зеленой зоной. До станции метро «Спортивная» около 15 минут пешком.
Стоимость квартиры — 89 тысяч долларов. Метр — 1 471 доллар.
Последняя квартира в подборке располагается в девятиэтажке 2003 года постройки на Мазурова, 20. Двушка находится на 3 этаже и занимает 54,4 м². На кухню выделено 10 квадратных метров.
Тут сделан стильный ремонт. Квартира укомплектована мебелью и техникой. В одной жилой комнате разместилась спальня с гардеробной, во второй — кабинет-гостиная. Стены здесь покрашены, на полу лежит кварц-винил. Удалось выделить и отдельную постирочную.
С окон квартиры открывается вид на парк Дививелка, что располагается через дорогу. В нескольких остановках находится и станция метро «Каменная Горка».
Цена двушки — 85 тысяч долларов. Метр стоит 1 563 доллара.
Читайте также:
С лесом и грибами на участке. На Нарочи продается новый дом из бруса дешевле 100 тысяч долларов
Не в СТ, рядом с озером, дешевле однушки. Недалеко от Минска продается дом с коммуникациями
«Переехали сюда из общаги». Супруги купили старый загородный дом и сделали в нем шикарный ремонт
Это наша новая стабильность. Что происходит с продажей квартир в Минске и что нас ждет летом
68062
Застройщики переоценили спрос на студии. Что будет с ценами на новостройки этим летом
42830
10 самых интересных минских строек жилья в 2026 году. Панельные, монолитные, элитные и эконом
17482
Ремонт за 21 месяц и 41 тысячу долларов. Посмотрите, как преобразилась хрущевка после перепланировки
10271
Новая Боровая или Зеленая гавань? Ищем квартиру для семьи, которая любит природу и комфорт
8328
В 2026 году «Жилищный баланс» планирует купить до 3000 квартир. Интервью с руководителем — о результатах и планах
9410
«Лучше по 300 рублей, но каждый месяц». Как правильно откладывать на свое жилье и копить на первый взнос?
8997
Минчанин показал, как устроен его стеклянный дом у леса: «Теплее, чем кажется»
103954
Видео этих агентов по недвижимости набирают по 50 тысяч просмотров. Что они делают?
13958
«Переезжать сюда насовсем желания нет». Узнали, как живется в брежневках в Чижовке
75752
Кредит, использование семейного капитала, уплата налогов. В каких случаях нужно вызывать профессионального оценщика недвижимости?
4756
Что такое альтернативные сделки или как переехать в квартиру побольше, не доплатив ни копейки?
8118
Минчане построили дом из двойного утепленного бруса с "подземной" баней. Съездили посмотреть, что у них получилось
64027
Нашли самую маленькую однушку в Минске с ремонтом и мебелью. И что по цене?
63440
За два участка боролись по 74 и 72 человека - и это новый рекорд! Рассказываем об итогах земельного аукциона в Минском районе
29973
Многие здесь работают в «Газпроме». Побывали в тихом поселке под Минском, о котором мало кто знает
52401
Не хватает на жилье в Минске? Собрали недорогие квартиры в городах-спутниках, где сразу можно жить
31706
Есть и за 7 тысяч. Нашли крепкие хаты до 20 тысяч долларов возле озер и леса
92290
"Когда переехали - мама заплакала". Как жили раньше и как живут сейчас в Шабанах - криминальном районе Минска 90-х
80457
До 50 тысяч долларов. Как выглядят и сколько стоят недорогие двушки в Минске, где сразу можно жить
84124- Бизнес центры
- Торговые центры
- Продажа гаражи, машиноместа
- Продажа офисы, нежилые помещения
- Продажа магазины, торговые помещения
- Продажа рестораны, бары, кафе
- Продажа склады, производства
- Продажа бизнес, сфера услуг
- Аренда офиса, помещений
- Аренда магазины, торговые помещения
- Аренда рестораны, бары, кафе
- Аренда склады, производства
- Аренда сфера услуг, игровой бизнес
- Аренда гаража, машиномест



































































































