«Здесь витает дух уютной провинции». Как живется в панельном айти-городке рядом с ПВТ
11423Жилой комплекс «Клевер парк», который находится на территории Парка высоких технологий и рядом с Музеем валунов, изначально заявлялся как городок айти-специалистов. Он должен был объединять несколько жилых домов, торговый центр и два офисных здания. Спустя годы на территории ЖК начали появляться и другие объекты инфраструктуры. Realt пообщался с местными жителями и узнал у них, как сильно изменился комплекс и что нового здесь можно увидеть сегодня.
Айти-городок, расположенный в одном из самых экологически чистых и зеленых районов Минска, строился инвестиционной компанией «Свитланд Девелопмент Лимитед». Его дома сегодня окружены лесом и красивыми парками. А во дворе совсем недавно появился «Уютный уголок». Участок с живописным прудом, зелеными зонами и местами для отдыха. Истинный рай для любителей уединения и спокойствия.
В панельках построены одно-, двух- и трехкомнатные квартиры метражом 45, 68 и 85 квадратов соответственно. Квадратные комнаты, просторная кухня, выделенная прихожая и раздельный санузел — все, что свойственно стандартным панелькам. Однако для этих домов также характерны улучшенная входная группа, наличие колясочных, видеонаблюдения, стойки консьержа.
«Когда дети подрастают, приходится искать среднюю школу где-то в близлежащих районах»
Анна и ее семья переехали в панельку комплекса в 2015 году. В 2014-м дом сдали в эксплуатацию. Сразу же после ремонта молодые люди заселились в квартиру.
— Панельки у нас классические, из этого уже понятно, мы нормально слышим то, что происходит в квартирах рядом. Вот даже вчера соседи ходили, что-то хлопали шкафчиками. У нас в комнате это прям хорошо было слышно. Если у кого-то будет громко работать телевизор, тоже создается впечатление, что как будто это у нас происходит, — замечает девушка.
Она рассказала, что изначально в домах не были предусмотрены какие-то дополнительные, нестандартные условия для жильцов, однако своими силами во дворе они установили велопарковки.
— Это было словесно согласовано с администрацией района, потому что по сути территория принадлежит не ЖСПК, а городу. Но при этом парковки примыкают прямо к дому. Нам тогда сказали, что если вдруг что-то произойдет и потребуют их снести, то придется избавиться. Мы коллективным решением пошли на такие условия. Это было практически сразу же после нашего заселения, и вот за столько лет ничего не изменилось, все спокойно, — вспоминает местная жительница.
— Чего действительно не хватает по инфраструктуре, это обычной школы. Рядом с нами работает детский сад-начальная школа, все в одном здании, но как бы в разных корпусах. Когда ребенок маленький, это очень удобно. Интересно, что это учреждение не только для местных, а подать сюда документы может любой житель города. Вот у меня знакомой сын раньше был тут в саду, а в этом году ребенка отдали в школу здесь. Но они столкнулись с тем, что нужно было звонить в определенные день и часы, чтобы стать на очередь и попасть к директору или завучу на встречу. Когда же дети подрастают, приходится искать среднюю школу где-то в близлежащих районах. Но, кстати, лично у нас с этим проблем не возникло, — делится девушка.
Также, по словам Анны, в окрестностях нет поликлиники, а все местные жители обслуживаются в Уручье. И то медучреждение пока закрылось на ремонт, и приходится ездить еще дальше.
— Что касается магазинов и аптек, то недалеко от дома есть небольшой торговый центр. Вот там — все необходимое. А еще, судя по разговорам в чате жильцов, зачастую все просто едут на машинах по городу и заезжают в какие-то крупные ТЦ, закупаются там и уже возвращаются домой. Вообще район очень спокойный и немного, в хорошем смысле этого слова, провинциальный. Ощущение, что находишься за городом, в тихом, укромном уголочке. Дети гуляют во дворе, летом по парковке катаются на великах, на поляне запускают воздушных змеев, рисуют на асфальте, в пруде ловят рыбу самодельными палками. За окнами квартир витает дух такой уютной провинции, что мне очень близко, — отмечает девушка.
«В какой-то момент все отменилось, и у нас тут появилась многоэтажка»
В соседний от Анны дом девять лет назад заселился Никита. Выбирая квартиру к покупке, ориентировался на то, чтобы она была ближе к работе. Плюс молодой человек хотел жить в спокойном месте без большого скопления людей и тесной застройки.
— За все время в месте совсем не разочаровался. Напрягало только то, что внезапно решили возводить дом на Купревича. Насколько знаю, его здесь вообще не планировали. По генплану хотели через дорогу делать малоэтажную застройку, но в какой-то момент всё отменилось, и у нас тут появилась многоэтажка. Местные, конечно, не были этому рады. Много шума и грязи от стройки. Тем более, с этим домом было столько мороки — его долго не могли ввести в эксплуатацию, потому что в какой-то момент он начал наклоняться. Как оказалось, все из-за того, что место не совсем подходящее. Тут из-за пруда почва затапливалась, это и привело к тому, что случилось. А потом этот пруд вообще превратился в какую-то свалку стройматериалов. Однако сейчас уже там живут люди, видел и квартиры продаются, — рассказал молодой человек.
Как он отмечает, примерно в 2016—2017 годах совместными усилиями энтузиастов пруд был облагорожен. Местные собирались, раз в год чистили его, поставили лавочки. Так, он стал выглядеть более-менее хорошо. А в этом году, буквально месяц назад, администрация Первомайского района открыла здесь «Уютный уголок» с облагороженной территорией, местами для отдыха, площадкой для собак.
— Нас это, конечно, порадовало, потому что самодельных скамеек не всем хватало, плюс они были ненадежные. Сейчас мы прям расслабились. Заметил, что много местных выходит сюда вечером прогуляться и отдохнуть на природе, посидеть возле пруда, — подчеркнул Никита.
«Дом улучшенного проекта, на первом этаже есть колясочная и место для консьержа»
Около четырех лет назад в панельку жилого комплекса «Клевер парк» с семьей заселилась Вероника. Жилье у них арендное, дали от работы мужа.
— Вообще, эти дома были построены еще в 2014-м, но мы вот сюда заселились только в 2021-м. Как по мне, это стандартная панелька-столбик, такие сейчас часто строят, хотя вроде как считается, что это улучшенный проект. Вот у нас на первом этаже есть колясочная и место для консьержа. Наверное, в этом и основное отличие от других подобных панелек. А еще в квартирах на первом этаже есть подвал, который доступен с балкона, — рассказывает она.
Главный плюс для девушки — это то, что микрорайон не застроен так, что дома стоят друг на друге. Наоборот, достаточно просторно.
— Вроде по генплану немного дальше от нас планируют строить еще дома, то есть расширение в любом случае будет, но в данный момент тут места хватает. Возле дома практически всегда можно найти, где припарковать автомобиль. Знакомые, когда приезжают с других уголков Минска, даже удивляются, что вечерами спокойно можно найти место. Но, на крайний случай, совсем рядом есть большая крытая парковка. А еще тут очень спокойная атмосфера. Вот вечером вообще тишина стоит, — отмечает местная жительница.
Вероника говорит, что лично ей и по инфраструктуре всего хватает. Через дорогу от дома детский сад-начальная школа, а также много детских садов и школ чуть дальше, в пятнадцати минутах ходьбы от дома. То же самое и с поликлиниками. В пяти минутах от панельки, где она живет, большой продуктовый. Рядом и остановки общественного транспорта, от которых на автобусе можно быстро доехать и на Комаровку, и в Колодищи.
— Мне, правда, здесь очень нравится — спокойно, уютно, не перегружено домами и, соответственно, людьми. В квартиры, как мне кажется, больше заселяются молодые люди, с которыми легче наладить отношения. Все это для меня большие плюсы, — подчеркивает она.
Что здесь продается?
Всего в этом микрорайоне предлагается около 15 вариантов квартир. Их стоимость варьируется от 84 до 143 786 тысяч долларов.
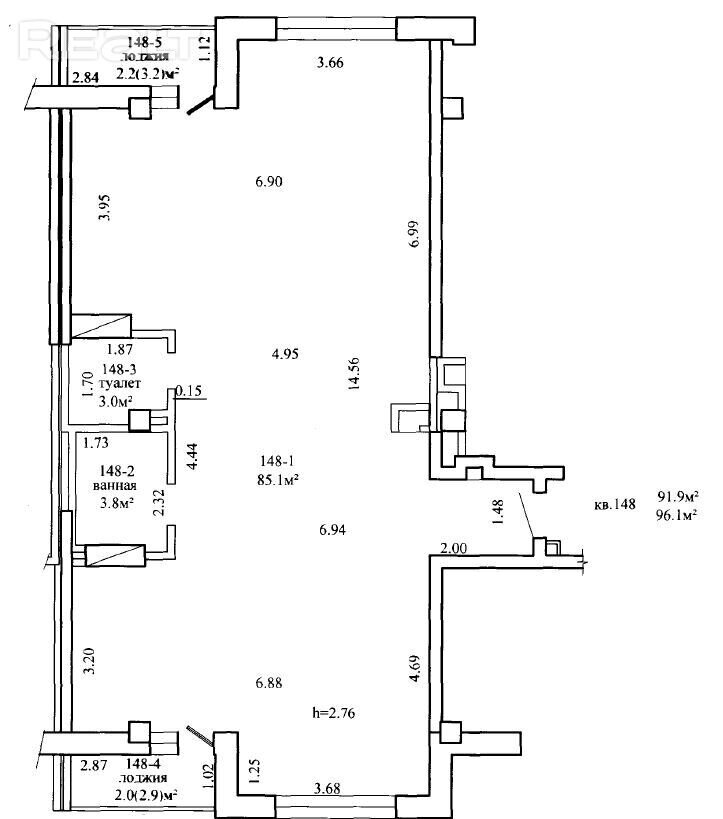
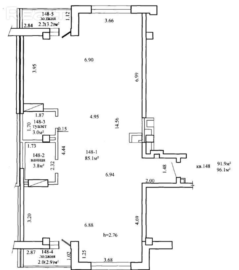
Интересно, что большинство предложений — в доме на Купревича, 16. Это каркасно-блочная шестнадцатиэтажка, которая была сдана в эксплуатацию в 2023 году. Один из вариантов в ней — самая дорогая квартира здесь, трешка общей площадью 91,9 метр квадратный. Жилье свободной планировки и без отделки. В нем две лоджии и раздельный санузел. Стоимость такой квартиры оценивается в 143 829 тысяч долларов, то есть метр квадратный обойдется в 1 565 тысячи долларов.
Еще одна трешка выставлена на продажу в ЖК «Клевер парк». Она находится на девятом этаже дома, построенного в 2014 году. В нем есть консьерж. Общая площадь квартиры — 78,4 метра квадратных. В ней три раздельных комнаты, просторная кухня площадью 12,9 квадратов, застекленный и утепленный балкон. Также есть кладовка. Высота потолков — 2,64 метра. В квартире сделан хороший ремонт, поэтому можно заселяться сразу после покупки. Владельцы готовы оставить мебель и технику. Жилье продается с парковочным местом. Предложение оценивается в 132 600 тысячи долларов (за квадрат — 1 691 тысяча долларов).
Один из наиболее доступных вариантов — это просторная однушка в жилом комплексе «Клевер парк». Панелька, в которой она находится, была построена в 2013 году. В доме есть собственная ухоженная территория, а на въезде стоит шлагбаум. Кроме того, на каждую квартиру предусмотрено машиноместо, а также колясочная на первом этаже и консьерж. Сама квартира общей площадью 45,3 квадрата, из них 9,5 м² занимает кухня — на ней есть барная стойка и большой диван. В однушке сделан качественный ремонт. Просторная комната площадью 17,9 м² зонирована, что помогает легко организовать пространство для отдыха и работы. В прихожей установлены встроенные вместительные шкафы. Лоджия застеклена. Просят за такую квартиру 84 тысячи долларов (1 854 тысячи долларов — за метр квадратный).
В этом же доме предлагается еще одна однокомнатная квартира, немного выше по цене. Она расположена на пятом этаже и также имеет общую площадь — 45,3 квадрата. Высота потолков здесь — 2,7 метров. В однушке сделан хороший ремонт в светлых оттенках. Так, можно в нее заселиться сразу, ключи передаются в день сделки. Владельцы также оставляют всю мебель и технику. Хотят за эту однушку 89 900 тысяч долларов (квадратный метр — 1 985 тысяч долларов).
Читайте также:
«Беларусбанк» существенно снизил ставку по кредиту на покупку квартир в новостройках. Рассказываем
Домик в деревне до 10 тысяч долларов: 5 вариантов с печкой недалеко от Минска
Это наша новая стабильность. Что происходит с продажей квартир в Минске и что нас ждет летом
85899
Застройщики переоценили спрос на студии. Что будет с ценами на новостройки этим летом
52960
10 самых интересных минских строек жилья в 2026 году. Панельные, монолитные, элитные и эконом
35987
Красивый дом у Минского моря. Минчанин показал, как классно жить за городом
17267
«Фиксируем завышенные цены». Что происходит с квартирами в Минске прямо сейчас
7876
Вне времени и моды: усадьба в Тарасово с клинкерным фасадом, домом-баней и прудом. Побывали внутри
24776
Включить стиральную машину — это тоже работа. Как делить домашние обязанности и не ссориться из-за быта
7162
Нашли пять классных квартир, в которые уже можно заезжать. Вот как купить их, если на руках — только 10% от стоимости
6011
Видео этих агентов по недвижимости набирают по 50 тысяч просмотров. Что они делают?
15309
«Переезжать сюда насовсем желания нет». Узнали, как живется в брежневках в Чижовке
77681
Кредит, использование семейного капитала, уплата налогов. В каких случаях нужно вызывать профессионального оценщика недвижимости?
5891
Что такое альтернативные сделки или как переехать в квартиру побольше, не доплатив ни копейки?
9920
Минчане построили дом из двойного утепленного бруса с "подземной" баней. Съездили посмотреть, что у них получилось
64027
Нашли самую маленькую однушку в Минске с ремонтом и мебелью. И что по цене?
63440
За два участка боролись по 74 и 72 человека - и это новый рекорд! Рассказываем об итогах земельного аукциона в Минском районе
29973
Многие здесь работают в «Газпроме». Побывали в тихом поселке под Минском, о котором мало кто знает
52401
Не хватает на жилье в Минске? Собрали недорогие квартиры в городах-спутниках, где сразу можно жить
31706
Есть и за 7 тысяч. Нашли крепкие хаты до 20 тысяч долларов возле озер и леса
92290
"Когда переехали - мама заплакала". Как жили раньше и как живут сейчас в Шабанах - криминальном районе Минска 90-х
80457
До 50 тысяч долларов. Как выглядят и сколько стоят недорогие двушки в Минске, где сразу можно жить
84124- Бизнес центры
- Торговые центры
- Продажа гаражи, машиноместа
- Продажа офисы, нежилые помещения
- Продажа магазины, торговые помещения
- Продажа рестораны, бары, кафе
- Продажа склады, производства
- Продажа бизнес, сфера услуг
- Аренда офиса, помещений
- Аренда магазины, торговые помещения
- Аренда рестораны, бары, кафе
- Аренда склады, производства
- Аренда сфера услуг, игровой бизнес
- Аренда гаража, машиномест























































































