Кому сталинку с ремонтом на проспекте Независимости? Показываем эту однушку
10590На проспекте Независимости около главного здания «Беларусьфильм» продается отремонтированная однокомнатная сталинка. Тут есть мебель, хорошая техника — все, чтобы сразу заехать и жить. Показываем, как она выглядит и сколько стоит.
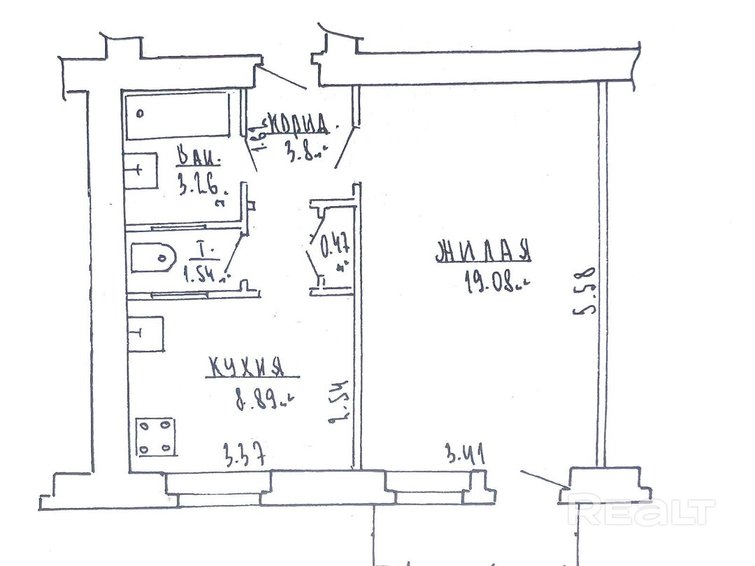
Дом на проспекте Независимости, 100 построили в четыре этажа в 1961 году. На последнем уровне сейчас продается квартира в 39 м² — однокомнатная сталинка с высокими потолками в 2,95 м и кирпичными стенами.
Кстати, эту квартиру, как и остальные квартиры на Realt, можно купить в лизинг. Получить индивидуальную консультацию от специалистов можно вот здесь.
Жилье полностью готово к проживанию. Как пишет автор объявления, тут был сделан дизайнерский ремонт. Кухня в квартире отдельная с гарнитуром и бытовой техникой: имеется встроенная индукционная варочная поверхность, духовой шкаф Bosch, холодильник, вытяжка, посудомоечная машина ELECTROLUX. На полу здесь, в прихожей и ванной уложен керамогранит с подогревом.
Санузел изначально был раздельный, но пространства решили объединить. Тут стоит стиральная машина, установлена итальянская сантехника.
Дом стоит рядом со станцией метро «Московская». В пешей доступности — парк Челюскинцев и ТРЦ Dana Mall.
Стоимость квартиры составляет 117 900 долларов. Квадратный метр — 3 023 доллара.
Это наша новая стабильность. Что происходит с продажей квартир в Минске и что нас ждет летом
93386
Застройщики переоценили спрос на студии. Что будет с ценами на новостройки этим летом
56927
10 самых интересных минских строек жилья в 2026 году. Панельные, монолитные, элитные и эконом
44699
«Фиксируем завышенные цены». Что происходит с квартирами в Минске прямо сейчас
12655
«Заселились 40 лет назад, уезжать не хотим». Как живется в панельках возле парка Павлова в Малиновке
21723
Телефон в рассрочку будет выгоднее, чем при оплате сразу? Смотрим обновленный салон Life в центре Минска
6837
У вас еще нет своего жилья? Считаем, сколько вы будете тратить на аренду и сколько — на платежи за собственную квартиру
7505
Видео этих агентов по недвижимости набирают по 50 тысяч просмотров. Что они делают?
15309
«Переезжать сюда насовсем желания нет». Узнали, как живется в брежневках в Чижовке
77681
Кредит, использование семейного капитала, уплата налогов. В каких случаях нужно вызывать профессионального оценщика недвижимости?
5891
Что такое альтернативные сделки или как переехать в квартиру побольше, не доплатив ни копейки?
9920
Минчане построили дом из двойного утепленного бруса с "подземной" баней. Съездили посмотреть, что у них получилось
64027
Нашли самую маленькую однушку в Минске с ремонтом и мебелью. И что по цене?
63440
За два участка боролись по 74 и 72 человека - и это новый рекорд! Рассказываем об итогах земельного аукциона в Минском районе
29973
Многие здесь работают в «Газпроме». Побывали в тихом поселке под Минском, о котором мало кто знает
52401
Не хватает на жилье в Минске? Собрали недорогие квартиры в городах-спутниках, где сразу можно жить
31706
Есть и за 7 тысяч. Нашли крепкие хаты до 20 тысяч долларов возле озер и леса
92290
"Когда переехали - мама заплакала". Как жили раньше и как живут сейчас в Шабанах - криминальном районе Минска 90-х
80457
До 50 тысяч долларов. Как выглядят и сколько стоят недорогие двушки в Минске, где сразу можно жить
84124
"На нашей детской площадке собиралась вся Малиновка". Как живется в тех самых "английских" домах от МАПИДа в Минске
35883- Бизнес центры
- Торговые центры
- Продажа гаражи, машиноместа
- Продажа офисы, нежилые помещения
- Продажа магазины, торговые помещения
- Продажа рестораны, бары, кафе
- Продажа склады, производства
- Продажа бизнес, сфера услуг
- Аренда офиса, помещений
- Аренда магазины, торговые помещения
- Аренда рестораны, бары, кафе
- Аренда склады, производства
- Аренда сфера услуг, игровой бизнес
- Аренда гаража, машиномест

















