Эти минские дома — ровесники революции. А какие квартиры в них продаются?
9358Сегодня, 7 ноября, в Беларуси отмечают 108 лет со дня Октябрьской революции. Это знаменательное событие минувшего века перевернуло ход мировой истории и послужило началом новой эры. В честь праздника (кстати, наша страна — одна из немногих, кто сохраняет традицию) мы решили поискать в Минске дома, построенные в те годы или раньше. Конечно, из-за последующего военного лихолетья уцелело в столице немного, но несколько «ровесников Революции» мы все-таки нашли. Рассказываем, что это за дома и что в них продается.
Отметим, что дошедшие до наших дней дома начала прошлого века нельзя назвать элитными — тут нет сверкающих лобби, подземных паркингов или панорамных окон. Однако здания тех лет сейчас расположены в лучших местах города. Именно поэтому квартиры в них стоят дороже, чем в среднем по рынку. Что касается возраста, то в «паспорте» у всех дореволюционных зданий Минска, независимо от реальной даты строительства, стоит 1917 или 1918 год. Связано это с тем, что из-за последующих войн и других перипетий документы на старые дома в большинстве своем не сохранились.
Итак, начинаем. Самый доступный вариант из исторического — однокомнатная квартира в доме на улице Ленина, 21. Это кирпичное здание было построено еще до 1917 года, а в 2003-м тут прошел капремонт.
Однушка расположена на втором этаже трехэтажного кирпичного дома. В квартире площадью 29 квадратных метров выполнен частичный ремонт: в комнате — ламинат и натяжной потолок, санузел облицован плиткой, установлена душевая кабина. Имеются счетчики воды и газа.
Дом отличают высокие потолки — 3,15 метра. Окна выходят на тихий зеленый благоустроенный двор. Подчеркивается, что при капитальном ремонте дома произведена замена коммуникаций. Про окружение и говорить не приходится: рядом можно найти множество магазинов, торговых центров, ресторанов, кафе и многого другого. Неподалеку находится железнодорожный вокзал, станции метро «Первомайская» и «Купаловская», набережная реки Свислочь с велодорожкой и местами для отдыха. Продают квартиру за 89 тысяч долларов (2993 доллара — за метр).
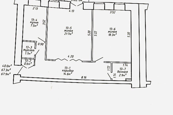
Следующий вариант — двухкомнатная квартира на Володарского, 7. Этот кирпичный трехэтажный дом вместе с соседними зданиями возвели в конце XIX — начале XX веков. Постройка — яркий пример гражданской архитектуры тех лет. Сегодня здание является памятником историко-культурного наследия.
Общая площадь квартиры насчитывает 40 квадратных метров. Двушка располагается на первом этаже. Внутри квартиры сделан ремонт в современном стиле. Тут выделена кухня-гостиная, есть отдельная спальня. В санузле установлена ванная.
Прочные кирпичные стены обеспечивают достойную тепло- и шумоизоляцию. Еще один бонус — нереально высокие потолки, 3,8 метра. Рядом с домом — проспект Независимости, театр им. Максима Горького, кинотеатр «Центральный», магазины, кафе и рестораны. Стоимость квартиры — 144,6 тысячи долларов (3597 долларов — за метр).
Это дом на Мясникова, 76 — один из немногих, уцелевших во время войн. Построили весь комплекс зданий еще до революции (тут размещалась женская еврейская гимназия), а затем несколько раз перестраивали. В послевоенное время здание переоборудовали в жилой дом и в нем разместили сотрудников Института иностранных языков. Изначально каменное здание было высотой в два этажа, а позже к нему надстроили мансарду. Дом подрос на два этажа, но сохранил свой неповторимый облик: лепка, мезонины, ажурные решетки, купола.
Двушка в кирпичном доме (стены толщиной — 1 метр) располагается в историческом центре Минска, недалеко от Железнодорожного вокзала, площади Независимости и Немиги. Квартира находится на 2-м этаже. Планировка квартира состоит из кухни, гостиной, спальни, коридора, раздельного санузла и балкона. Внутри — добротный ремонт. Квартира продается за 135 тысяч долларов (1988 долларов — за метр).
Ну, а самое шикарное предложение — трехкомнатная квартира в историческом центре Минска — на улице Раковской, 16а.
Эта уникальная квартира расположена на втором этаже двухэтажного кирпичного дома 1917 года постройки (в документах указан этот год, но скорее всего дом построили раньше). Квартира площадью 107 квадратов полностью готова к проживанию или аренде. Здесь проведен ремонт с полной заменой коммуникаций. Окна жилья выходят на две стороны.
Трешка состоит из просторной гостиной с панорамными окнами, большой кухни с выходом на балконом и потрясающим видом, а также двух уютных спальных комнат. Основная спальня может похвастаться большой кроватью и гардеробной зоной. Вторая спальня может использоваться как детская комната, кабинет или гостевая.
Отмечается, что дом размещается в престижной минской локации. Рядом — все известные столичные достопримечательности, а также кафе, рестораны, музеи, станция метро «Немига». К двухэтажке примыкает закрытый двор с парковкой под шлагбаумом. В квартире — полуметровые стены и высокие потолки (3,4 метра). Оценили квартиру в 290 тысяч долларов (2700 долларов — за метр).
Мы попытались найти в нашей базе частные дома, построенные до 1917 года, но таковых в Минске осталось очень мало. К примеру, историческая усадебная застройка имеется в Северном переулке (тут сохранилось несколько деревянных домов работников железной дороги), однако хозяева не спешат расставаться с усадьбами в центре города. В продаже тут ничего нет.
Читайте также:
Об этом доме с непростой историей мало кто знает. Поинтересовались, почем тут продают квартиры
Что за яркий дом вырос рядом с Парком высоких технологий? Рассказываем подробности
Это наша новая стабильность. Что происходит с продажей квартир в Минске и что нас ждет летом
93386
Застройщики переоценили спрос на студии. Что будет с ценами на новостройки этим летом
56927
10 самых интересных минских строек жилья в 2026 году. Панельные, монолитные, элитные и эконом
44699
«Фиксируем завышенные цены». Что происходит с квартирами в Минске прямо сейчас
12655
«Заселились 40 лет назад, уезжать не хотим». Как живется в панельках возле парка Павлова в Малиновке
21723
Телефон в рассрочку будет выгоднее, чем при оплате сразу? Смотрим обновленный салон Life в центре Минска
6837
У вас еще нет своего жилья? Считаем, сколько вы будете тратить на аренду и сколько — на платежи за собственную квартиру
7505
Видео этих агентов по недвижимости набирают по 50 тысяч просмотров. Что они делают?
15309
«Переезжать сюда насовсем желания нет». Узнали, как живется в брежневках в Чижовке
77681
Кредит, использование семейного капитала, уплата налогов. В каких случаях нужно вызывать профессионального оценщика недвижимости?
5891
Что такое альтернативные сделки или как переехать в квартиру побольше, не доплатив ни копейки?
9920
Минчане построили дом из двойного утепленного бруса с "подземной" баней. Съездили посмотреть, что у них получилось
64027
Нашли самую маленькую однушку в Минске с ремонтом и мебелью. И что по цене?
63440
За два участка боролись по 74 и 72 человека - и это новый рекорд! Рассказываем об итогах земельного аукциона в Минском районе
29973
Многие здесь работают в «Газпроме». Побывали в тихом поселке под Минском, о котором мало кто знает
52401
Не хватает на жилье в Минске? Собрали недорогие квартиры в городах-спутниках, где сразу можно жить
31706
Есть и за 7 тысяч. Нашли крепкие хаты до 20 тысяч долларов возле озер и леса
92290
"Когда переехали - мама заплакала". Как жили раньше и как живут сейчас в Шабанах - криминальном районе Минска 90-х
80457
До 50 тысяч долларов. Как выглядят и сколько стоят недорогие двушки в Минске, где сразу можно жить
84124
"На нашей детской площадке собиралась вся Малиновка". Как живется в тех самых "английских" домах от МАПИДа в Минске
35883- Бизнес центры
- Торговые центры
- Продажа гаражи, машиноместа
- Продажа офисы, нежилые помещения
- Продажа магазины, торговые помещения
- Продажа рестораны, бары, кафе
- Продажа склады, производства
- Продажа бизнес, сфера услуг
- Аренда офиса, помещений
- Аренда магазины, торговые помещения
- Аренда рестораны, бары, кафе
- Аренда склады, производства
- Аренда сфера услуг, игровой бизнес
- Аренда гаража, машиномест




































































