Квартиры в этих минских новостройках купить было нельзя. Теперь жилье продают сами собственники
19127В этом году в Лошице-7 сдали два необычных дома. Если в других новостройках квартала квартиры могли приобрести как очередники, так и все желающие, то жилье в этих домах в свободную продажу не попадало. Дело в том, что квартиры в восьмиэтажках использовали для расселения жителей частного сектора — тех, чьи усадьбы отправили под снос. После ввода домов в эксплуатацию некоторые собственники выставили квартиры на продажу. Рассказываем о ценах.
Так, на продажу выставлена однокомнатная квартира на 6-м этаже дома. Общая площадь этой однушки составляет 39 квадратных метров. В квартире выполнен стандартный ремонт — обои, линолеум, плитка. Плюсы однушки — просторная кухня с выходом на лоджию, раздельный санузел, функциональная прихожая с местом под гардеробную. Стоимость — 84,5 тысячи долларов (2145 долларов — за метр).
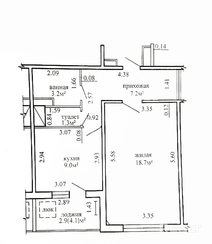
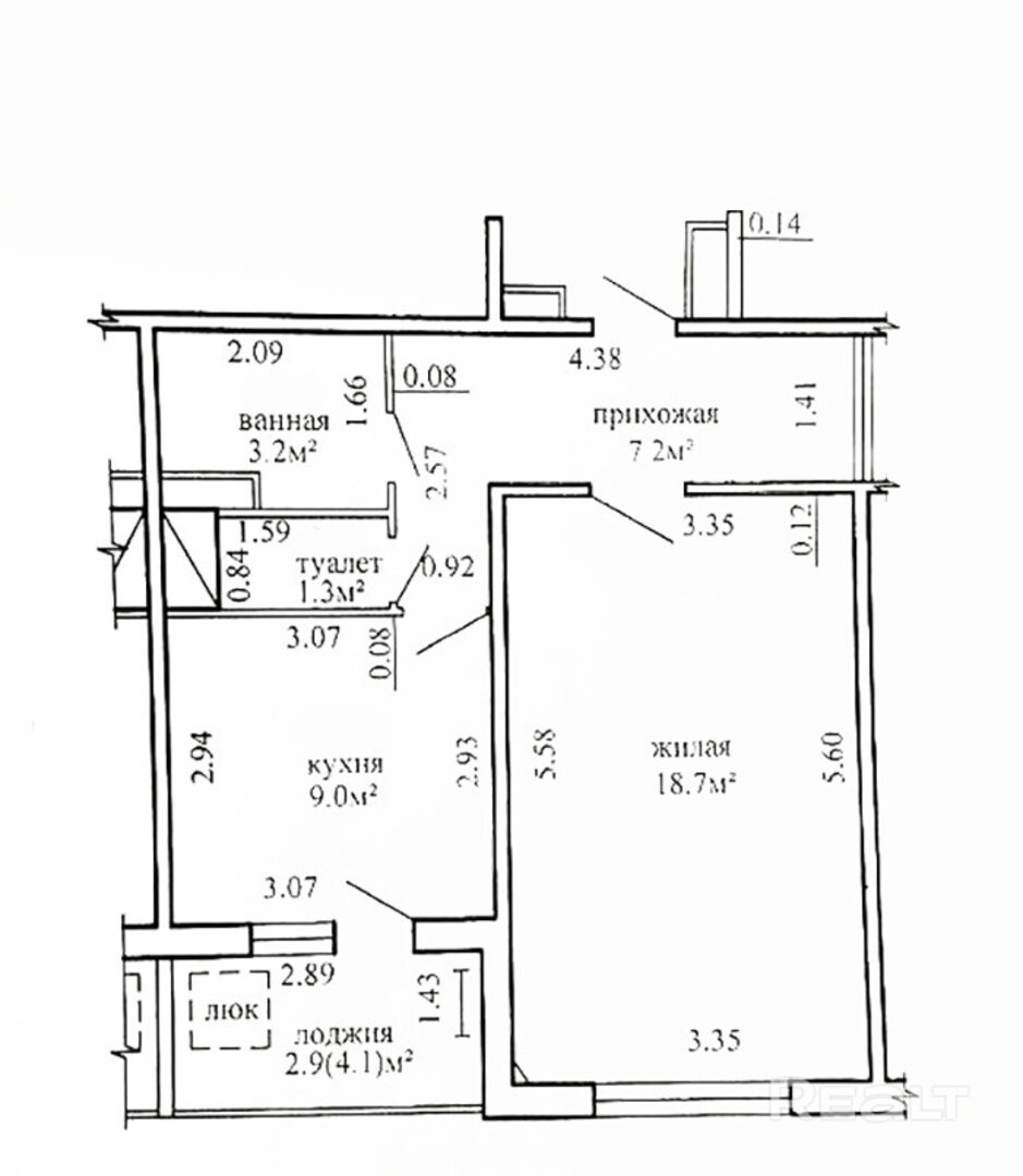
Еще один вариант в продаже — четырехкомнатная квартира площадью почти 100 квадратных метра. Квартира располагается на 7-м этаже дома. Четырешка также полностью готова к проживанию — остается привезти мебель и технику. Жилье состоит из четырех раздельных комнат, кухни с выходом на лоджию, двух кладовых, раздельного санузла и двух лоджий. Из особенностей — отдельный тамбур только на одну квартиру. Стоимость квартиры — 150 тысяч долларов (1523 доллара — за метр).
Выбираете квартиру в новостройке? Тогда вам поможет наш обзор по всем новостройкам Минска и пригорода. Мы собрали в одном месте всю необходимую информацию: от наличия квартир до условий кредитования. А сейчас обзор стал еще интереснее: мы добавили цены реальных сделок по новостройкам от собственников. Эта информация сэкономит вам время и поможет сделать максимально рациональный выбор!
Это наша новая стабильность. Что происходит с продажей квартир в Минске и что нас ждет летом
92327
Застройщики переоценили спрос на студии. Что будет с ценами на новостройки этим летом
56339
10 самых интересных минских строек жилья в 2026 году. Панельные, монолитные, элитные и эконом
43267
«Фиксируем завышенные цены». Что происходит с квартирами в Минске прямо сейчас
11971
«У меня уникальная спальня». Минчанка сделала классный ремонт в сталинке над аркой
29818
«Заселились 40 лет назад, уезжать не хотим». Как живется в панельках возле парка Павлова в Малиновке
21063
Телефон в рассрочку будет выгоднее, чем при оплате сразу? Смотрим обновленный салон Life в центре Минска
4420
Видео этих агентов по недвижимости набирают по 50 тысяч просмотров. Что они делают?
15309
«Переезжать сюда насовсем желания нет». Узнали, как живется в брежневках в Чижовке
77681
Кредит, использование семейного капитала, уплата налогов. В каких случаях нужно вызывать профессионального оценщика недвижимости?
5891
Что такое альтернативные сделки или как переехать в квартиру побольше, не доплатив ни копейки?
9920
Минчане построили дом из двойного утепленного бруса с "подземной" баней. Съездили посмотреть, что у них получилось
64027
Нашли самую маленькую однушку в Минске с ремонтом и мебелью. И что по цене?
63440
За два участка боролись по 74 и 72 человека - и это новый рекорд! Рассказываем об итогах земельного аукциона в Минском районе
29973
Многие здесь работают в «Газпроме». Побывали в тихом поселке под Минском, о котором мало кто знает
52401
Не хватает на жилье в Минске? Собрали недорогие квартиры в городах-спутниках, где сразу можно жить
31706
Есть и за 7 тысяч. Нашли крепкие хаты до 20 тысяч долларов возле озер и леса
92290
"Когда переехали - мама заплакала". Как жили раньше и как живут сейчас в Шабанах - криминальном районе Минска 90-х
80457
До 50 тысяч долларов. Как выглядят и сколько стоят недорогие двушки в Минске, где сразу можно жить
84124
"На нашей детской площадке собиралась вся Малиновка". Как живется в тех самых "английских" домах от МАПИДа в Минске
35883- Бизнес центры
- Торговые центры
- Продажа гаражи, машиноместа
- Продажа офисы, нежилые помещения
- Продажа магазины, торговые помещения
- Продажа рестораны, бары, кафе
- Продажа склады, производства
- Продажа бизнес, сфера услуг
- Аренда офиса, помещений
- Аренда магазины, торговые помещения
- Аренда рестораны, бары, кафе
- Аренда склады, производства
- Аренда сфера услуг, игровой бизнес
- Аренда гаража, машиномест


































