Бюджетные квартиры рядом с будущими станциями зеленой ветки метро. Сколько они стоят и как выглядят?
21566В эту подборку вошли бюджетные квартиры с разным количеством комнат. Все они находятся близко к будущим станциям зеленой ветки метро. Напомним, эти станции построят в центре города, около Комаровки и парка Дружбы народов. Большинство из вариантов располагаются в пятиэтажках, но есть и в новостройке. Обстановка некоторых квартир позволяет заехать и жить. Для полного комфорта имеющийся комплект можно дополнить необходимой бытовой техникой. Выгодные предложения на любой запрос и бюджет есть в интернет-магазине Newton.by — переезжайте и живите с комфортом.
Сейчас поезда курсируют по 7 станциям Зеленолужской (зеленой) линии минского метро. До 2030-го года планируют ввести в эксплуатацию еще ряд станций. Они будут проходить через центр города, Комаровский рынок, парк Дружбы народов, а закончится линия в микрорайоне Зеленый луг, недалеко от МКАД. Не секрет, что наличие подземного транспорта влияет на стоимость жилья. Предлагаем 6 квартир, которые сегодня выставляются по бюджетной цене в очень перспективных локациях.
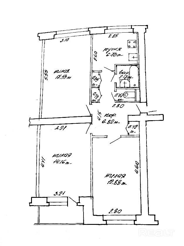
В пятиэтажке на Киселева, 36 выставлена на продажу двушка в 52,9 м² с кухней в 6,6 м². Она расположилась на предпоследнем этаже. Дом 1971 года постройки, после капитального ремонта.
Дом находится в центре города: до Немиги — 10-15 минут пешком. Около пятиэтажки — Республиканский театр белорусской драматургии, поблизости расположился парк с Комсомольским озером.
Цена квадратного метра — 1 853 доллара, стоимость двушки — 98 тысяч долларов.
Когда думаешь про тихий и уютный вечер в своей квартире, сразу представляешь чай, одеяло и хороший фильм, поэтому стоит посмотреть в сторону качественного телевизора. На сайте Newton.by больше тысячи вариантов по различным ценам. Бюджетный телевизор Haier 32 Smart TV S2 Pro (1920x1080, Full HD) идеально впишется и в гостиную, и в спальню. Бонус при покупке — скидка 7% на саундбар.
Отличным дополнением может стать игровая приставка Sony PlayStation 5 Slim или Sony PlayStation 5 Pro на 2 геймпада.
В квартире две отдельные комнаты, но при желании можно легко изолировать все. На полу тут лежат линолеум и ламинат. Окна выходят на обе стороны, стоят стеклопакеты.
В квартире остается мебель. Планировка предусматривает несколько ниш для хранения вещей. Из комнаты имеется выход на застекленный балкон.
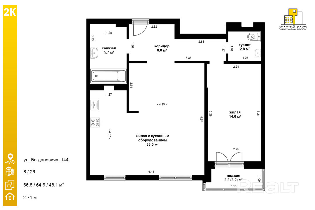
Вход в метро будет как раз у самого дома. В пешей доступности — Комаровский рынок.
Цена квадратного метра — 1 830 долларов. Получается, квартиру можно приобрести за 108 500 долларов.
Навести порядок в таком количестве комнат — тяжелый труд. Чтобы немного облегчить себе жизнь, выбирайте удобный пылесос. Как вам робот-пылесос Xiaomi Robot Vacuum S40 Pro OV71GL или Xiaomi Robot Vacuum S40 OV81? Переложите ответственность за чистоту на проверенную технику.
Метро будет в шаговой доступности. Напротив — парк. Поблизости есть продуктовые магазины, Комаровский рынок и торговые центры.
Стоимость метра составляет 2 937 долларов. Однушка обойдется в 64 900 долларов.
Уместить всю необходимую технику в такой небольшой кухне сложно, поэтому отличным спасателем будет аэрогриль Xiaomi Smart Air Fryer 6.5L MAF10. Объем в 6,5 литра позволит полезно и вкусно накормить и семью, и компанию друзей. Управляется аэрогриль при помощи сенсорной панели.
Чтобы сэкономить еще больше времени, выбирайте современную стиральную машину: LG F1296NDS0 или LG F1296HDS1.
Рядом с домом есть сквер, поблизости — Цнянка и парк Дружбы народов.
Квадрат — 1 825 долларов. Квартира стоит 121 900 долларов.
В этой квартире можно обустроить стильную кухню. Как насчет встроенной посудомоечной машины? На сайте Newton.by есть решения. Например, посудомоечная машина Bosch Serie 4 SPV4HMX10E, в которую можно загрузить до 10 комплектов посуды. Электронный режим управления, шесть программ: вы и сбережете ценный хрусталь, и тщательно отмоете сковороду.
Можно сказать, что дом стоит между Цнянским водохранилищем и Севастопольским парком.
Цена одно метра — 1 647 долларов. Квартира обойдется в 102 500 долларов.
Здорово просыпаться в своей собственной квартире и начинать день с чашечки кофе. Забирайте себе рожковую кофеварку DeLonghi Dedica EC 685.M, компактную, практичную модель с интуитивно понятным управлением.
Рядом есть магазины, удобный выезд на МКАД. Быстро можно добраться до Expobel и рынка «Валерьяново».
Один метр в однушке стоит 2 135 долларов, за жилье нужно заплатить 67 900 долларов.
Сделайте себе подарок к переезду — обустройте квартиру с комфортом, стильно, с учетом всех ваших пожеланий. Заказывайте технику для дома, красоты и даже дачи на интернет-площадке Newton.by. Товары доставят на дом, также можно оформить самовывоз.
Это наша новая стабильность. Что происходит с продажей квартир в Минске и что нас ждет летом
87540
Застройщики переоценили спрос на студии. Что будет с ценами на новостройки этим летом
53809
10 самых интересных минских строек жилья в 2026 году. Панельные, монолитные, элитные и эконом
37611
«Фиксируем завышенные цены». Что происходит с квартирами в Минске прямо сейчас
8840
Включить стиральную машину — это тоже работа. Как делить домашние обязанности и не ссориться из-за быта
9358
Нашли пять классных квартир, в которые уже можно заезжать. Вот как купить их, если на руках — только 10% от стоимости
11147
«Дом с потенциалом». Семья построила умный A-frame под Минском, а сейчас продает по цене однушки
16438
Бизнес там, где есть спрос: на аукцион выставили 10 коммерческих помещений в свежих новостройках
6754
Видео этих агентов по недвижимости набирают по 50 тысяч просмотров. Что они делают?
15309
«Переезжать сюда насовсем желания нет». Узнали, как живется в брежневках в Чижовке
77681
Кредит, использование семейного капитала, уплата налогов. В каких случаях нужно вызывать профессионального оценщика недвижимости?
5891
Что такое альтернативные сделки или как переехать в квартиру побольше, не доплатив ни копейки?
9920
Минчане построили дом из двойного утепленного бруса с "подземной" баней. Съездили посмотреть, что у них получилось
64027
Нашли самую маленькую однушку в Минске с ремонтом и мебелью. И что по цене?
63440
За два участка боролись по 74 и 72 человека - и это новый рекорд! Рассказываем об итогах земельного аукциона в Минском районе
29973
Многие здесь работают в «Газпроме». Побывали в тихом поселке под Минском, о котором мало кто знает
52401
Не хватает на жилье в Минске? Собрали недорогие квартиры в городах-спутниках, где сразу можно жить
31706
Есть и за 7 тысяч. Нашли крепкие хаты до 20 тысяч долларов возле озер и леса
92290
"Когда переехали - мама заплакала". Как жили раньше и как живут сейчас в Шабанах - криминальном районе Минска 90-х
80457
До 50 тысяч долларов. Как выглядят и сколько стоят недорогие двушки в Минске, где сразу можно жить
84124- Бизнес центры
- Торговые центры
- Продажа гаражи, машиноместа
- Продажа офисы, нежилые помещения
- Продажа магазины, торговые помещения
- Продажа рестораны, бары, кафе
- Продажа склады, производства
- Продажа бизнес, сфера услуг
- Аренда офиса, помещений
- Аренда магазины, торговые помещения
- Аренда рестораны, бары, кафе
- Аренда склады, производства
- Аренда сфера услуг, игровой бизнес
- Аренда гаража, машиномест









































































































