797 долларов за квадрат, 10 минут от Минска. Смотрим хорошую двухуровневую квартиру
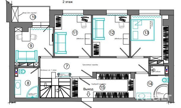
29755В агрогородке в 15 километрах от Минска продается квартира под чистовую отделку, стоимость квадратного метра — всего 797 долларов. И это редкое предложение не только по стоимости, но и по планировке: 4 спальни, 3 санузла, гостиная-кухня и гардеробная распределены в двух уровнях. Изучили этот вариант подробно.
Агрогородок называется Слобода — та самая, что находится у Кургана Славы и трассы в аэропорт. Расстояние до Минска приемлемое — 15 километров до метро в Уручье. Тут хорошая инфраструктура — школа и детский сад, магазины, аптеки, кафе, рынок, Wildberries, амбулатория, фитнес-клуб, парикмахерская, музыкальная школа. Остановка общественного транспорта в 3 минутах от дома. Маршрутки и автобусы до станции метро «Уручье» каждые 10−15 минут.
Стоит же эта двухуровневая квартира в Слободе 98 900 долларов (797 долларов за квадрат).
Это наша новая стабильность. Что происходит с продажей квартир в Минске и что нас ждет летом
76123
Застройщики переоценили спрос на студии. Что будет с ценами на новостройки этим летом
47451
10 самых интересных минских строек жилья в 2026 году. Панельные, монолитные, элитные и эконом
25176
Белорус сделал ремонт в 178-летней квартире. Посмотрите, как необычно получилось
32924
Первыми провели онлайн-сделку и за пару недель купили квартиру для нового участника. Как кооператив из Минска стал известен всей Беларуси
5540
Северный Берег, Лебяжий или Сухарево? Ищем идеальный ЖК для молодой пары
13740
Ищете офис недалеко от метро? Посмотрите, какой вариант класса В+ предлагают в районе Михалово
2319
Этот город построили женщины? Вспоминаем самых ярких жительниц Минска — и смотрим места, связанные с ними
1139
Видео этих агентов по недвижимости набирают по 50 тысяч просмотров. Что они делают?
14554
«Переезжать сюда насовсем желания нет». Узнали, как живется в брежневках в Чижовке
76701
Кредит, использование семейного капитала, уплата налогов. В каких случаях нужно вызывать профессионального оценщика недвижимости?
5126
Что такое альтернативные сделки или как переехать в квартиру побольше, не доплатив ни копейки?
8836
Минчане построили дом из двойного утепленного бруса с "подземной" баней. Съездили посмотреть, что у них получилось
64027
Нашли самую маленькую однушку в Минске с ремонтом и мебелью. И что по цене?
63440
За два участка боролись по 74 и 72 человека - и это новый рекорд! Рассказываем об итогах земельного аукциона в Минском районе
29973
Многие здесь работают в «Газпроме». Побывали в тихом поселке под Минском, о котором мало кто знает
52401
Не хватает на жилье в Минске? Собрали недорогие квартиры в городах-спутниках, где сразу можно жить
31706
Есть и за 7 тысяч. Нашли крепкие хаты до 20 тысяч долларов возле озер и леса
92290
"Когда переехали - мама заплакала". Как жили раньше и как живут сейчас в Шабанах - криминальном районе Минска 90-х
80457
До 50 тысяч долларов. Как выглядят и сколько стоят недорогие двушки в Минске, где сразу можно жить
84124- Бизнес центры
- Торговые центры
- Продажа гаражи, машиноместа
- Продажа офисы, нежилые помещения
- Продажа магазины, торговые помещения
- Продажа рестораны, бары, кафе
- Продажа склады, производства
- Продажа бизнес, сфера услуг
- Аренда офиса, помещений
- Аренда магазины, торговые помещения
- Аренда рестораны, бары, кафе
- Аренда склады, производства
- Аренда сфера услуг, игровой бизнес
- Аренда гаража, машиномест














