797 долларов за квадрат, 10 минут от Минска. Смотрим хорошую двухуровневую квартиру
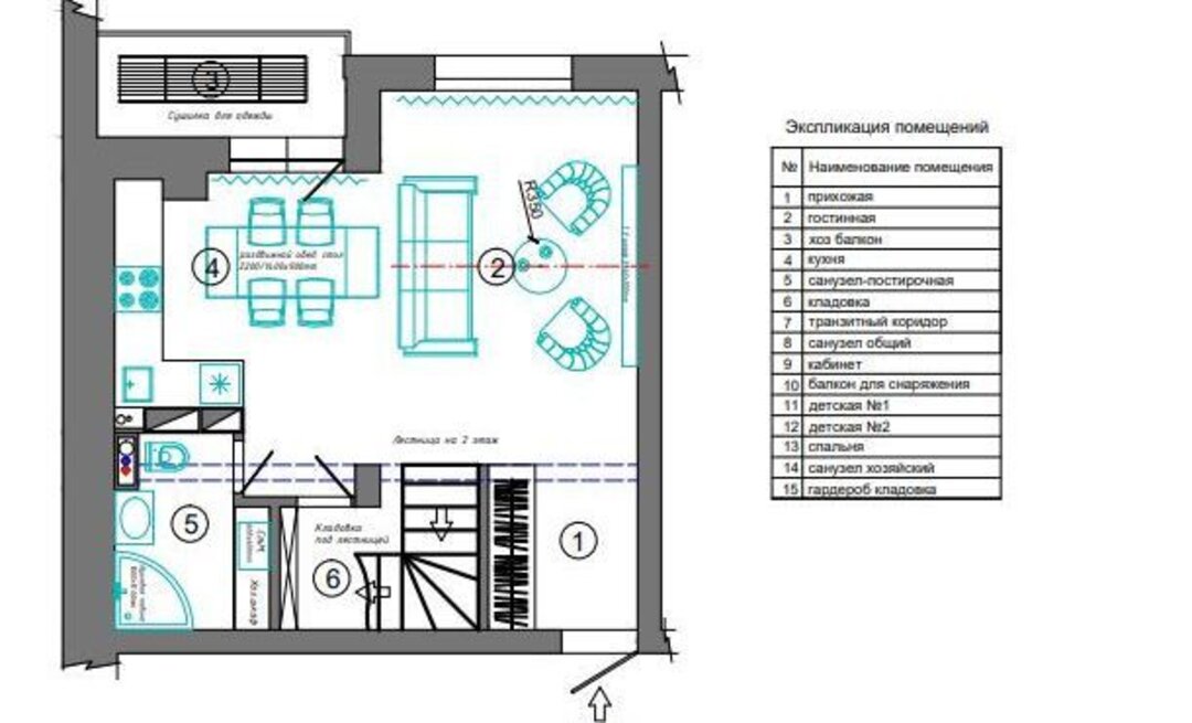
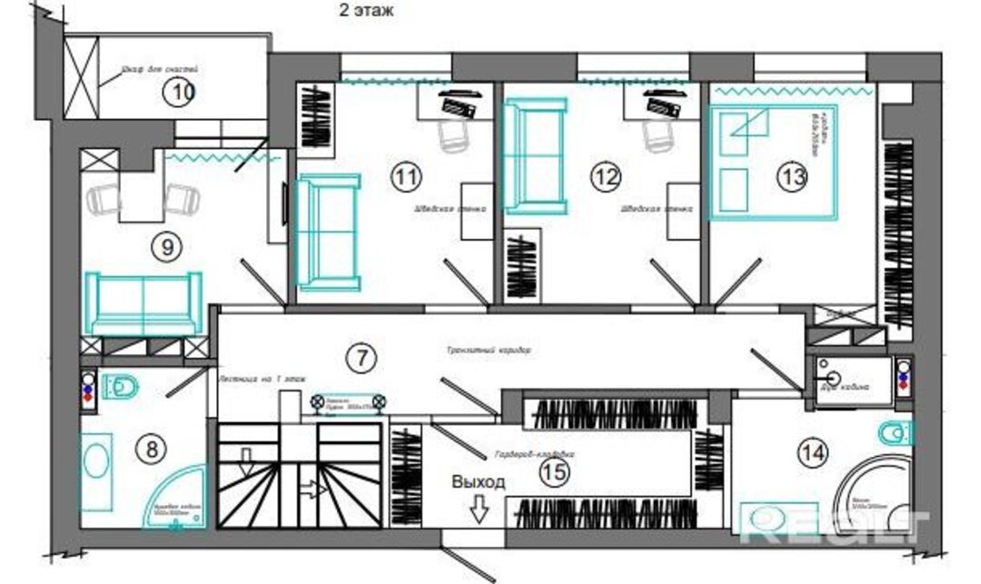
29865В агрогородке в 15 километрах от Минска продается квартира под чистовую отделку, стоимость квадратного метра — всего 797 долларов. И это редкое предложение не только по стоимости, но и по планировке: 4 спальни, 3 санузла, гостиная-кухня и гардеробная распределены в двух уровнях. Изучили этот вариант подробно.
Агрогородок называется Слобода — та самая, что находится у Кургана Славы и трассы в аэропорт. Расстояние до Минска приемлемое — 15 километров до метро в Уручье. Тут хорошая инфраструктура — школа и детский сад, магазины, аптеки, кафе, рынок, Wildberries, амбулатория, фитнес-клуб, парикмахерская, музыкальная школа. Остановка общественного транспорта в 3 минутах от дома. Маршрутки и автобусы до станции метро «Уручье» каждые 10−15 минут.
Стоит же эта двухуровневая квартира в Слободе 98 900 долларов (797 долларов за квадрат).
Это наша новая стабильность. Что происходит с продажей квартир в Минске и что нас ждет летом
87540
Застройщики переоценили спрос на студии. Что будет с ценами на новостройки этим летом
53809
10 самых интересных минских строек жилья в 2026 году. Панельные, монолитные, элитные и эконом
37611
«Фиксируем завышенные цены». Что происходит с квартирами в Минске прямо сейчас
8840
Включить стиральную машину — это тоже работа. Как делить домашние обязанности и не ссориться из-за быта
9358
Нашли пять классных квартир, в которые уже можно заезжать. Вот как купить их, если на руках — только 10% от стоимости
11147
«Дом с потенциалом». Семья построила умный A-frame под Минском, а сейчас продает по цене однушки
16438
Бизнес там, где есть спрос: на аукцион выставили 10 коммерческих помещений в свежих новостройках
6754
Видео этих агентов по недвижимости набирают по 50 тысяч просмотров. Что они делают?
15309
«Переезжать сюда насовсем желания нет». Узнали, как живется в брежневках в Чижовке
77681
Кредит, использование семейного капитала, уплата налогов. В каких случаях нужно вызывать профессионального оценщика недвижимости?
5891
Что такое альтернативные сделки или как переехать в квартиру побольше, не доплатив ни копейки?
9920
Минчане построили дом из двойного утепленного бруса с "подземной" баней. Съездили посмотреть, что у них получилось
64027
Нашли самую маленькую однушку в Минске с ремонтом и мебелью. И что по цене?
63440
За два участка боролись по 74 и 72 человека - и это новый рекорд! Рассказываем об итогах земельного аукциона в Минском районе
29973
Многие здесь работают в «Газпроме». Побывали в тихом поселке под Минском, о котором мало кто знает
52401
Не хватает на жилье в Минске? Собрали недорогие квартиры в городах-спутниках, где сразу можно жить
31706
Есть и за 7 тысяч. Нашли крепкие хаты до 20 тысяч долларов возле озер и леса
92290
"Когда переехали - мама заплакала". Как жили раньше и как живут сейчас в Шабанах - криминальном районе Минска 90-х
80457
До 50 тысяч долларов. Как выглядят и сколько стоят недорогие двушки в Минске, где сразу можно жить
84124- Бизнес центры
- Торговые центры
- Продажа гаражи, машиноместа
- Продажа офисы, нежилые помещения
- Продажа магазины, торговые помещения
- Продажа рестораны, бары, кафе
- Продажа склады, производства
- Продажа бизнес, сфера услуг
- Аренда офиса, помещений
- Аренда магазины, торговые помещения
- Аренда рестораны, бары, кафе
- Аренда склады, производства
- Аренда сфера услуг, игровой бизнес
- Аренда гаража, машиномест














