Праздничная акция от застройщика: площади для бизнеса рядом с метро предлагают по 9000 BYN/м²
6977В шаговой доступности сразу от двух станций метро — «Пушкинская» и «Спортивная» — продолжают строить жилой комплекс «Гулливер». Недавно здесь выставили на продажу партию компактных квартир для всех желающих. Сейчас застройщик поделился еще одним предложением. К Новому году в ЖК снизили цены на коммерческие помещения, заключить договор можно до 31 декабря. Почем можно купить инвестиционные объекты и какими они будут после сдачи комплекса? Узнали для вас.
Подробности новогодней акции
Встроенные помещения со скидкой предлагают в первом доме комплекса. Напомним, его планируют сдать уже в феврале 2026 года. Дом практически готов, строители ведут фасадные работы. И сейчас, накануне Нового года, помещения для бизнеса здесь предлагают по стоимости 9000 BYN/м².
Получается, цены снижаются на целых 10% — еще в ноябре они были зафиксированы на отметке 10 000 BYN за «квадрат». Застройщик отмечает, что специальное предложение ограничено по срокам: желающим нужно успеть выбрать и забронировать свой вариант.
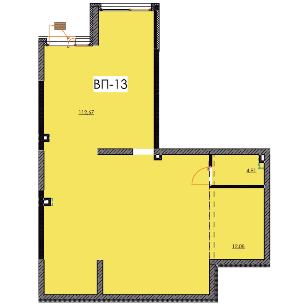
Какие же варианты здесь есть?
На схеме от застройщика можно увидеть все доступные решения. Так, например, выглядит планировка самого компактного помещения для бизнеса, его площадь — 75,79 м². Оно расположено в первой секции. Отдельный вход — в направлении улиц Притыцкого и Жудро.
Решение с практически такой же площадью и планировкой — помещение на 76,14 м², во второй секции. Отдельный вход — в том же направлении.
А вот вариант побольше, на 115,9 м², в третьей секции. Помещение с очень выгодным угловым расположением, которое позволит ему «захватить» все потоки трафика. Вход в объект — тоже в направлении улиц Притыцкого и Жудро.
И помещение с самой большой площадью — 129,56 м², в пятой секции. Его вход направлен на улицу Притыцкого, а значит, вывеску здесь увидят все, кто направляется по одной из важнейших артерий города в центр или к МКАД.
Мы показали всего 4 варианта, остальные вы увидите и сможете в деталях рассмотреть на схеме от застройщика. Часть помещений уже разобрали, поэтому с подходящим вариантом нужно определяться в ближайшие недели, особенно с учетом выгодной новогодней акции.
Характеристики помещений: потолки, окна, подготовка к ремонту и перспективность
Высота потолков встроенных помещений в ЖК «Гулливер» — 5,5 метров. Здесь предусмотрены отдельные входы, большие окна со стеклопакетами, с алюминиевыми рамами «АЛЮТЕХ». Застройщик сдаст объекты с высококачественной черновой отделкой (строители оштукатурят стены, сделают стяжки).
Если же говорить о перспективности помещений, ее можно увидеть уже сейчас:
- ЖК расположен в районе с двумя станциями метро, на оживленной улице, рядом со 2-м транспортным кольцом;
- здесь есть много точек притяжения — рынок, каток, крупные магазины;
- в скором времени в домах комплекса появятся сотни жителей;
- отдельные входы дадут возможность размещать яркие вывески, украшать витрины, в общем, использовать самые различные инструменты для привлечения покупателей.
Помещения можно купить как для открытия или расширения собственного бизнеса, так и для последующей сдачи в аренду.
ЖК «Гулливер»: что нужно знать
Жилой комплекс на Притыцкого будет состоять из 6 домов. Сейчас работы ведутся на первых двух. Они 19-этажные, каркасные. В первом доме 5 секций, во втором — 4. Лифты и секции здесь делают с учетом требований безбарьерной среды.
Помимо жилья и помещений для бизнеса, в ЖК «Гулливер» включены:
- двухуровневая гараж-стоянка (под дворовой территорией);
- детская площадка;
- спортплощадка;
- зеленые зоны;
- пешеходные дорожки;
- ландшафтный декор — малые архитектурные формы;
- качественное освещение.
Как купить объект для бизнеса в ЖК «Гулливер»?
Чтобы узнать больше и выбрать помещение для бизнеса, свяжитесь с застройщиком: г. Минск, ул. Советская, 17; +375 (44) 571−50−00; +375 (33) 398−20−00; guliver@uks.by.
Нажимая кнопку «Отправить заявку», вы понимаете, что указанные в заявке персональные данные будут предоставлены УП «УКС Мингорисполкома» (УНП 100 115 154) для их обработки на основании абз.15 ст. 6 Закона Республики Беларусь № 99-З «О защите персональных данных» с целью заключения и исполнения договора.
Это наша новая стабильность. Что происходит с продажей квартир в Минске и что нас ждет летом
90473
Застройщики переоценили спрос на студии. Что будет с ценами на новостройки этим летом
55338
10 самых интересных минских строек жилья в 2026 году. Панельные, монолитные, элитные и эконом
41160
«Фиксируем завышенные цены». Что происходит с квартирами в Минске прямо сейчас
10743
Включить стиральную машину — это тоже работа. Как делить домашние обязанности и не ссориться из-за быта
11296
Нашли пять классных квартир, в которые уже можно заезжать. Вот как купить их, если на руках — только 10% от стоимости
13015
«Дом с потенциалом». Семья построила умный A-frame под Минском, а сейчас продает по цене однушки
19482
Бизнес там, где есть спрос: на аукцион выставили 10 коммерческих помещений в свежих новостройках
8694
Об этом районе Минска вы могли даже не знать. Местные о том — как живется в Щетовке
15381
Любовь длиной в 69 лет и тайная комната в подъезде. Как живет дом 130 ветеранов в центре Минска?
8789
«У меня уникальная спальня». Минчанка сделала классный ремонт в сталинке над аркой
22609
Видео этих агентов по недвижимости набирают по 50 тысяч просмотров. Что они делают?
15309
«Переезжать сюда насовсем желания нет». Узнали, как живется в брежневках в Чижовке
77681
Кредит, использование семейного капитала, уплата налогов. В каких случаях нужно вызывать профессионального оценщика недвижимости?
5891
Что такое альтернативные сделки или как переехать в квартиру побольше, не доплатив ни копейки?
9920
Минчане построили дом из двойного утепленного бруса с "подземной" баней. Съездили посмотреть, что у них получилось
64027
Нашли самую маленькую однушку в Минске с ремонтом и мебелью. И что по цене?
63440
За два участка боролись по 74 и 72 человека - и это новый рекорд! Рассказываем об итогах земельного аукциона в Минском районе
29973
Многие здесь работают в «Газпроме». Побывали в тихом поселке под Минском, о котором мало кто знает
52401
Не хватает на жилье в Минске? Собрали недорогие квартиры в городах-спутниках, где сразу можно жить
31706- Бизнес центры
- Торговые центры
- Продажа гаражи, машиноместа
- Продажа офисы, нежилые помещения
- Продажа магазины, торговые помещения
- Продажа рестораны, бары, кафе
- Продажа склады, производства
- Продажа бизнес, сфера услуг
- Аренда офиса, помещений
- Аренда магазины, торговые помещения
- Аренда рестораны, бары, кафе
- Аренда склады, производства
- Аренда сфера услуг, игровой бизнес
- Аренда гаража, машиномест









