В красивом месте и рядом с рекой. Нашли добротный дом для жизни в деревне под Минском
33740Согласитесь, хочется жить в доме, где хорошо не только внутри, но и снаружи — каждый день смотреть на завораживающую природу и наслаждаться простором в комфортных условиях. Именно такое жилье мы нашли в деревне в 20 минутах от Минска. Современный дом из бруса стоит рядом с лугом и речкой. Он полностью готов к проживанию: есть мебель, техника и коммуникации, включая газовое отопление. Посмотрите, какой он уютный. Кстати, на территории есть и баня.
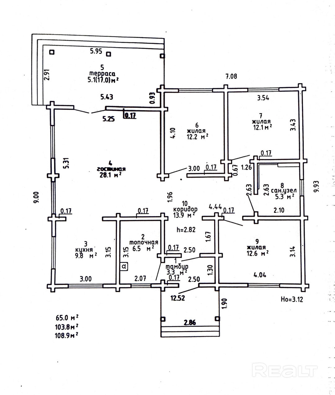
Три изолированные комнаты отведены под спальни.
Зеленая гавань — это место, где уют и природа встречаются в каждом уголке. Прогулки по лесу, свежий воздух и продуманная инфраструктура создают идеальные условия для жизни. Откройте для себя атмосферу комфорта и уюта.
Подобрать квартиру в Зеленой гавани вы можете в нашем каталоге.
В совмещенном санузле имеется душ. Отдельное помещение выделено под топочную. Отапливается дом с помощью газового котла, дополнительно установлены конвекторы. Работает многоступенчатая система фильтрации и умягчения воды. Она, кстати, поступает по центральному водопроводу. Канализация здесь — местная, септик.
Участок — крайний. За ним простирается луг и речка. До Минска около 20 минут езды. До города можно добраться и на автобусах. В соседней деревне находятся школа, детская школа искусств, магазины и др.
За дом просят 240 тысяч долларов.
Это наша новая стабильность. Что происходит с продажей квартир в Минске и что нас ждет летом
68952
Застройщики переоценили спрос на студии. Что будет с ценами на новостройки этим летом
43322
10 самых интересных минских строек жилья в 2026 году. Панельные, монолитные, элитные и эконом
18313
Ремонт за 21 месяц и 41 тысячу долларов. Посмотрите, как преобразилась хрущевка после перепланировки
10833
Новая Боровая или Зеленая гавань? Ищем квартиру для семьи, которая любит природу и комфорт
10079
В 2026 году «Жилищный баланс» планирует купить до 3000 квартир. Интервью с руководителем — о результатах и планах
11136
«Лучше по 300 рублей, но каждый месяц». Как правильно откладывать на свое жилье и копить на первый взнос?
14432
Минчанин показал, как устроен его стеклянный дом у леса: «Теплее, чем кажется»
118145
Видео этих агентов по недвижимости набирают по 50 тысяч просмотров. Что они делают?
14015
«Переезжать сюда насовсем желания нет». Узнали, как живется в брежневках в Чижовке
75835
Кредит, использование семейного капитала, уплата налогов. В каких случаях нужно вызывать профессионального оценщика недвижимости?
4768
Что такое альтернативные сделки или как переехать в квартиру побольше, не доплатив ни копейки?
8202
Минчане построили дом из двойного утепленного бруса с "подземной" баней. Съездили посмотреть, что у них получилось
64027
Нашли самую маленькую однушку в Минске с ремонтом и мебелью. И что по цене?
63440
За два участка боролись по 74 и 72 человека - и это новый рекорд! Рассказываем об итогах земельного аукциона в Минском районе
29973
Многие здесь работают в «Газпроме». Побывали в тихом поселке под Минском, о котором мало кто знает
52401
Не хватает на жилье в Минске? Собрали недорогие квартиры в городах-спутниках, где сразу можно жить
31706
Есть и за 7 тысяч. Нашли крепкие хаты до 20 тысяч долларов возле озер и леса
92290
"Когда переехали - мама заплакала". Как жили раньше и как живут сейчас в Шабанах - криминальном районе Минска 90-х
80457
До 50 тысяч долларов. Как выглядят и сколько стоят недорогие двушки в Минске, где сразу можно жить
84124- Бизнес центры
- Торговые центры
- Продажа гаражи, машиноместа
- Продажа офисы, нежилые помещения
- Продажа магазины, торговые помещения
- Продажа рестораны, бары, кафе
- Продажа склады, производства
- Продажа бизнес, сфера услуг
- Аренда офиса, помещений
- Аренда магазины, торговые помещения
- Аренда рестораны, бары, кафе
- Аренда склады, производства
- Аренда сфера услуг, игровой бизнес
- Аренда гаража, машиномест
















































