До 100 тысяч долларов. Как выглядят недорогие двушки в Минске, в которых можно сразу жить
12300Подобрали двухкомнатные квартиры, в которых сделан хороший ремонт. Большинство из них уже с техникой и мебелью. Эти двушки выставляются по бюджетной на сегодняшний день цене. Все жилье располагается в старом жилом фонде, но в районах с развитой инфраструктурой: например, рядом есть парки, учебные заведения, магазины, много транспорта, в том числе и метро. Посмотрите, как они выглядят и сколько стоят.
Недалеко от дома находятся остановки и парк. Жилье располагается между двумя станциями метро — «Площадь Победы» и «Тракторный завод». До них около 10 минут езды.
Стоимость квартиры — 79 500 долларов. Метр обойдется в 2 126 долларов.
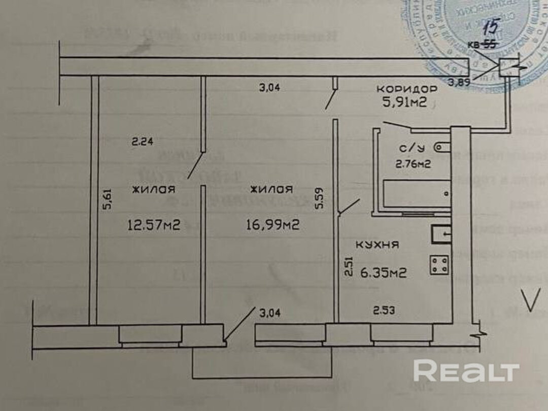
Продается жилье в пятиэтажном доме по улице Козыревская, 35/2. Его возвели в 1966 году, в 2017 провели капремонт. Двушка разместилась на третьем уровне. Ее площадь — 45 квадратов. Из этого 6 квадратных метров выделено на кухню.
Рядом с домом есть остановки транспорта, напротив — парк Серебряный Лог.
Цена двушки — 89 900 долларов. Квадратный метр обойдется в 1 998 долларов.
Квартира с двумя изолированными комнатами. Здесь сделан хороший ремонт, полностью заменена вся электрика и сантехника. В коридоре и кухне на полу лежит плитка плитка, в остальной части — ламинат. В окнах стоят стеклопакеты. Остается в квартире и бытовая техника: духовой шкаф Ariston, варочная газовая панель Maunfeld, холодильник LG, стиральная машина Electrolux и кондиционер LG.
Дом стоит недалеко от трех парков, в том числе и от зеленой зоны у Чижовского водохранилища.
Оценили жилье в 90 тысяч долларов. Таким образом, квадрат стоит 2 217 долларов.
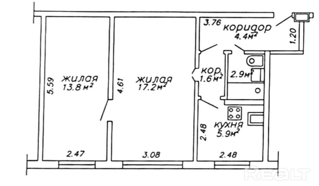
Квартира со светлым ремонтом. Тут была сделана небольшая перепланировка. Вместо коридора, который вел в кухню, владельцы сделали гардеробную. Получается, что две двери в гостиной ведут в кухню и спальню. Стены тут выровнены и окрашены, во всех комнатах на полу лежит ламинат, в санузле — плитка, сделаны натяжные потолки. В квартире есть застекленный балкон. Также закреплено место в подвале.
Поблизости прописались кинотеатр «Комсомолец» и станция метро «Партизанская».
Стоит квартира 99 тысяч долларов. Метр 2 220 долларов.
Квартира со свежим ремонтом, в котором еще никто не жил. Она обставлена техникой и мебелью. Одна из комнат — гостиная-столовая — проходная. Во второй — спальня.
В 15 минутах ходьбы находится станция метро «Пушкинская».
Цена за квартиру составляет 97 тысяч долларов. Один квадрат — 2 118 долларов.
Это наша новая стабильность. Что происходит с продажей квартир в Минске и что нас ждет летом
92327
Застройщики переоценили спрос на студии. Что будет с ценами на новостройки этим летом
56343
10 самых интересных минских строек жилья в 2026 году. Панельные, монолитные, элитные и эконом
43267
«Фиксируем завышенные цены». Что происходит с квартирами в Минске прямо сейчас
11971
«У меня уникальная спальня». Минчанка сделала классный ремонт в сталинке над аркой
29818
«Заселились 40 лет назад, уезжать не хотим». Как живется в панельках возле парка Павлова в Малиновке
21065
Телефон в рассрочку будет выгоднее, чем при оплате сразу? Смотрим обновленный салон Life в центре Минска
4424
Видео этих агентов по недвижимости набирают по 50 тысяч просмотров. Что они делают?
15309
«Переезжать сюда насовсем желания нет». Узнали, как живется в брежневках в Чижовке
77681
Кредит, использование семейного капитала, уплата налогов. В каких случаях нужно вызывать профессионального оценщика недвижимости?
5891
Что такое альтернативные сделки или как переехать в квартиру побольше, не доплатив ни копейки?
9920
Минчане построили дом из двойного утепленного бруса с "подземной" баней. Съездили посмотреть, что у них получилось
64027
Нашли самую маленькую однушку в Минске с ремонтом и мебелью. И что по цене?
63440
За два участка боролись по 74 и 72 человека - и это новый рекорд! Рассказываем об итогах земельного аукциона в Минском районе
29973
Многие здесь работают в «Газпроме». Побывали в тихом поселке под Минском, о котором мало кто знает
52401
Не хватает на жилье в Минске? Собрали недорогие квартиры в городах-спутниках, где сразу можно жить
31706
Есть и за 7 тысяч. Нашли крепкие хаты до 20 тысяч долларов возле озер и леса
92290
"Когда переехали - мама заплакала". Как жили раньше и как живут сейчас в Шабанах - криминальном районе Минска 90-х
80457
До 50 тысяч долларов. Как выглядят и сколько стоят недорогие двушки в Минске, где сразу можно жить
84124
"На нашей детской площадке собиралась вся Малиновка". Как живется в тех самых "английских" домах от МАПИДа в Минске
35883- Бизнес центры
- Торговые центры
- Продажа гаражи, машиноместа
- Продажа офисы, нежилые помещения
- Продажа магазины, торговые помещения
- Продажа рестораны, бары, кафе
- Продажа склады, производства
- Продажа бизнес, сфера услуг
- Аренда офиса, помещений
- Аренда магазины, торговые помещения
- Аренда рестораны, бары, кафе
- Аренда склады, производства
- Аренда сфера услуг, игровой бизнес
- Аренда гаража, машиномест


































































































