Завершающая стадия строительства «Гранд Кристал». Какие квартиры можно купить по скидке?
6417Год назад в тихом месте микрорайона Лебяжий началась активная стройка нового жилого комплекса «Гранд Кристал». Сегодня на этом месте уже возведен монолитный каркас, а квартиры готовы к продаже. Наша редакция побывала на стройплощадке и узнала, как продвигается строительство, какие квартиры ждут будущих владельцев и какие акционные предложения доступны прямо сейчас.
Напомним, что многоэтажка появится по улице Мястровская, между домами № 16 и № 20. Это будет монолитный дом с тремя подъездами и переменной этажностью: 12, 16 и 25 этажей. В комплексе предусмотрены 422 квартиры, а также коммерческие помещения на первом этаже и двухэтажный паркинг на 68 мест. На данный момент завершен монолитный каркас здания, а наружные стены уже заполнены газосиликатными блоками. Внутри комплекса в большинстве квартир уже установлены межкомнатные перегородки, а работы по строительству продолжаются.
Сейчас рабочие переходят к следующему этапу — утеплению лоджий. Это напрямую влияет на будущий комфорт: тепло, тишина и энергоэффективность жилья.
Как могут выглядеть квартиры?
Пока техника и люди создают основу дома, дизайнеры уже показали, каким может быть будущий интерьер. Все квартиры сдаются с черновой отделкой — это оставляет покупателям свободу формировать пространство по собственному вкусу и задачам.
Например, студию площадью 40 м² дизайнеры предлагают оформить в стиле софт-минимализма с элементами ар-деко и джапанди. Несмотря на компактные размеры квартиры, они сделали грамонтное зонирование, поиграли с фактурам — и получили цельное и просторное пространство.
Особенности дизайна этой квартиры в теплой, сбалансированной цветовой палитре с контрастными элементами. Также можно выделить темные деревянные полы, натуральный камень, зеркальные и матовые поверхности, кухню-нишу с оригинальными деталями, обеденную группу с футуристической люстрой, гостиную с крупным диваном и акцентной стеной из полированной стали.
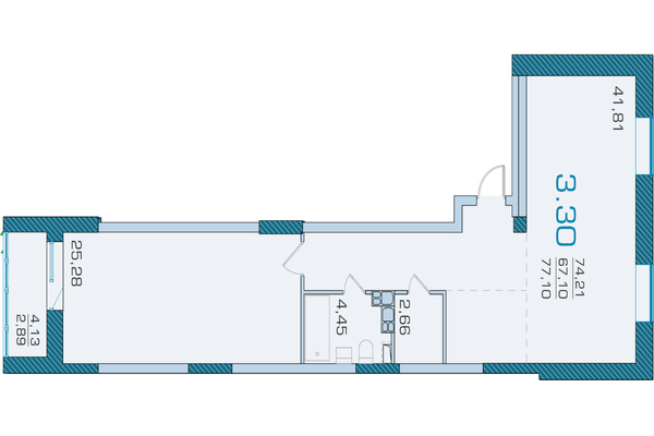
В более просторном формате — евро-трехкомнатная квартира площадью 77 квадрата и окнами на 2 стороны — дизайнеры сделали ставку на баланс материалов и геометрии.
Холод мрамора гармонирует с теплыми текстурами кожи, а хромированные акценты добавляют современности. В центре — кухня-гостиная с минимальным визуальным шумом и гладкой, «чистой» отделкой. Обеденная группа здесь выглядит как арт-объект, объединяющий пространство. Спальня, напротив, решена максимально спокойно — мягкие оттенки, натуральные материалы, ощущение приватности и тишины. Квадрат в такой квартире начинается от 5 582 BYN.
Акционное предложение
На данные планировочные решения сейчас действует скидка до 320 рублей за квадратный метр. Для рынка новостроек это заметное предложение, которое делает покупку финансово выгодной и при этом эстетически привлекательной.
Доступная программа кредитования
В ЖК «Гранд Кристал» запущена партнерская программа кредитования Белинвестбанк — «Недвижимость от партнёра». Она рассчитана на покупателей, которые хотят зафиксировать выгодную цену и войти в сделку без серьёзной финансовой нагрузки на старте.
Основные условия программы:
- Первый взнос от 10% — возможность начать покупку жилья без значительных накоплений;
- Льготная ставка — 7,34% годовых действует в первые 12 месяцев;
- С 13-го месяца ставка составит 16,5% годовых;
- Отсрочка погашения основного долга;
- Дифференцированный график погашения;
- Досрочное погашение без штрафов и комиссий;
- Срок кредитования — до 20 лет.
- Стоимость квадратного метра при привлечении кредитных средств по партнёрской программе рассчитывается индивидуально.
Дополнительную информацию о партнерской программе можно узнать на сайте у застройщика.
С выбором квартиры вам помогут специалисты ЖК: +375 (44) 745−37−64. Также вы можете оставить свои контактные данные для связи и обсуждения деталей.
Нажимая кнопку «Отправить заявку», вы понимаете, что указанные в заявке персональные данные будут предоставлены ООО «РиэлтБай» (УНП 191 179 355) для их обработки на основании абз.15 ст. 6 Закона Республики Беларусь № 99-З «О защите персональных данных» с целью заключения и исполнения договора.
Это наша новая стабильность. Что происходит с продажей квартир в Минске и что нас ждет летом
86506
Застройщики переоценили спрос на студии. Что будет с ценами на новостройки этим летом
53255
10 самых интересных минских строек жилья в 2026 году. Панельные, монолитные, элитные и эконом
36526
Красивый дом у Минского моря. Минчанин показал, как классно жить за городом
17600
«Фиксируем завышенные цены». Что происходит с квартирами в Минске прямо сейчас
8212
Вне времени и моды: усадьба в Тарасово с клинкерным фасадом, домом-баней и прудом. Побывали внутри
25215
Включить стиральную машину — это тоже работа. Как делить домашние обязанности и не ссориться из-за быта
8033
Нашли пять классных квартир, в которые уже можно заезжать. Вот как купить их, если на руках — только 10% от стоимости
9730
«Дом с потенциалом». Семья построила умный A-frame под Минском, а сейчас продает по цене однушки
10512
Видео этих агентов по недвижимости набирают по 50 тысяч просмотров. Что они делают?
15309
«Переезжать сюда насовсем желания нет». Узнали, как живется в брежневках в Чижовке
77681
Кредит, использование семейного капитала, уплата налогов. В каких случаях нужно вызывать профессионального оценщика недвижимости?
5891
Что такое альтернативные сделки или как переехать в квартиру побольше, не доплатив ни копейки?
9920
Минчане построили дом из двойного утепленного бруса с "подземной" баней. Съездили посмотреть, что у них получилось
64027
Нашли самую маленькую однушку в Минске с ремонтом и мебелью. И что по цене?
63440
За два участка боролись по 74 и 72 человека - и это новый рекорд! Рассказываем об итогах земельного аукциона в Минском районе
29973
Многие здесь работают в «Газпроме». Побывали в тихом поселке под Минском, о котором мало кто знает
52401
Не хватает на жилье в Минске? Собрали недорогие квартиры в городах-спутниках, где сразу можно жить
31706
Есть и за 7 тысяч. Нашли крепкие хаты до 20 тысяч долларов возле озер и леса
92290
"Когда переехали - мама заплакала". Как жили раньше и как живут сейчас в Шабанах - криминальном районе Минска 90-х
80457- Бизнес центры
- Торговые центры
- Продажа гаражи, машиноместа
- Продажа офисы, нежилые помещения
- Продажа магазины, торговые помещения
- Продажа рестораны, бары, кафе
- Продажа склады, производства
- Продажа бизнес, сфера услуг
- Аренда офиса, помещений
- Аренда магазины, торговые помещения
- Аренда рестораны, бары, кафе
- Аренда склады, производства
- Аренда сфера услуг, игровой бизнес
- Аренда гаража, машиномест




















