Цена квадрата от 4200 долларов. Вот какой дом строят в центре Минска
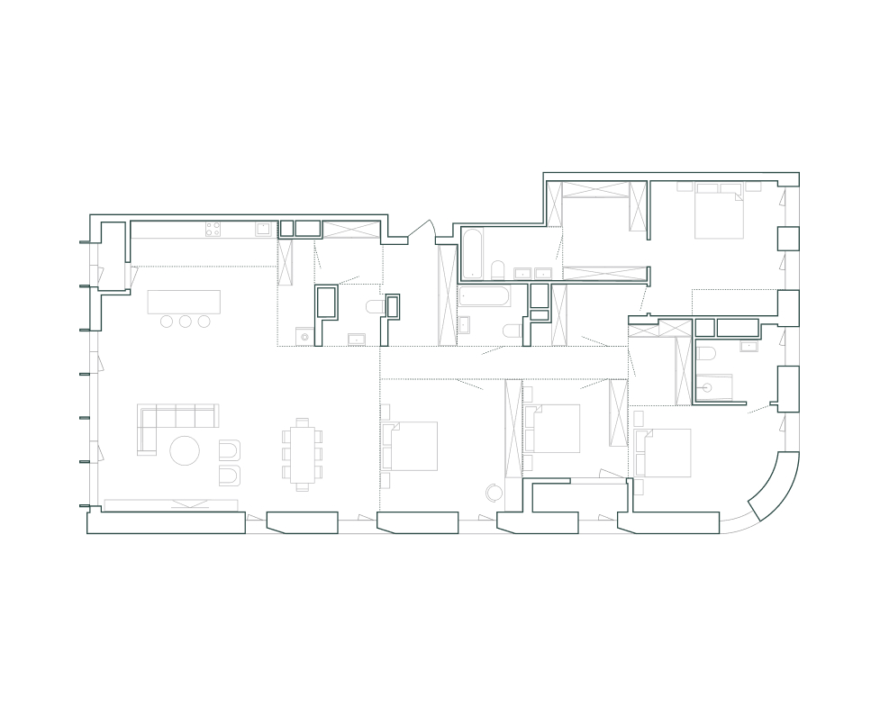
2987Квартал DEPO официально объявляет о старте продаж очередного дома. На этапе раннего бронирования в Nobili 4 открывали доступ к небольшой части жилья, а теперь покупателям будут доступны все квартиры. В том числе и те, которые ранее не демонстрировались. Рассказываем.
Цены на квартиры стартуют от 4200 долларов за квадратный метр за просторную квартиру с двумя спальнями и кухней-гостиной. Площади лотов варьируются от 92 до 228 квадратных метров. Напомним, что первый дом этой группы был полностью забронирован еще до старта продаж.
Дом будет окружен благоустроенным двором-парком, при этом в шаговой доступности останутся ресторан и пешеходная улица. Рядом с домом разместится пространство консьерж-сервиса — для повседневных запросов жителей. Дополнительное преимущество для будущих жителей — быстрый выход на улицу Киселева, набережную Свислочи и к гимназии № 50.
Сдадут дом Nobili 4 в начале 2028 года.
Это наша новая стабильность. Что происходит с продажей квартир в Минске и что нас ждет летом
88670
Застройщики переоценили спрос на студии. Что будет с ценами на новостройки этим летом
54390
10 самых интересных минских строек жилья в 2026 году. Панельные, монолитные, элитные и эконом
38966
«Фиксируем завышенные цены». Что происходит с квартирами в Минске прямо сейчас
9485
Включить стиральную машину — это тоже работа. Как делить домашние обязанности и не ссориться из-за быта
10346
Нашли пять классных квартир, в которые уже можно заезжать. Вот как купить их, если на руках — только 10% от стоимости
11933
«Дом с потенциалом». Семья построила умный A-frame под Минском, а сейчас продает по цене однушки
17835
Бизнес там, где есть спрос: на аукцион выставили 10 коммерческих помещений в свежих новостройках
7659
Видео этих агентов по недвижимости набирают по 50 тысяч просмотров. Что они делают?
15309
«Переезжать сюда насовсем желания нет». Узнали, как живется в брежневках в Чижовке
77681
Кредит, использование семейного капитала, уплата налогов. В каких случаях нужно вызывать профессионального оценщика недвижимости?
5891
Что такое альтернативные сделки или как переехать в квартиру побольше, не доплатив ни копейки?
9920
Минчане построили дом из двойного утепленного бруса с "подземной" баней. Съездили посмотреть, что у них получилось
64027
Нашли самую маленькую однушку в Минске с ремонтом и мебелью. И что по цене?
63440
За два участка боролись по 74 и 72 человека - и это новый рекорд! Рассказываем об итогах земельного аукциона в Минском районе
29973
Многие здесь работают в «Газпроме». Побывали в тихом поселке под Минском, о котором мало кто знает
52401
Не хватает на жилье в Минске? Собрали недорогие квартиры в городах-спутниках, где сразу можно жить
31706
Есть и за 7 тысяч. Нашли крепкие хаты до 20 тысяч долларов возле озер и леса
92290
"Когда переехали - мама заплакала". Как жили раньше и как живут сейчас в Шабанах - криминальном районе Минска 90-х
80457
До 50 тысяч долларов. Как выглядят и сколько стоят недорогие двушки в Минске, где сразу можно жить
84124- Бизнес центры
- Торговые центры
- Продажа гаражи, машиноместа
- Продажа офисы, нежилые помещения
- Продажа магазины, торговые помещения
- Продажа рестораны, бары, кафе
- Продажа склады, производства
- Продажа бизнес, сфера услуг
- Аренда офиса, помещений
- Аренда магазины, торговые помещения
- Аренда рестораны, бары, кафе
- Аренда склады, производства
- Аренда сфера услуг, игровой бизнес
- Аренда гаража, машиномест





