В престижном ЖК около Комаровского рынка продается стильная квартира. Вот как там внутри
22103ЖК «Престижино» от «Трайпла» расположился недалеко от первого кольца Минска и Комаровского рынка. Он состоит из четырех девятиэтажных столбиков и двух восьмиэтажек в три и четыре подъезда. Комплекс уникальный. Застройщик один из первых в городе предложил дворы без машин, огороженную территорию с постом охраны, парковки, собственные кладовые, двор с детскими площадками, пешеходными дорожками и даже фонтаном. Все это там есть. Нашли в базе Realt квартиру со стильным ремонтом, которая подойдет семье с детьми. Показываем ее.
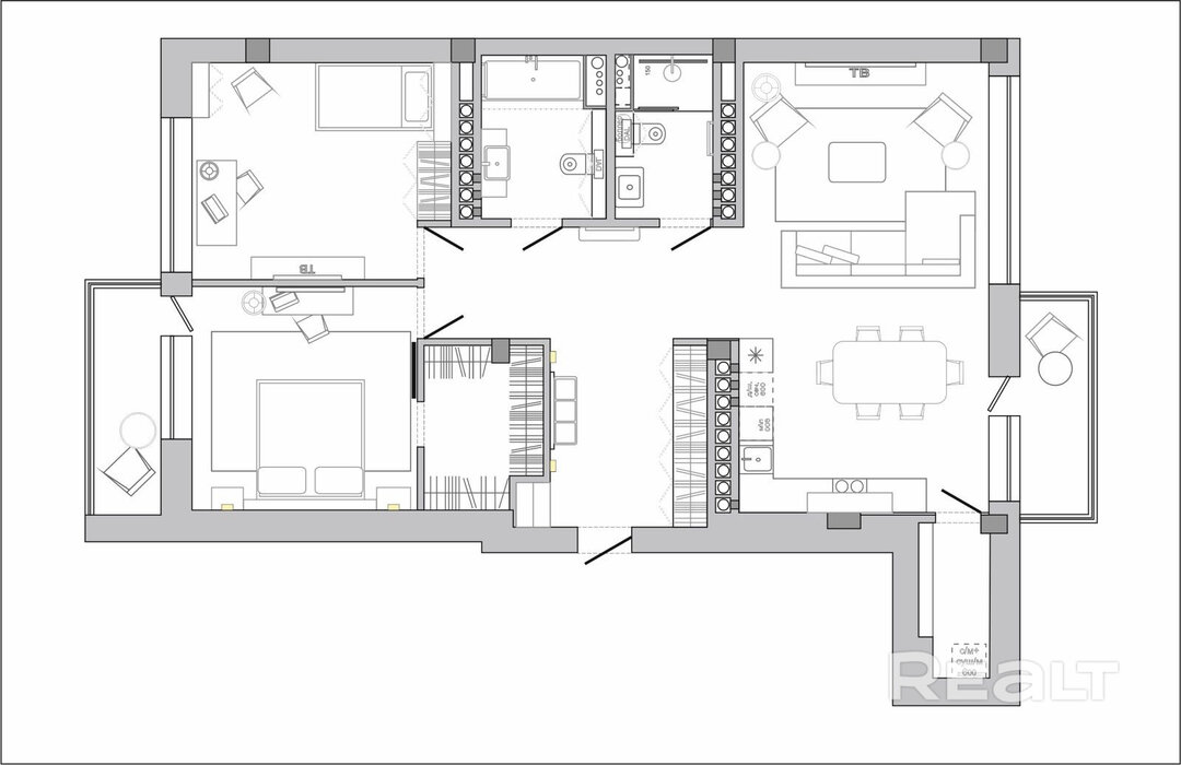
Около кухонного гарнитура разместился большой обеденный стол, а за ним — диван и ТВ-зона у стены.
В двух комнатах обустроены хозяйская спальня с гардеробной и детская.
Двор закрытый и с постом охраны. У собственников квартир есть в наличии кладовая. Хватает и парковочных мест, где посторонние не могут отставить машины.
Поблизости расположились Комсомольское озеро, район Осмоловки и Комаровский рынок.
Стоимость квартиры — 435 тысяч долларов. Цена метра — 3 829 долларов.
Это наша новая стабильность. Что происходит с продажей квартир в Минске и что нас ждет летом
90696
Застройщики переоценили спрос на студии. Что будет с ценами на новостройки этим летом
55468
10 самых интересных минских строек жилья в 2026 году. Панельные, монолитные, элитные и эконом
41443
«Фиксируем завышенные цены». Что происходит с квартирами в Минске прямо сейчас
10911
Включить стиральную машину — это тоже работа. Как делить домашние обязанности и не ссориться из-за быта
11383
Нашли пять классных квартир, в которые уже можно заезжать. Вот как купить их, если на руках — только 10% от стоимости
13140
«Дом с потенциалом». Семья построила умный A-frame под Минском, а сейчас продает по цене однушки
19624
Бизнес там, где есть спрос: на аукцион выставили 10 коммерческих помещений в свежих новостройках
8814
Об этом районе Минска вы могли даже не знать. Местные о том — как живется в Щетовке
15549
Любовь длиной в 69 лет и тайная комната в подъезде. Как живет дом 130 ветеранов в центре Минска?
9180
«У меня уникальная спальня». Минчанка сделала классный ремонт в сталинке над аркой
24998
«Заселились 40 лет назад, уезжать не хотим». Как живется в панельках возле парка Павлова в Малиновке
7350
Видео этих агентов по недвижимости набирают по 50 тысяч просмотров. Что они делают?
15309
«Переезжать сюда насовсем желания нет». Узнали, как живется в брежневках в Чижовке
77681
Кредит, использование семейного капитала, уплата налогов. В каких случаях нужно вызывать профессионального оценщика недвижимости?
5891
Что такое альтернативные сделки или как переехать в квартиру побольше, не доплатив ни копейки?
9920
Минчане построили дом из двойного утепленного бруса с "подземной" баней. Съездили посмотреть, что у них получилось
64027
Нашли самую маленькую однушку в Минске с ремонтом и мебелью. И что по цене?
63440
За два участка боролись по 74 и 72 человека - и это новый рекорд! Рассказываем об итогах земельного аукциона в Минском районе
29973
Многие здесь работают в «Газпроме». Побывали в тихом поселке под Минском, о котором мало кто знает
52401- Бизнес центры
- Торговые центры
- Продажа гаражи, машиноместа
- Продажа офисы, нежилые помещения
- Продажа магазины, торговые помещения
- Продажа рестораны, бары, кафе
- Продажа склады, производства
- Продажа бизнес, сфера услуг
- Аренда офиса, помещений
- Аренда магазины, торговые помещения
- Аренда рестораны, бары, кафе
- Аренда склады, производства
- Аренда сфера услуг, игровой бизнес
- Аренда гаража, машиномест



































