В этой минской новостройке предлагают недорогие квартиры с отделкой и без. Рассказываем, что это за дом
16715В конце прошлого года рядом со станцией метро «Пролетарская» сдали новый жилой дом. Во время стройки квартиры в высотке на 19 этажей в свободную продажу не поступали (жилье распределили среди сотрудников МЧС). Зато сейчас, когда дом уже ввели в эксплуатацию, на вторичке начали появляться квартиры от собственников. Сейчас в неплохом месте, рядом с Антоновским парком, продается сразу 4 квартиры. Рассказываем.
Жилой дом на 19 этажей и 132 квартиры начали строить в марте 2024-го, а планировали завершить в июле 2025-го. Однако спустя несколько месяцев после старта строительство встало на паузу. При забивке пробных свай выявилось их недостаточное погружение, а при проведении дополнительных инженерно-геологических изысканий исследуемые грунты не показали необходимую несущую способность. Из-за корректировок проекта дом сдали на полгода позже.
Что тут продается?
Сейчас в доме ищут новых жильцов сразу 4 квартиры. Отметим, что расставаться с льготными квартирами сразу после сдачи домов в эксплуатацию — абсолютно законно.
Самый недорогой вариант — однокомнатная квартира с отделкой. Жилье располагается на 14-м этаже. Из окон открывается панорамный вид на город и Антоновский парк. Общая площадь однушки составляет 44 квадратных метров. Планировка состоит из большой кухни, 17-метровой комнаты, просторного коридора и совмещенного санузла. Высота потолков в квартире — 2.66 метра. В жилье уже сделан стандартный ремонт от застройщика. На полу — линолеум и плитка, на стенах — обои. На кухне есть раковина, а в ванной — вся необходимая сантехника. Лоджия в квартире — застекленная. Стоит квартира 94,9 тысячи долларов (2118 долларов — за метр).
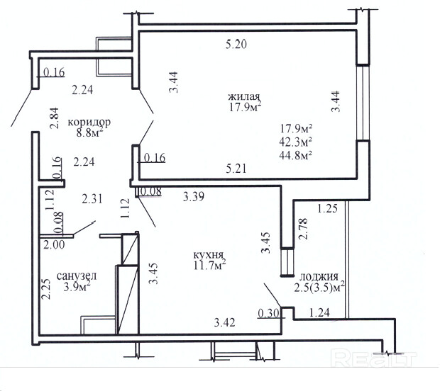
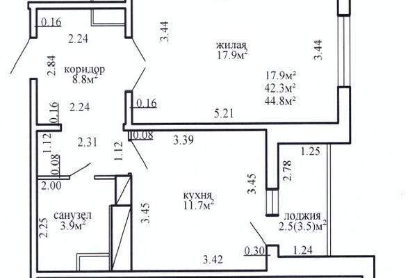
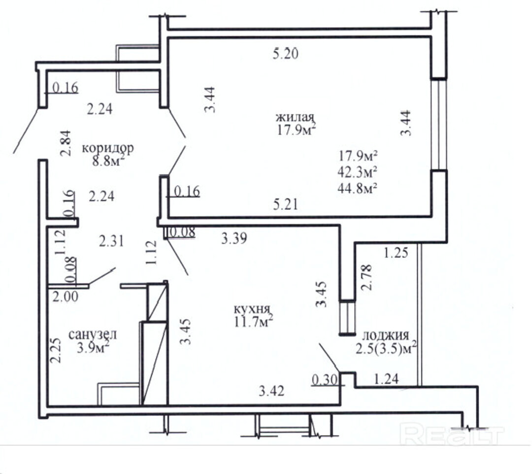
Второй вариант — двухкомнатная квартира без ремонта. Это жилье расположено на 18-м этаже 19-этажного дома. Внутри — только строительная отделка. Общая площадь квартиры составляет 56 квадратных метров. Жилье состоит из коридора, раздельного санузла, просторной кухни и двух отдельных комнат. Из окон открывается вид на город. Стоимость квартиры — 117,5 тысячи долларов (2065 долларов — за метр).
В продаже также есть аналогичная двушка, но с ремонтом от застройщика. Эта квартира площадью 60 квадратных метров располагается на 7-м этаже. Из окон открывается панорамный вид на город и Антоновский парк. Планировка состоит из коридора, раздельного санузла, просторной кухни и двух отдельных комнат. Внутри — аккуратный ремонт от застройщика. На полу — линолеум и плитка, на стенах — обои. На кухне есть раковина, а в ванной — сантехника. Продают такую квартиру за 122,9 тысячи долларов (2025 долларов — за метр).
Если интересует квартира побольше, то среди вариантов имеется и трешка. Жилье на 3-м этаже предлагается со строительной отделкой. Площадь этой квартиры составляет 78 квадратных метров. Все комнаты в квартире — раздельные, к тому же тут есть кладовая. А стоит трешка 140 тысяч долларов (1774 доллара — за метр).
Читайте также:
Эту высотку около метро уже начал строить УКС Советского район. Рядом будет гараж-стоянка
Кажется, очередники игнорируют этот ЖК. Посмотрели, как строятся «Петровские верфи»
Это наша новая стабильность. Что происходит с продажей квартир в Минске и что нас ждет летом
92352
Застройщики переоценили спрос на студии. Что будет с ценами на новостройки этим летом
56353
10 самых интересных минских строек жилья в 2026 году. Панельные, монолитные, элитные и эконом
43284
«Фиксируем завышенные цены». Что происходит с квартирами в Минске прямо сейчас
11991
«У меня уникальная спальня». Минчанка сделала классный ремонт в сталинке над аркой
29818
«Заселились 40 лет назад, уезжать не хотим». Как живется в панельках возле парка Павлова в Малиновке
21066
Телефон в рассрочку будет выгоднее, чем при оплате сразу? Смотрим обновленный салон Life в центре Минска
4480
Видео этих агентов по недвижимости набирают по 50 тысяч просмотров. Что они делают?
15309
«Переезжать сюда насовсем желания нет». Узнали, как живется в брежневках в Чижовке
77681
Кредит, использование семейного капитала, уплата налогов. В каких случаях нужно вызывать профессионального оценщика недвижимости?
5891
Что такое альтернативные сделки или как переехать в квартиру побольше, не доплатив ни копейки?
9920
Минчане построили дом из двойного утепленного бруса с "подземной" баней. Съездили посмотреть, что у них получилось
64027
Нашли самую маленькую однушку в Минске с ремонтом и мебелью. И что по цене?
63440
За два участка боролись по 74 и 72 человека - и это новый рекорд! Рассказываем об итогах земельного аукциона в Минском районе
29973
Многие здесь работают в «Газпроме». Побывали в тихом поселке под Минском, о котором мало кто знает
52401
Не хватает на жилье в Минске? Собрали недорогие квартиры в городах-спутниках, где сразу можно жить
31706
Есть и за 7 тысяч. Нашли крепкие хаты до 20 тысяч долларов возле озер и леса
92290
"Когда переехали - мама заплакала". Как жили раньше и как живут сейчас в Шабанах - криминальном районе Минска 90-х
80457
До 50 тысяч долларов. Как выглядят и сколько стоят недорогие двушки в Минске, где сразу можно жить
84124
"На нашей детской площадке собиралась вся Малиновка". Как живется в тех самых "английских" домах от МАПИДа в Минске
35883- Бизнес центры
- Торговые центры
- Продажа гаражи, машиноместа
- Продажа офисы, нежилые помещения
- Продажа магазины, торговые помещения
- Продажа рестораны, бары, кафе
- Продажа склады, производства
- Продажа бизнес, сфера услуг
- Аренда офиса, помещений
- Аренда магазины, торговые помещения
- Аренда рестораны, бары, кафе
- Аренда склады, производства
- Аренда сфера услуг, игровой бизнес
- Аренда гаража, машиномест



















































