Самые бюджетные однушки в Минске стоят до 62 тысяч долларов. Вот они
15329Выбрали пять однокомнатных квартир в Минске по самой бюджетной цене — до 62 тысяч долларов. В некоторых можно жить после покупки, два варианта идут под ремонт, там сделан демонтаж старых отделочных материалов. Показываем, как выглядят эти однушки.
Пятиэтажный дом на Партизанском проспекте, 29А был построен в 1974 году, а в 2021-м здесь прошел капремонт. На четвертом уровне выставлена на продажу квартира в 22,22 м². Площадь кухни — 5,23 м².
Кстати, эту квартиру, как и остальные квартиры на Realt, можно купить в лизинг. Получить индивидуальную консультацию от специалистов можно вот здесь.
Дом стоит рядом с Антоновским парком. В шаговой доступности располагается станция метро «Пролетарская».
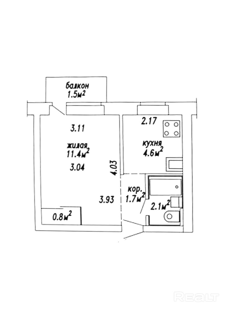
Цена квартиры — 61 900 долларов. Стоимость метра — 2 786 долларов.
Жилье выглядит неплохо, местами нуждается в обновлении. В комнате есть выход на балкон, на месте ниши сделан шкаф. Установлен кондиционер.
Недалеко от дома находится остановка, ТРЦ Palazzo, в нескольких остановках — станция метро «Пушкинская».
Стоимость однушки — 58 тысяч долларов, а одного метра — 2 624 доллара.
Дом стоит около Серебрянского парка, парка имени Н.Г. Грековой и Чижовского водохранилища. Недалеко находятся магазины, остановки, в том числе трамвайные. 15 минут — и вы около станции метро «Партизанская».
Квартира обойдется в 59 800 долларов. Метр — 1 767 долларов.
Рядом есть магазины, остановки. В пяти минутах езды расположена станция метро «Могилевская».
Обойдется квартира в 60 тысяч долларов. Цена метра — 1 818 долларов.
В 15 минутах ходьбы находятся парк 900-летия Минска, Чижовка-Арена, зоопарк и дельфинарий.
Стоит квартира 59 900 долларов. Цена метра — 2 083 доллара.
Читайте также:
Милый деревенский домик с баней в удобной локации. Просят меньше 30 тысяч долларов
Современный домик в деревне по цене двушки. Нашли такой в 40 км от Минска
Это наша новая стабильность. Что происходит с продажей квартир в Минске и что нас ждет летом
85315
Застройщики переоценили спрос на студии. Что будет с ценами на новостройки этим летом
52634
10 самых интересных минских строек жилья в 2026 году. Панельные, монолитные, элитные и эконом
35227
Красивый дом у Минского моря. Минчанин показал, как классно жить за городом
16815
«Фиксируем завышенные цены». Что происходит с квартирами в Минске прямо сейчас
7077
Овощи так и попрут: как и из чего лучше сделать высокие грядки. Изучили опыт
15568
Вне времени и моды: усадьба в Тарасово с клинкерным фасадом, домом-баней и прудом. Побывали внутри
22221
Включить стиральную машину — это тоже работа. Как делить домашние обязанности и не ссориться из-за быта
1754
Видео этих агентов по недвижимости набирают по 50 тысяч просмотров. Что они делают?
15309
«Переезжать сюда насовсем желания нет». Узнали, как живется в брежневках в Чижовке
77681
Кредит, использование семейного капитала, уплата налогов. В каких случаях нужно вызывать профессионального оценщика недвижимости?
5862
Что такое альтернативные сделки или как переехать в квартиру побольше, не доплатив ни копейки?
9920
Минчане построили дом из двойного утепленного бруса с "подземной" баней. Съездили посмотреть, что у них получилось
64027
Нашли самую маленькую однушку в Минске с ремонтом и мебелью. И что по цене?
63440
За два участка боролись по 74 и 72 человека - и это новый рекорд! Рассказываем об итогах земельного аукциона в Минском районе
29973
Многие здесь работают в «Газпроме». Побывали в тихом поселке под Минском, о котором мало кто знает
52401
Не хватает на жилье в Минске? Собрали недорогие квартиры в городах-спутниках, где сразу можно жить
31706
Есть и за 7 тысяч. Нашли крепкие хаты до 20 тысяч долларов возле озер и леса
92290
"Когда переехали - мама заплакала". Как жили раньше и как живут сейчас в Шабанах - криминальном районе Минска 90-х
80457
До 50 тысяч долларов. Как выглядят и сколько стоят недорогие двушки в Минске, где сразу можно жить
84124- Бизнес центры
- Торговые центры
- Продажа гаражи, машиноместа
- Продажа офисы, нежилые помещения
- Продажа магазины, торговые помещения
- Продажа рестораны, бары, кафе
- Продажа склады, производства
- Продажа бизнес, сфера услуг
- Аренда офиса, помещений
- Аренда магазины, торговые помещения
- Аренда рестораны, бары, кафе
- Аренда склады, производства
- Аренда сфера услуг, игровой бизнес
- Аренда гаража, машиномест










































































