Помните про эти яркие панельки с недорогим квадратом? Вот сколько там сейчас стоят квартиры
659Жилой комплекс «Антоновский квартал», который сдали больше года назад, заметно оживил район Пролетарки. Возведение панельного комплекса с коммерческими квартирами стартовало в 2020-м и продлилось около 4 лет. Кстати, несколько однушек, двушек и трешек в новостройках все еще ищут хозяев. Есть варианты без отделки от застройщика и с ремонтом от собственников. Посмотрим, почем тут предлагают жилье.
Яркие новостройки «Антоновского квартала» возводила компания «БелаТЭП», генеральным подрядчиком проекта выступал «МАПИД». Ранее на участке, спрятанном на тихой улице Рыбалко, располагались производственные здания.
Надо сказать, что локация у ЖК — весьма перспективная, ведь город запланировал для этого микрорайона немало преобразований. Старая производственная застройка будет постепенно уступать место жилым и административным зданиям. А находящийся рядом с ЖК Антоновский парк уже подвергся обновлению. Также поблизости есть детские сады, школы, магазины, бассейн, кинотеатр и станция метро «Пролетарская».
Три года назад цены на квартиры в квартале начинались от 1130 долларов (в первых очередях они были даже еще ниже), но к окончанию строительства стоимость квадрата выросла.
Если вас заинтересовал этот комплекс, то свободные квартиры без отделки в сданных домах еще есть. Так, на сайте застройщика еще «висят» 3 однушки и 1 двушка. Однокомнатные квартиры площадью 38−45 квадратов предлагаются по 86−103 тысячи долларов (2300 долларов − за метр). Также в продаже есть двухкомнатная квартира площадью 60 квадратных метров. Ее предлагают за 138 тысяч долларов (2300 долларов — за метр).
Что тут продается на вторичке?
Сейчас здесь продается 4 квартиры от собственников. Все варианты с готовыми ремонтами, мебелью и техникой.
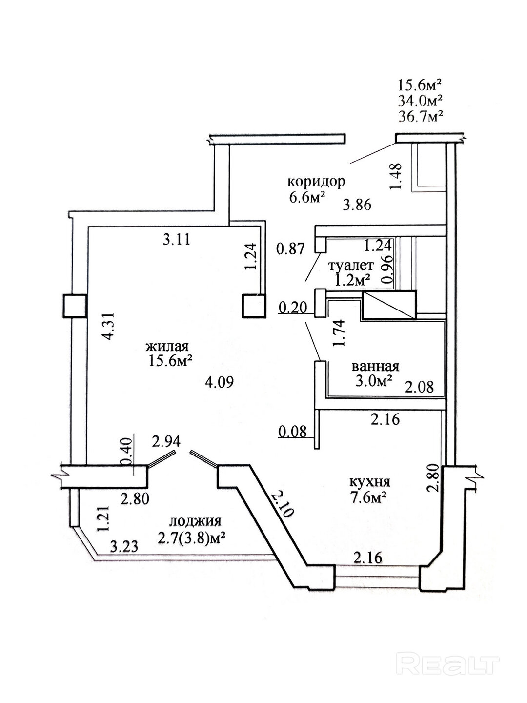
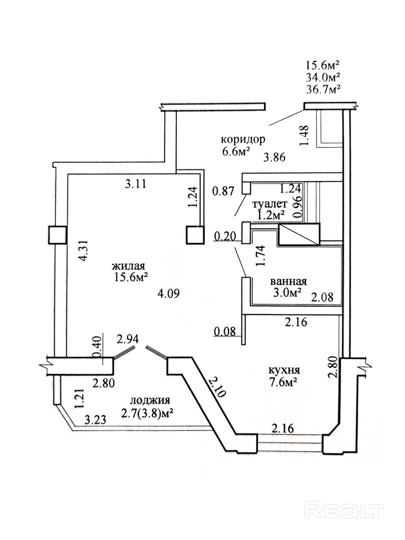
Самое недорогое предложение — компактная однокомнатная квартира площадью 36 квадратных метров. Жилье состоит из небольшой кухни и жилой комнаты, совмещающей функции гостиной и спальни. В квартире на 15-м этаже сделан современный ремонт, из панорамных окон открываются великолепные виды на окрестности. Стоимость — 297 тысяч рублей, или 104,9 тысячи долларов (8096 рублей, или 2858 долларов — за метр).
Следующее предложение — двухкомнатная квартира общей площадью 63 квадратных метра. Жилье находится на 5-м этаже. Двушка состоит из кухни-гостиной и двух спальных комнат. В жилье уже сделан ремонт. Стоимость — 381 тысяча рублей, или 134 тысячи долларов (5972 рублей, или 2108 долларов — за метр).
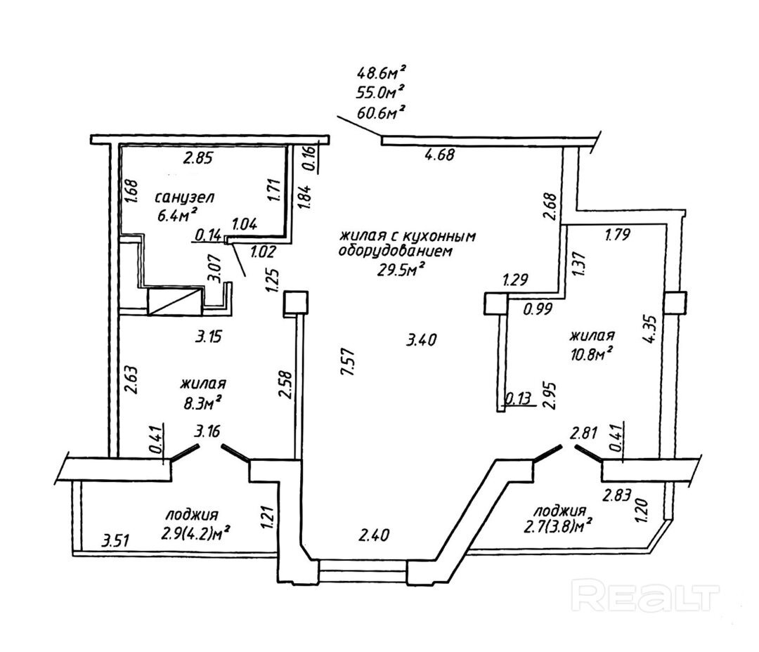
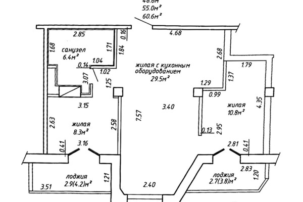
Еще одна квартира — евротрешка. Это жилье расположено на 4-м этаже и имеет площадь в 60 квадратных метров. Планировка в квартире такая: кухня-гостиная и две спальни. Внутри — качественный дорогостоящий ремонт, мебель, техника и санузел с мини-сауной. Стоимость — 461 тысяча рублей, или 163 тысячи долларов (7620 рублей, или 2690 долларов — за метр).
Самое дорогое предложение — трехкомнатная квартира площадью 75 квадратных метров, расположенная на 1-м этаже. В квартире сделан хороший ремонт и есть все необходимое для проживания. Жилье состоит из большой кухни, просторной гостиной и двух спальных комнат. В квартире продуманы вместительные шкафы и места хранения. Трешка продается с мебелью. Стоимость — 543 тысячи рублей, или 191,9 тысячи долларов (7219 рублей, или 2548 долларов — за метр).
Читайте также:
Это наша новая стабильность. Что происходит с продажей квартир в Минске и что нас ждет летом
86344
Застройщики переоценили спрос на студии. Что будет с ценами на новостройки этим летом
53171
10 самых интересных минских строек жилья в 2026 году. Панельные, монолитные, элитные и эконом
36415
Красивый дом у Минского моря. Минчанин показал, как классно жить за городом
17516
«Фиксируем завышенные цены». Что происходит с квартирами в Минске прямо сейчас
8140
Вне времени и моды: усадьба в Тарасово с клинкерным фасадом, домом-баней и прудом. Побывали внутри
25140
Включить стиральную машину — это тоже работа. Как делить домашние обязанности и не ссориться из-за быта
7924
Нашли пять классных квартир, в которые уже можно заезжать. Вот как купить их, если на руках — только 10% от стоимости
9256
«Дом с потенциалом». Семья построила умный A-frame под Минском, а сейчас продает по цене однушки
8162
Видео этих агентов по недвижимости набирают по 50 тысяч просмотров. Что они делают?
15309
«Переезжать сюда насовсем желания нет». Узнали, как живется в брежневках в Чижовке
77681
Кредит, использование семейного капитала, уплата налогов. В каких случаях нужно вызывать профессионального оценщика недвижимости?
5891
Что такое альтернативные сделки или как переехать в квартиру побольше, не доплатив ни копейки?
9920
Минчане построили дом из двойного утепленного бруса с "подземной" баней. Съездили посмотреть, что у них получилось
64027
Нашли самую маленькую однушку в Минске с ремонтом и мебелью. И что по цене?
63440
За два участка боролись по 74 и 72 человека - и это новый рекорд! Рассказываем об итогах земельного аукциона в Минском районе
29973
Многие здесь работают в «Газпроме». Побывали в тихом поселке под Минском, о котором мало кто знает
52401
Не хватает на жилье в Минске? Собрали недорогие квартиры в городах-спутниках, где сразу можно жить
31706
Есть и за 7 тысяч. Нашли крепкие хаты до 20 тысяч долларов возле озер и леса
92290
"Когда переехали - мама заплакала". Как жили раньше и как живут сейчас в Шабанах - криминальном районе Минска 90-х
80457- Бизнес центры
- Торговые центры
- Продажа гаражи, машиноместа
- Продажа офисы, нежилые помещения
- Продажа магазины, торговые помещения
- Продажа рестораны, бары, кафе
- Продажа склады, производства
- Продажа бизнес, сфера услуг
- Аренда офиса, помещений
- Аренда магазины, торговые помещения
- Аренда рестораны, бары, кафе
- Аренда склады, производства
- Аренда сфера услуг, игровой бизнес
- Аренда гаража, машиномест





















































