С дубовым паркетом и большой кухней. Готовая сталинка с хорошей ценой для центра Минска
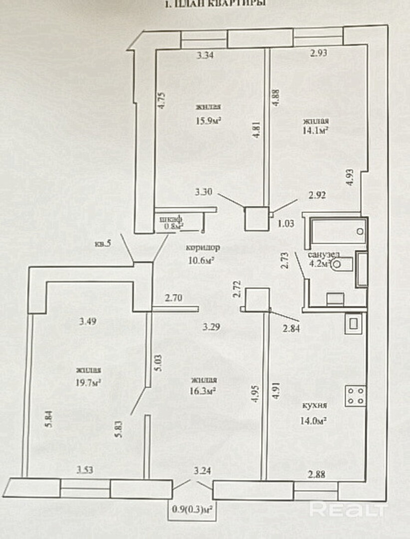
288Эта сталинка практически смотрит на улицу Карла Маркса, в пешей доступности — главный проспект Минска. Четырехкомнатная квартира занимает 96 квадратов и готова к проживанию. Тут сделан сдержанный интерьер, стоит хорошая мебель и сохранен дубовый паркет из прошлого века. Рассказываем, сколько стоит такое жилье.
Оставить автомобиль можно во дворе. В пешей доступности располагаются рестораны, кафе и исторический центр. За 5−10 минут можно дойти до станции метро «Площадь Ленина», ТЦ «Столица» и ГУМа.
Оценили квартиру в 836 994 рубля (298 500 долларов). Получается, один квадратный метр обойдется в 8 754 рубля (3 122 долларов).
Читайте также:
В Каменной Горке участок вдоль МКАД город планирует застраивать. Что там будет?
Нашли недорогие однушки с ремонтом около парков в Минске
Это наша новая стабильность. Что происходит с продажей квартир в Минске и что нас ждет летом
87738
Застройщики переоценили спрос на студии. Что будет с ценами на новостройки этим летом
53915
10 самых интересных минских строек жилья в 2026 году. Панельные, монолитные, элитные и эконом
37903
«Фиксируем завышенные цены». Что происходит с квартирами в Минске прямо сейчас
8921
Включить стиральную машину — это тоже работа. Как делить домашние обязанности и не ссориться из-за быта
9592
Нашли пять классных квартир, в которые уже можно заезжать. Вот как купить их, если на руках — только 10% от стоимости
11324
«Дом с потенциалом». Семья построила умный A-frame под Минском, а сейчас продает по цене однушки
16637
Бизнес там, где есть спрос: на аукцион выставили 10 коммерческих помещений в свежих новостройках
6973
Видео этих агентов по недвижимости набирают по 50 тысяч просмотров. Что они делают?
15309
«Переезжать сюда насовсем желания нет». Узнали, как живется в брежневках в Чижовке
77681
Кредит, использование семейного капитала, уплата налогов. В каких случаях нужно вызывать профессионального оценщика недвижимости?
5891
Что такое альтернативные сделки или как переехать в квартиру побольше, не доплатив ни копейки?
9920
Минчане построили дом из двойного утепленного бруса с "подземной" баней. Съездили посмотреть, что у них получилось
64027
Нашли самую маленькую однушку в Минске с ремонтом и мебелью. И что по цене?
63440
За два участка боролись по 74 и 72 человека - и это новый рекорд! Рассказываем об итогах земельного аукциона в Минском районе
29973
Многие здесь работают в «Газпроме». Побывали в тихом поселке под Минском, о котором мало кто знает
52401
Не хватает на жилье в Минске? Собрали недорогие квартиры в городах-спутниках, где сразу можно жить
31706
Есть и за 7 тысяч. Нашли крепкие хаты до 20 тысяч долларов возле озер и леса
92290
"Когда переехали - мама заплакала". Как жили раньше и как живут сейчас в Шабанах - криминальном районе Минска 90-х
80457
До 50 тысяч долларов. Как выглядят и сколько стоят недорогие двушки в Минске, где сразу можно жить
84124- Бизнес центры
- Торговые центры
- Продажа гаражи, машиноместа
- Продажа офисы, нежилые помещения
- Продажа магазины, торговые помещения
- Продажа рестораны, бары, кафе
- Продажа склады, производства
- Продажа бизнес, сфера услуг
- Аренда офиса, помещений
- Аренда магазины, торговые помещения
- Аренда рестораны, бары, кафе
- Аренда склады, производства
- Аренда сфера услуг, игровой бизнес
- Аренда гаража, машиномест
























