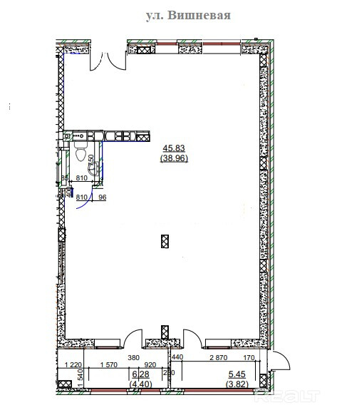
Аренда Торговое помещение Брест, ул. Сикорского 31, площадь 80,2 кв.м
2 966 - 2 974 р.
37 - 40 р.≈ 13 - 14 $ за м²
Тип
Площадь
Этаж
Описание
Аренда Торговое помещение Брест, ул. Сикорского 31, площадь 80,2 кв.м. Назначение – Торговое помещение
Первый этаж многоквартирного жилого дома, отдельный вход.
Центральное месторасположение, удобный доступ.
Открытая планировка пространства.
Достаточная парковка.
Раздельный санузел.
Холодное/горячее водоснабжение.
Индивидуальные приборы учёта электроэнергии 15 кВт, водоснабжения и тепла.
Высокоскоростной интернет/оптоволокно.
Черновая отделка
Круглосуточный доступ в здание.
Окна и двери профиль ПВХ.
Оборудована пожарная сигнализация
Высота помещения 3 м.
Плотная коммерческая и жилая застройка, развитая инфраструктура.
Ставка аренды 11 е./кв.м., НДС нет.
Узнавайте первыми о свободных площадях!
Подписывайтесь на наш телеграмм-канал arendabre
Договор 1/2А от 10.01.2026 года
Лицензия 02240/269 выдана МЮ РБ от 21 марта 2014 года.
Параметры объекта
- Тип объекта
Торговое помещение
- Площадь общая
38.96 - 45.83 м²
- Этаж / этажность
1 / 9
- Раздельных помещений
1 - 2
- Материал стен
Кирпичный
- Высота потолков
3 м
- Отопление
Есть
- Электроснабжение
Есть
- Естественное освещение
Есть
- Вода
Есть
- Санузел
Есть
- Парковка
Есть
- НДС
НДС нет (0%)
- Расположение
В жилом доме
- Номер договора
1/2а от 09.01.2026
Примечание
Местоположение
- Область
- Район
- Населенный пункт
- Улица
- Номер дома
70
- Район города
- Координаты
52.0946, 23.7163
