Дом под отделку в д. Велюнь Брестского района
193 602 р.
Тип
Участок
Общая
Жилая
Описание
Отличный дом под отделку в д. Велюнь Чернинского сельсовета.
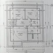
Предлагаем купить дом 2024 года постройки площадью 1-го этажа 113 м2, где удобно размещены кухня 14,3 м2, просторная гостиная 26,4 м2 с выходом на террасу, две уютные изолированные спальни, раздельный санузел, большая гардеробная и вспомогательные помещения. Мансардный этаж позволяет обустроить три полноценные комнаты с кладовой и санузлом.
Характеристики: стены из газосиликатного блока оштукатурены, утепление – пенополистирол, материал кровли - металлочерепица, фундамент ленточный монолитный, материал – бетон, стяжка пола черновая, окна и входная дверь ПВХ.
Коммуникации: газ централизованный подведен к дому, водоснабжение – скважина, электричество - централизованное, по всему дому сделана разводка с возможностью различного освещения, канализация - автономная.
Дом расположен на высоком и подсыпанном участке площадью 13,3 соток правильной прямоугольной формы, размеры и форма которого позволяет удачно расположить на нём гараж, баню и другие хозяйственные постройки либо применить иные дизайнерские решения.
Параметры объекта
- Тип объекта
Дом
- Площадь участка
13.3 соток
- Площадь общая
180 м²
- Площадь жилая
113 м²
- Площадь кухни
14.3 м²
- Уровней в доме
2
- Год постройки
2024
- Материал стен
Силикатные блоки
- Материал крыши
Черепица
- Газ
Магистральный
- Канализация
Местная
- Электроснабжение
Есть
- Вода
Скважина
- Статус земли
Частная собственность
- Условия продажи
Чистая продажа
- Номер договора
291/2 от 28.10.2024
Примечание
Местоположение
- Область
- Район
- Населенный пункт
- Улица
- Сельсовет
Чернинский с/с
- Координаты
52.178698373, 23.838378185
