Купить 3-комнатную квартиру, г. Брест, ул. Бориса Маслова, 1
240 000 р.
3 109 р.≈ 1 123 $ за м²
Чистая продажа
Следить за ценой
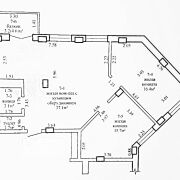
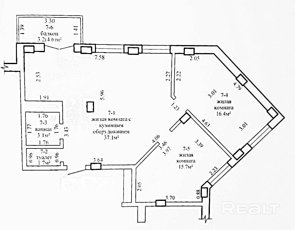
77.2 м²
Общая
32.1 м²
Жилая
37.1 м²
Кухня
2 из 10
Этаж
11.11.2025ID 3941683
Параметры объекта
- Количество комнат
3
- Раздельных комнат
2
- Площадь общая
77.2 м²
- Площадь жилая
32.1 м²
- Площадь кухни
37.1 м²
- Площадь балконов
3.2 м²
- Площадь по СНБ
78.6 м²
- Год постройки
2024
- Этаж / этажность
2 / 10
- Число уровней
1
- Тип дома
Монолитный
- Планировка
Свободная планировка
- Балкон
Лоджия
- Ремонт
Без отделки
- Высота потолков
2.7 м
- Санузел
Раздельный
- Стоянка автомобиля
Есть
- Собственность
Частная
- Условия продажи
Чистая продажа
- Вид из окон
На улицу, Лес, Парк
Удобства
Лифт
Продавец
Александра
Контактное лицо
Примечание
В продаже евротрешка в м-не Вульке. Небольшая удаленность от центра. Рядом строится школа, торговый центр. Зеленая зона. Без отделки, стоит полтенцесушитель и унитаз.
Местоположение
- Область
- Район
- Населенный пункт
- Улица
- Номер дома
1
- Район города
- Координаты
52.0619, 23.7053
