Торговые помещения, здание складов
4 644 288 р.
Тип
Площадь
Этаж
Описание
Торговые помещения, здание складов
г. Пинск, ул. Красноармейская, 18 к
Общая площадь: 3 537.6 м2
Земельные участки (право постоянного пользования): 0.4151 га
Покупатель не оплачивает услуги риэлтерской организации!
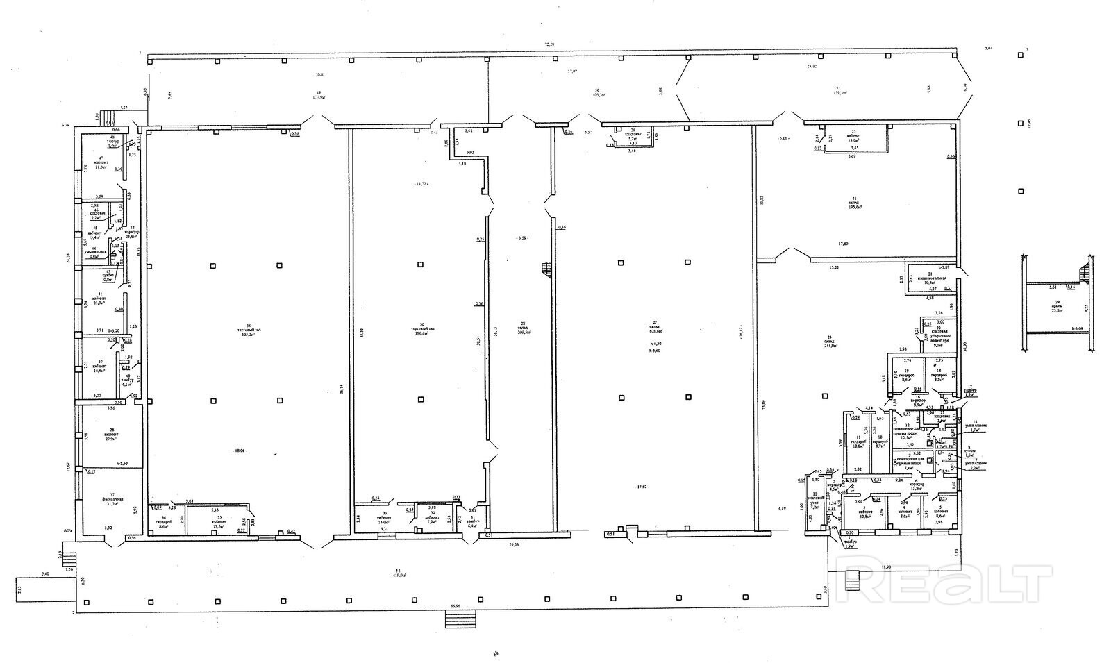
Здание складов в продажу готового арендного бизнеса расположено в Брестской области, г. Пинск, ул. Красноармейская 18к.
Капитальное строение состоит из : административные помещения площадью 294,2 м2, торговые помещения 1086,7 м2, складские помещения площадью 2156,7 м2. Земельный участок 0,4151 га.
На данный момент заселено арендаторами с действующими долгосрочными договорами аренды (Светофор, Кока-Кола, ТД Лагуна и др.)
Отделка, необходимые коммуникации. Выгодная локация.
Доходность 15% годовых в валюте.
Параметры объекта
- Тип объекта
Склад+офис
- Площадь участка
41.51 сотки
- Площадь общая
3537.60 м²
- Этаж / этажность
1 / 1
- Электроснабжение
Есть
- Принадлежность объекта
Частная
- НДС
НДС включен
- Юридический адрес
Да
- Номер договора
5/3 от 09.02.2025
ООО "Сильван-Инвест"
Контактное лицо
Примечание
Местоположение
- Область
- Район
- Населенный пункт
- Улица
- Номер дома
18/к
- Координаты
52.1196, 26.0406
