Снять торговое помещение, г. Гомель, ул. Кожара, 1/671
25 - 30 р./м²
Аренда
Следить за ценой
Торговое помещение
Тип
20 - 100 м²
Площадь
2 из 2
Этаж
29.05.2025ID 3366540
Параметры объекта
- Тип объекта
Торговое помещение
- Площадь общая
20 - 100 м²
- Этаж / этажность
2 / 2
- Раздельных помещений
1 - 3
- Материал стен
Кирпичный
- Высота потолков
4 м
- Ремонт
Хороший
- Отопление
Есть
- Электроснабжение
Есть
- Естественное освещение
Есть
- Вода
Есть
- Санузел
Есть
- Количество телефонов
2 телефона
- Парковка
Есть
- Принадлежность объекта
Частная
- НДС
НДС включен
- Расположение
В торговом центре
- Юридический адрес
Да
Оснащение
Кондиционер
Охрана
Сигнализация
Видеонаблюдение
Оживленное место
Компьютерная сеть
Интернет
Рампа
Отдельный вход
Арендодатель
Артем
Контактное лицо
Примечание
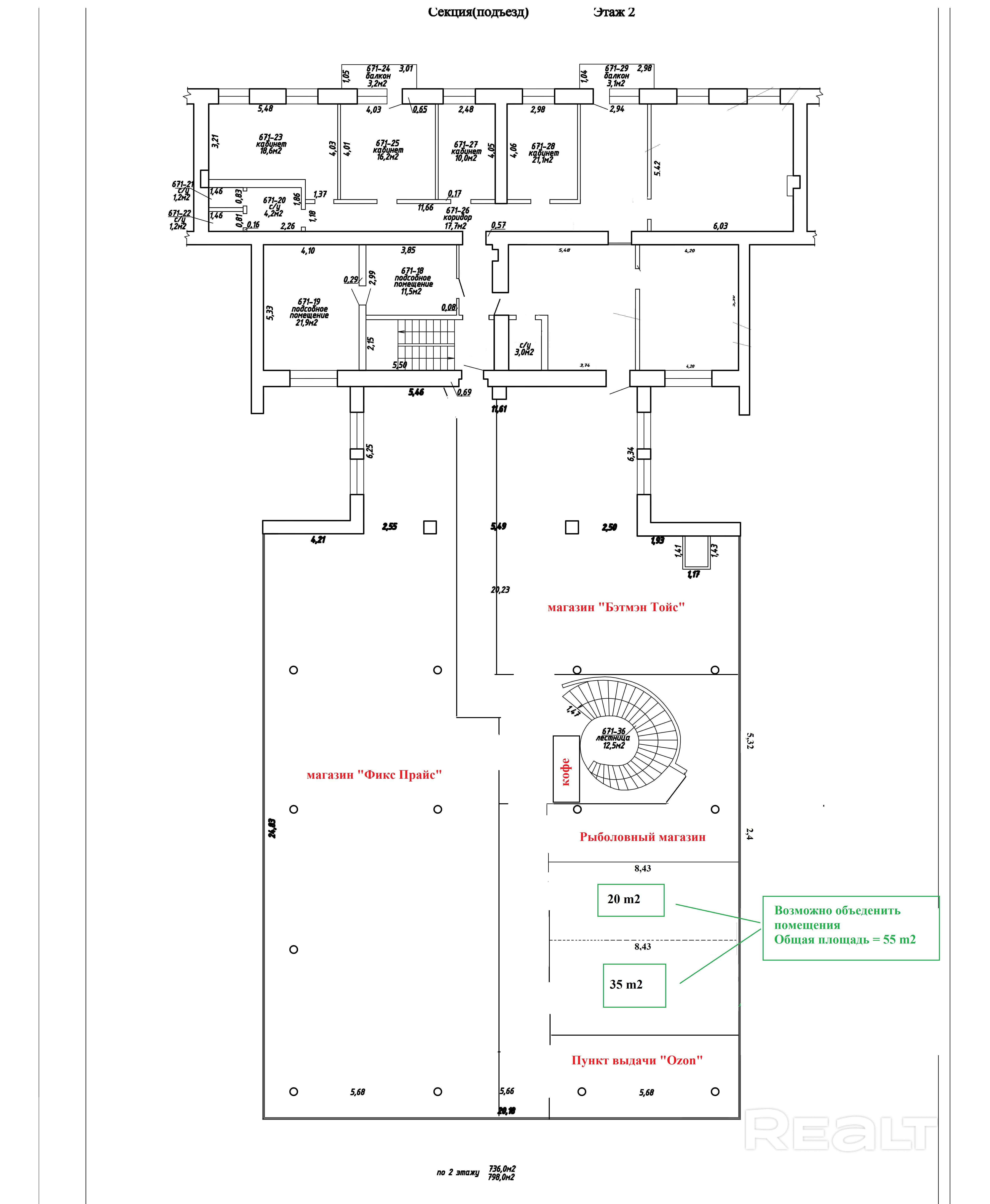
Сдаются в аренду помещения ТЦ (торговля/услуги, офисные/складские) от 20-55 м2. ТЦ находится в густонаселенном жилом р-не Гомеля со стабильным трафиком пешеходов и развитой инфраструктурой, возле рынка «Старый Аэродром». Функционирующие арендаторы на 01.05.25: "Копеечка","Фикс Прайс","WB","Ozon", "Аптека","Магазин Игрушек" и др. Имеется собственная выгрузочная рампа, Парковка для посетителей/сотрудников. В здании произведен современный ремонт, обновлены коммуникации. Цена за 1м2= 25руб + ндс
Местоположение
- Область
- Район
- Населенный пункт
- Улица
- Номер дома
1/671
- Район города
- Координаты
52.450662105, 30.998982865
