Снять торговое помещение, г. Могилев, ул. Аркадия Кулешова, 24
30 - 40 р./м²
Суб-аренда
Следить за ценой
Торговое помещение
Тип
180 м²
Площадь
0 из 2
Этаж
01.04.2025ID 3691465
Параметры объекта
- Тип объекта
Торговое помещение
- Площадь общая
180 м²
- Этаж / этажность
0 / 2
- Ремонт
Хороший
- Санузел
Есть
Арендодатель
ЗАО "Доброном"
Контактное лицо
Примечание
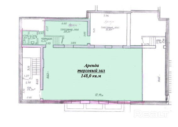
Предлагаем помещение 180 кв.м. Расположен в цокольном этаже. Торговый зал 150 кв.м. Есть свой с/у. В здании так же располагается продуктовый дискаунтер "Копеечка". Цена и условия договорные
Местоположение
- Область
- Район
- Населенный пункт
- Улица
- Номер дома
24
- Район города
- Координаты
53.915344821, 30.284770847
