Если на руках меньше 20 тысяч долларов. Смотрим бюджетные однушки около метро в Минске
14147Сегодня смотрим, какие квартиры можно купить в лизинг, если для первого взноса есть меньше 20 тысяч долларов. Это одни из самых бюджетных однокомнатных квартир, которые сейчас есть в Минске. Кстати, все эти однушки находятся в пешей доступности от метро. Показываем, как они выглядят и сколько стоят. Просчитать условия лизинга можно в каждом конкретном объявлении, а оставить заявку на индивидуальную консультацию — по ссылке.
Автозаводская
Начинаем наш обзор с однушки, на которую совсем недавно существенно снизили стоимость. Квартира расположена на первом этаже трехэтажного дома по адреу Строителей, 5. Эта сталинка 1958 года находится в десяти минутах пешком от станции метро «Автозаводская».
В квартире заменены трубы и электропроводка, установлена дополнительная принудительная вентиляция — это обеспечивает комфортный микроклимат. В жилой комнате установлен большой шкаф-купе. Санузел раздельный, установлена душевая.
Однушка продается за 63 тысячи долларов. Метр — 2 299 долларов. Для покупки в лизинг на руках надо иметь от 19 тысяч долларов. В объявлении можно просчитать различные условия лизинга.
Грушевка
Однокомнатная квартира на первом этаже трехэтажного дома на улице Коржа, 6. Это в 10-15 минутах пешком или в 5 минутах на общественном транспорте от станции метро «Грушевка».
В квартире трехметровые потолки. В жилой комнате есть спальное и рабочее места, стоит шкаф, комод и стеллажи. Санузел совмещенный, светлый. Установлена ванна. Стиральная машина подключена в кухне.
Такая однушка обойдется в 64 500 долларов. Метр — 2 108 долларов. Минимальный первый взнос при покупке в лизинг — около 19 тысяч долларов. В объявлении можно просчитать, какими будут ежемесячные платежи при таких условиях.
Партизанская
Следующая квартира — однушка на первом этаже хрущевки 1963 года по адресу Васнецова, 15А. Это в 10−15 минутах пешком от станции метро «Партизанская». В 2015 году в доме был капремонт — заменили коммуникации, установили стеклопакеты.
В прихожей установлен шкаф-купе. На полу лежит ламинат. В кухне есть холодильник, духовка и плита. Здесь жу подключена стиральная машина. Санузел совмещенный, установлена ванна.
Стоит квартира 63 900 долларов. Метр — 2 016 долларов. Для первого взноса при покупке в лизинг достаточно иметь чуть больше 19 тысяч долларов. В объявлении — различные условия лизинга.
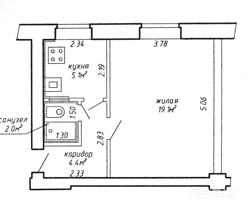
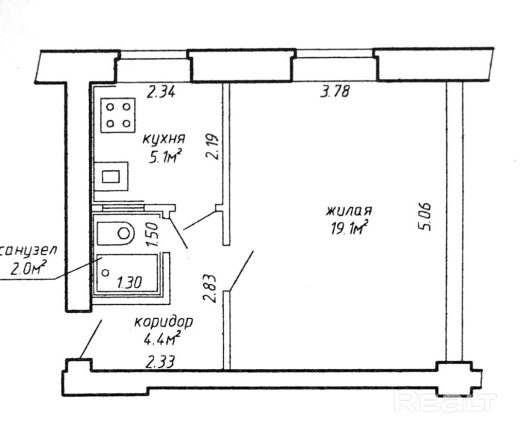
Пушкинская
Эта квартира находится недалеко от станции метро «Пушкинская». А если быть точнее, между «Пушкинской» и «Молодежной» — до первой из станций можно дойти минут за 10, а до второй за 15. Четвертый этаж пятиэтажной панельки 1964 года по адресу Бирюзова, 19.
Эта однушка стоит 64 700 долларов. Метр в ней выходит 2 080 долларов. Купить в лизинг можно с первым взносом от 19 тысяч долларов. Ежемесячный платеж в таком случае будет около 2 300 рублей. В объявлении можно просчитать различные условия лизинга.
Могилевская
Эта однушка находится около МКАД, в 15 минутах пешком от станции «Могилевская». До метро можно подъехать и на общественном транспорте.
В жилой комнате есть выход на застекленную лоджию. Санузел раздельный. Установлена ванна и подключена стиральная машина.
Стоимость квартиры недавно снизили. Теперь ее продают, как и предыдущкю, за 64 700 долларов. Метр обойдется в 1 806 долларов. Минимальный первый взнос при покупке в лизинг — около 19 тысяч долларов. В объявлении можно просчитать комфортные условия лизинга.
Читайте также:
Эти минские дома – ровесники революции. А какие квартиры в них продаются?
Что за дом вырос рядом с «кукурузами» в районе Комаровского рынка? Рассказываем и показываем
Это наша новая стабильность. Что происходит с продажей квартир в Минске и что нас ждет летом
93382
Застройщики переоценили спрос на студии. Что будет с ценами на новостройки этим летом
56927
10 самых интересных минских строек жилья в 2026 году. Панельные, монолитные, элитные и эконом
44685
«Фиксируем завышенные цены». Что происходит с квартирами в Минске прямо сейчас
12655
«Заселились 40 лет назад, уезжать не хотим». Как живется в панельках возле парка Павлова в Малиновке
21723
Телефон в рассрочку будет выгоднее, чем при оплате сразу? Смотрим обновленный салон Life в центре Минска
6822
У вас еще нет своего жилья? Считаем, сколько вы будете тратить на аренду и сколько — на платежи за собственную квартиру
7481
Видео этих агентов по недвижимости набирают по 50 тысяч просмотров. Что они делают?
15309
«Переезжать сюда насовсем желания нет». Узнали, как живется в брежневках в Чижовке
77681
Кредит, использование семейного капитала, уплата налогов. В каких случаях нужно вызывать профессионального оценщика недвижимости?
5891
Что такое альтернативные сделки или как переехать в квартиру побольше, не доплатив ни копейки?
9920
Минчане построили дом из двойного утепленного бруса с "подземной" баней. Съездили посмотреть, что у них получилось
64027
Нашли самую маленькую однушку в Минске с ремонтом и мебелью. И что по цене?
63440
За два участка боролись по 74 и 72 человека - и это новый рекорд! Рассказываем об итогах земельного аукциона в Минском районе
29973
Многие здесь работают в «Газпроме». Побывали в тихом поселке под Минском, о котором мало кто знает
52401
Не хватает на жилье в Минске? Собрали недорогие квартиры в городах-спутниках, где сразу можно жить
31706
Есть и за 7 тысяч. Нашли крепкие хаты до 20 тысяч долларов возле озер и леса
92290
"Когда переехали - мама заплакала". Как жили раньше и как живут сейчас в Шабанах - криминальном районе Минска 90-х
80457
До 50 тысяч долларов. Как выглядят и сколько стоят недорогие двушки в Минске, где сразу можно жить
84124
"На нашей детской площадке собиралась вся Малиновка". Как живется в тех самых "английских" домах от МАПИДа в Минске
35883- Бизнес центры
- Торговые центры
- Продажа гаражи, машиноместа
- Продажа офисы, нежилые помещения
- Продажа магазины, торговые помещения
- Продажа рестораны, бары, кафе
- Продажа склады, производства
- Продажа бизнес, сфера услуг
- Аренда офиса, помещений
- Аренда магазины, торговые помещения
- Аренда рестораны, бары, кафе
- Аренда склады, производства
- Аренда сфера услуг, игровой бизнес
- Аренда гаража, машиномест







































































